案例故事
和业主喻工是在一个项目中相识的,当时他是监理。一开始他很不认同我们提出来的一些设计上的想法,但是我们还是坚持施工出来了,最后他看到效果以后,最终决定把他的家交给我们设计。
设计师王城炫喜欢在不同的人身上去尝试不一样的设计。这一套案例和以往的案例有很大的不同,以往可能会偏文艺范一点,而本案定位是偏轻奢型。当设计师将设计效果图发给业主看的时候,喻工完全惊呆了。他把图传给他爱人看,喻工爱人朱姐特别喜欢,还有什么话说呢!
业主需求
为了改善居住条件和方便孩子上学,业主喻工购置了这套125平米的洋房。同为建筑行业工作的喻工,希望自己的家是工业风格,个性一点。但是他的爱人是绝对不能接受冷酷的格调,加上需要考虑父母居住的感受。在和我们沟通的时候,希望能偏“欧”一点。

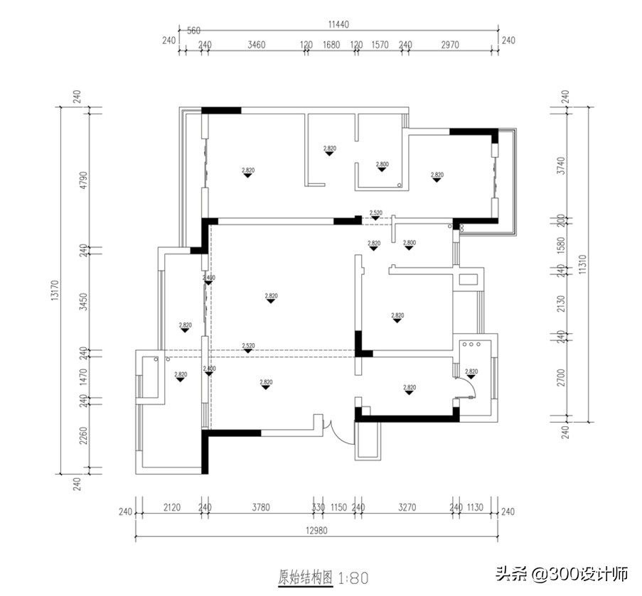
原始结构
1、入户没有玄关位置;
2、原始结构上,从设计角度很想把厨房移到书房和餐厅作为开放式厨房布局;
3、餐厅原设计是黑白错落组合柜的样式,能和地面形成呼应。

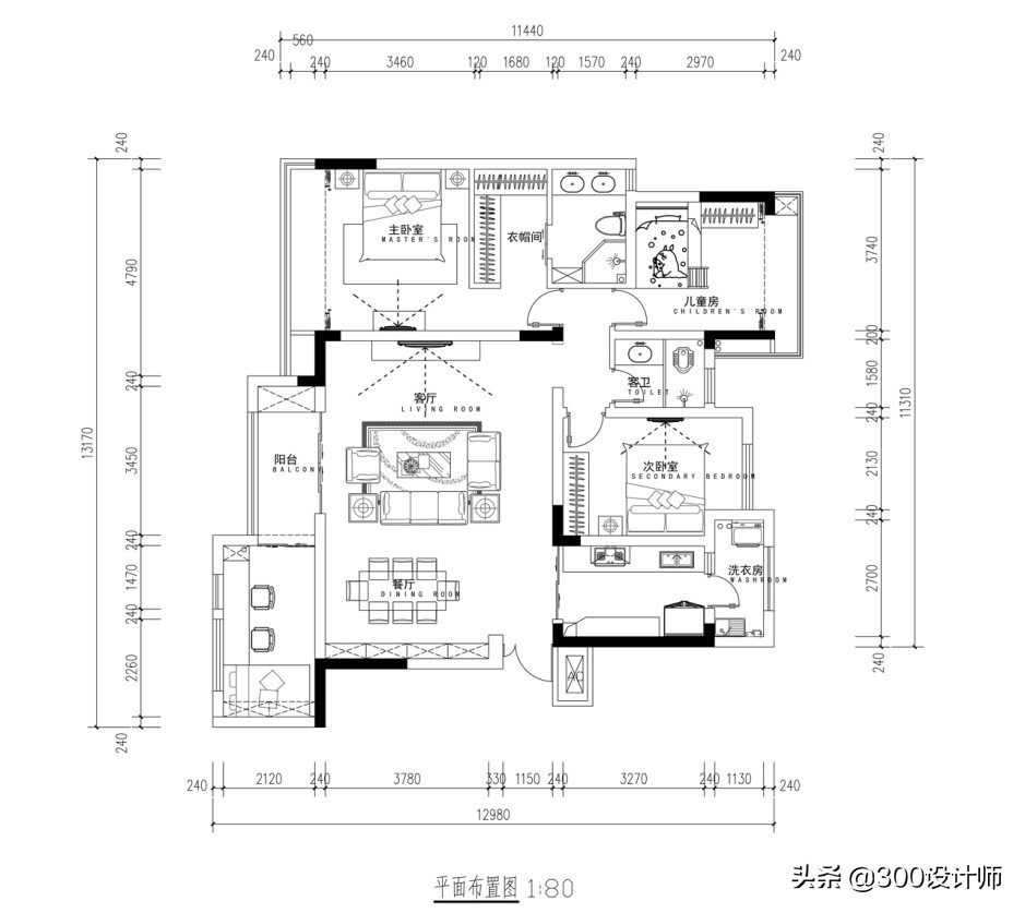
结构改造
1、拆除了父母房的原始飘窗,使空间面积变大。
2、针对布局开放式厨房的问题,女业主坚持强调家里成员比较多,生活习惯不一样,做开放式厨房最担心的就是油烟的问题,加上两个儿子年龄比较小,难免磕磕碰碰,可能不安全。所以我们保留了原有的封闭式厨房,只是将书房和餐厅之间的窗户封闭,将主卧和儿童房的阳台扩充到室内空间。
3、业主认为家里需要更多的储物空间,于是在餐厅中间留了开敞式的柜台。
4、主卧室打通了阳台之后,采光和通风更好。
5、因为窗户落地玻璃太多,导致电梯无法转运。业主马上找来吊车,把玻璃吊至7楼。为了考虑家里两个小朋友的安全,所有空间的窗台和窗扇高度都有所提高。

色彩搭配
空间大面积的采用了蓝色和橙色,在视觉上形成了强烈的颜色对比,选用了色相环上的一组互补色,用了蒂芙尼蓝和爱马仕橙色,这是一个很大胆的尝试。

同时用了护墙来作为墙面的装饰材料,护墙上嵌入玫瑰金色的金属线条为整个空间提升了轻奢的质感,营造出华而不腻的效果。


轻奢的新定义就在奢的力度上,如何把金色的元素用得不那么浮夸。最好的办法就是在软装上下功夫,我们在家具选择上,大面积素色,只在其中的细节中带有金色的元素。

案例详解
入户
很多人处理入户这一块的时候可能会特意加一个屏风隔断之类的,而设计师王城炫的想法是尽可能让空间显得更开敞,所以在地面的处理上花了一点心思,用600*1200的大板瓷砖,铺贴成钢琴键盘的样式。开门一瞬间,把注意力吸引到走廊地面上,成为先入为主的空间亮点,让每个进来的人都有想要蹦起来的好心情。大面积的地面鱼肚白大理石瓷砖,让空间更干净,精致。

客厅
沙发不靠墙,可以让客厅显得更宽敞和大气。深色皮质的沙发,让整个轻色调的空间了有重色的落脚点。

浮夸的现代金属落地灯,在客厅中极其耀眼,成为夜晚休闲时的氛围照明。

曲屏电视没有挂墙,为了便于日后电视柜和沙发对调位置,改变布局,从而产生新鲜感而考虑。

餐厅
餐厅利用墙面凹陷的位置,做了大面积的储物柜。柜子的材质不同于护墙,为了让空间显得不那么中规中矩,选择了白色玻璃材质,反光性比较好,颜色上形成对比后,让餐厅位置显得不沉闷。

高级灰的餐椅,让空间颜色有更好的过渡性。

装饰挂画恰好综合了空间中的大面积颜色。小空间的细节往往能凸显设计的重要性。在选择装饰画的时候一眼就看中这幅仰望视角的建筑画。

厨房
推开餐厅旁的滑门,简单的照明将干净整洁的烹饪空间呈现在眼前。

主卧
主卧室窗外就是公园的山坡,春天的时候足不出户就能欣赏樱花盛开,好生惬意。面对这么大的落地窗。窗帘布艺上我们选择了遮光性更好的意大利绒布。空间的材质质感也显得更加温和。


儿童房
由于业主家是两个儿子,所以没有单独分房间。让两兄弟住在一起更能增加孩子之间玩耍的乐趣。墙纸是由6岁的大儿子自己选的,一不小心和客厅的颜色接近了。

老人房
老人房整体以墨绿色为基调,让整个空间的配色既传统又不失格调。

书房
目前因为小孩还不需要有独立的书房,因此作为儿童游乐室使用。如果家中有朋友来访,还可以作为客房使用。业主自己也选了一款工业风的墙纸,聊表慰藉。

主卫
洗手台摆放着鲜花插瓶,给湿润的卫生空间带来一丝绿意。

除了视觉上能看到的硬装和软装之外,其实全屋还做了新风系统。由于业主家中成员比较多,大家聚在一起玩时,希望能给家人更舒适的居住环境。正因为业主各种为家人打造更好的生活品质的初心,成就了本案的轻奢格调。所以我们都应该认真地去生活,不负好时光,成为一个更好的人!

设计师:王城炫
装修费用:36万
设计风格:轻奢、美式
房屋面积:125平方米(室内)
房屋类型:三室一厅
项目地址:重庆大足海棠国际
300设计师APP带你认识重庆最知名的300设计师,特别欢迎重庆用户关注!
本文由300设计师APP原创,欢迎关注,带你一起长知识!
*载下**300设计师,了解更多