‖ 贺江幸福里9栋02户型
这是一套136㎡的四房户型,半包花费12万左右,客户对房子的装修,希望是清爽简约,色彩柔和有质感的现代风格,原始户型零碎的空间较多,想要充分利用起来,就需要进行拆改合并。
设计简介:
装修风格:现代风格
建筑面积:136㎡
空间格局:4室2厅2卫
设计师:龙昱成
项目位置:贺州·贺江幸福里
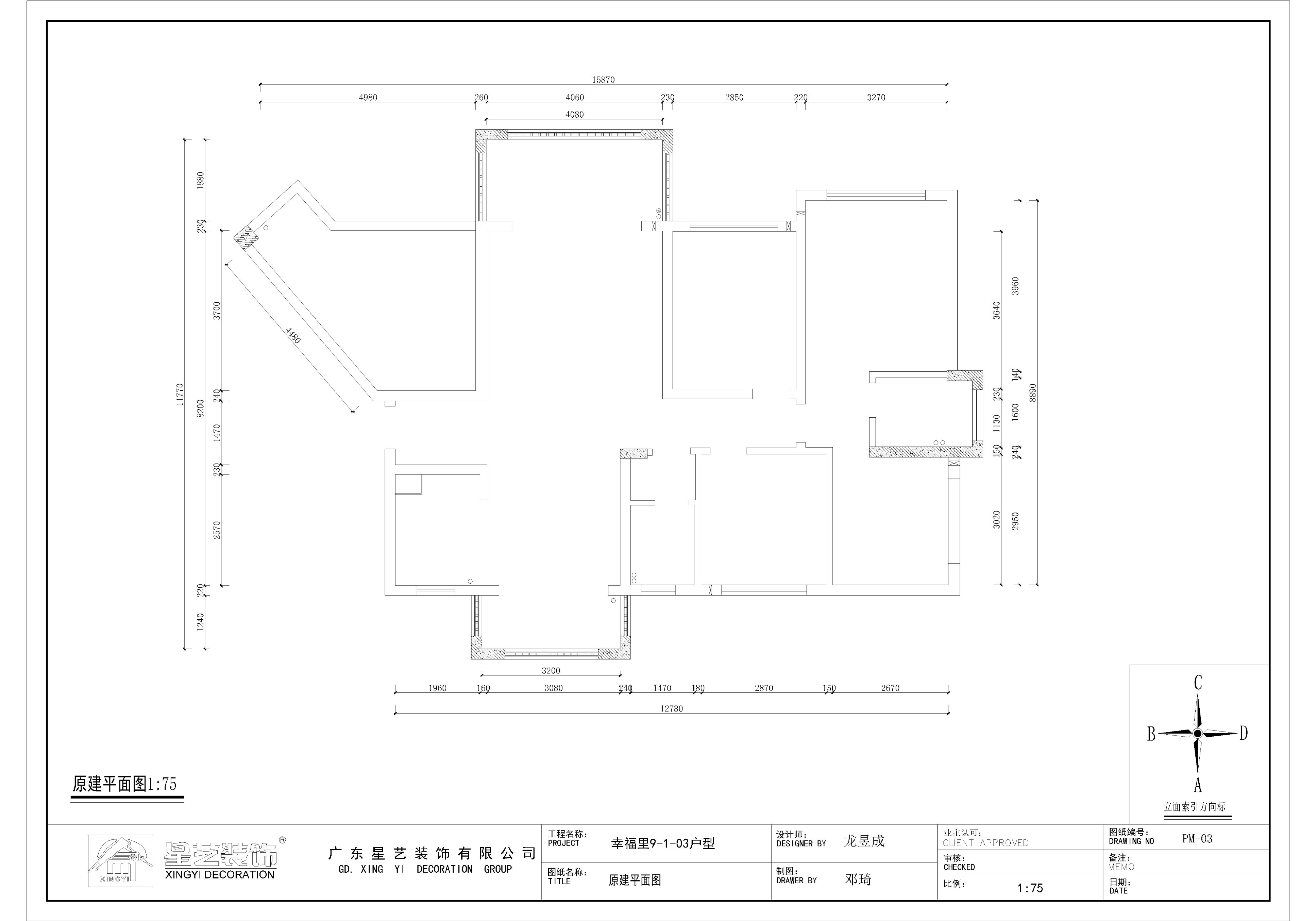
户型图

幸福里136㎡的四房户型

平面布置
利用赠送的结构板,打通做成为餐厅来使用,墙体有一半是沉重墙,只能用吧台来处理,也可以作为平时姐妹聚会的休闲区。

幸福里136㎡的四房户型
墙体使用了简单的木纹色集成板处理,让空间看起来更加简洁自然

幸福里136㎡的四房户型
天花处理上,也跟风做了无主灯的设计,不在为选什么吊顶,吸顶灯烦恼,还解决了藏灰的问题!看起来层高也不是那么受影响,两边做了双眼皮,层次感很明显就出来了

幸福里136㎡的四房户型
电视背景刷了一层灰色的油漆,也符合了整体设计要求的简洁自然,看电视的时候也不会有多余的造型影响观影的视觉感受。

幸福里136㎡的四房户型

幸福里136㎡的四房户型

幸福里136㎡的四房户型
吧台做了有1.1米高,这样在与客厅交流观影时候,都有很好视野。

幸福里136㎡的四房户型

幸福里136㎡的四房户型

幸福里136㎡的四房户型

幸福里136㎡的四房户型

幸福里136㎡的四房户型

幸福里136㎡的四房户型
本期案例就分享到这来了,有什么更好建议和想法,欢迎讨论