如果不是生活所迫没有人会选择外出工作,我相信这是很多人的心声。农村生活的慢节奏,多么舒适啊,家人和朋友在身边,都是我们熟悉的人与物。如果你现在厌倦了快节奏的城市生活,想念我刚才描述的乡村生活,你不妨回到家乡,力所能及地建一栋欧式的三层别墅,精致的外观十分讨人喜欢,实用合理的内部布局,以确保你和你的家人的日常生活舒适和方便
要知道欧式别墅总是以高贵华丽的外表博得人们的青睐,随着农村居民对时尚的不断追求,越来越多的家庭开始建欧式小别墅。时尚的外观拥有了,如何进一步提高居住舒适度呢?答案是建坡屋顶的欧式小别墅。欧式别墅,农村生活真的很舒适,家人朋友伴在左右多好啊再加上坡屋顶设计可以进一步提高房屋颜值,但最重要的是保温隔热效果好,而且只要天沟防水做得好,基本也不用担心漏水的问题,居住舒适度能得到极大地提升。今天就农村小别墅设计师给大家推荐30套带坡屋顶的三层欧式别墅图纸,第九套主体造价仅需20万,喜欢的朋友不要错过。以下每套图纸都有详细的尺寸,还根据你的要求修改调整内部布局尺寸等,也可以根据你的地基要求量身定做设计,要图纸微我








现在的农村建房,大家都想要拥有一个带有挑空的客厅和美观的旋转楼梯,在潜移默化中仿佛成为了大宅的标配。挑空客厅的户型设计能在视觉和感官上都能给人一种更加的开阔的体验。后期装修上通高的大气背景墙,简直就是一种享受。旋转楼梯+挑空客厅”的别墅,大落地窗美观通透农村别墅基本信息
☑ 占地尺寸:12.9x12米
☑ 占地面积:160.83㎡
☑ 建筑面积:477.39㎡
☑ 建筑结构:砖混结构
☑ 造价估算:30-35万

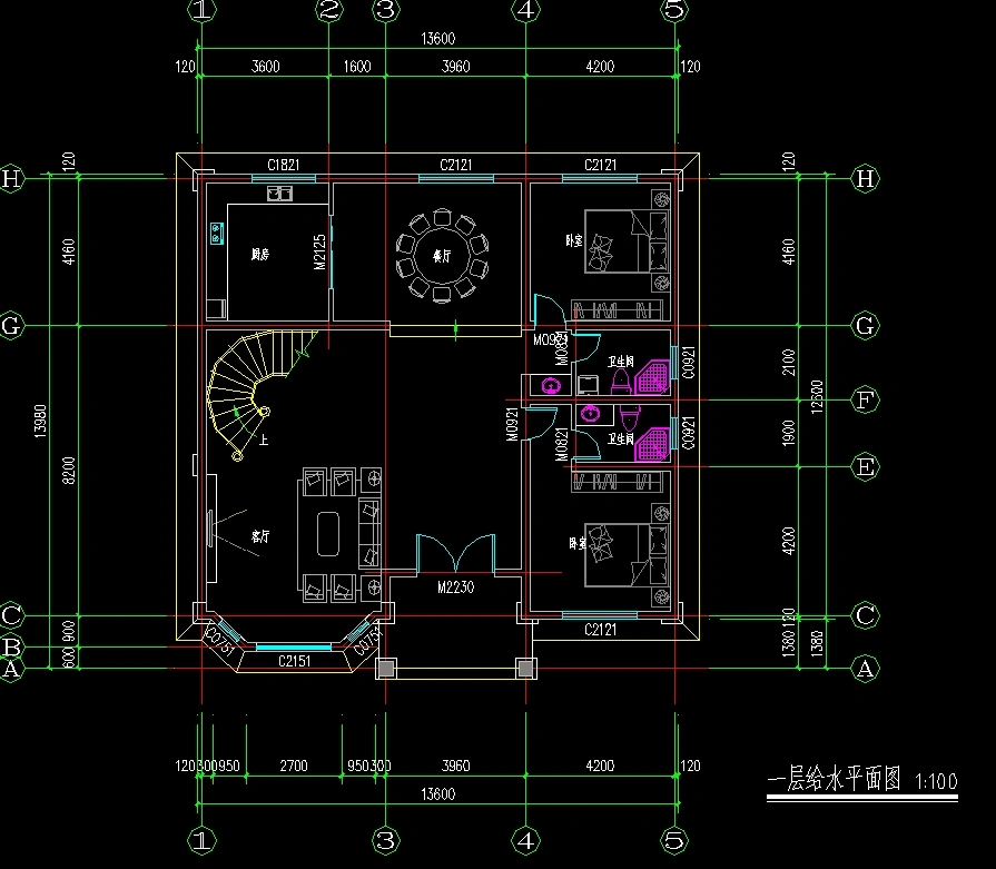
一层公共区域为主,超大空间,局部挑高,加上南向玻璃幕墙,通透大气。两厅一厨一卫满足了全家的基本生活需要,棋牌室茶余饭后休闲娱乐。

▲ 一层平面图
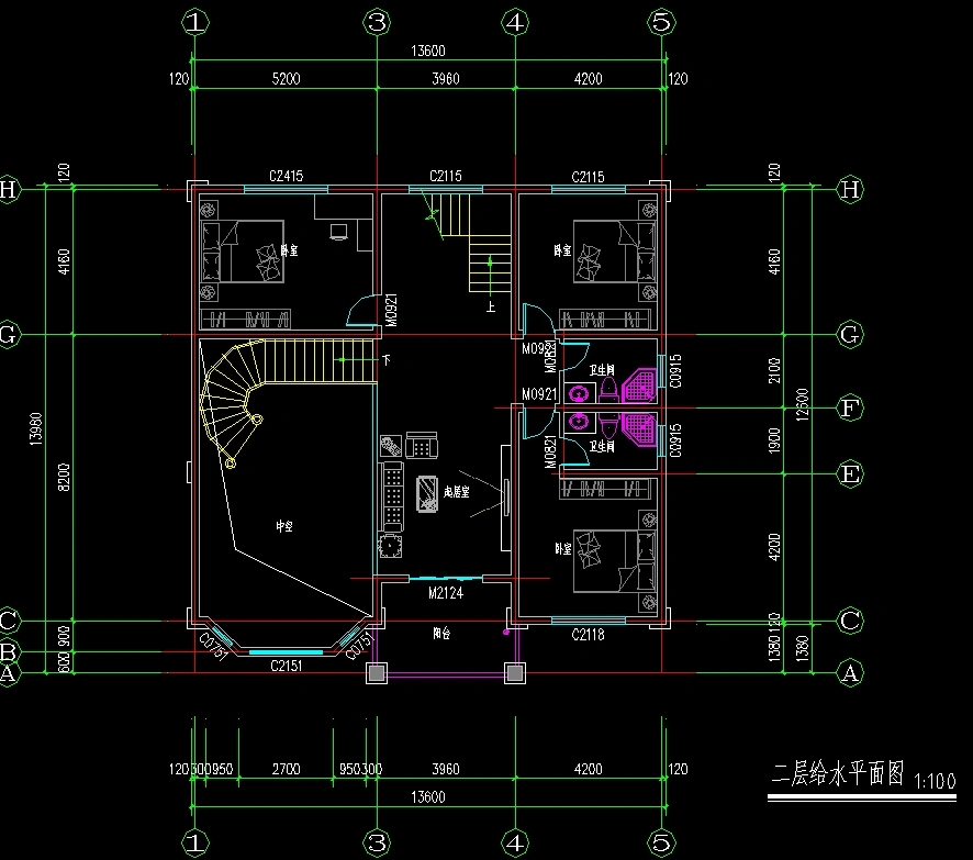
二层布置三间卧室,南向卧室为主卧,配有独立卫生间、书房、衣帽间及两个阳台,提供高质量的生活品质。

况且欧式建筑在农村建房中为何大受欢迎,不是没有原因的,它精美的外观设计充满了唯美浪漫从而使得欧式风格进入了农村建房排名的第一阵容梯队。并且现在农村建房早已摆脱了过去的保守,房子也越建越漂亮在注重生活舒适的同时外观造型也在悄悄地发生变化,功能齐全的同时外观也得到所有人的认可。







而且欧式别墅巧妙地使用了一种来自欧罗巴的风格。随着文化趋势的不断形成,内容统一,文化潮流的独特性强。欧洲风格是欧洲文化传统所表达的强烈文化内涵,将浪漫的西方风格融入农村住宅!
最受欢迎的欧式别墅,造价不高实用性很强,人人都盖得起要知道随着农村生活在国家的大力支持下,当你许久没回到农村看会发现到处都是这样精美的欧式别墅,预示着人民生活水平提高的同时也是审美的提升!简洁的白色墙体搭配上蔚蓝色屋顶在老家盖上一栋绝对是清新自然的存在.




欧式建筑风格一直是农村建房的之一,在浑身散发高贵气质之外浪漫唯美的外观造型也收获了许多人的喜爱。在日益富强的农村地区,人们都选择建造欧式别墅除了能改善与提升家庭的生活条件还是一种生活富足的真实写意。本期小编就整理了几款欧式别墅设计,为新农村建设增添色彩,用心打造舒适家园感兴趣的朋友们一起来看一看吧!欧式别墅,为新农村建设增添色彩,打造舒适家园;欧式别墅以经典美观的设计一直是农村建房的首选建筑风格,本期小编就向大家介绍五套欧式别墅设计,古典华丽的外观造型永不过时备受建房者的喜爱。室内格局动静分离,生活空间相互独立,互不打扰确保了户主居住生活舒适惬意







现在的农村别墅越建越多,而且好多别墅一点都不比城里差,独有的建筑风格赋予了整栋别墅出彩的灵魂。今天小编就向各位介绍当下最受老百姓欢迎的欧式别墅设计,漂亮的外观装饰与实用的屋内布局造价不敢实用性很强,人人都能盖的起感兴趣的朋友们一起来看看吧


总之:很多人在城里有房有车,有稳定体面的工作,有幸福美满的家庭,手里多出来的闲钱,就会考虑回老家盖别墅,不仅让乡下的父母住得舒适,自己也能带着妻儿回去度假休闲,有个温馨的归宿。
以下每套图纸都有详细的尺寸,还根据你的要求修改调整内部布局尺寸等,也可以根据你的地基要求量身定做设计,要图纸微我