
这篇文章,是写给想学室内设计的小白,以及刚入行的设计助理。
请放心阅读,此文不会长篇大论的去讲一些玄之又玄的理论,什么“空间设计”“设计原理”“室内设计的发展历程”什么的...
直接就是“干货”,从头到尾的梳理一下,做“室内设计师”需要掌握的软件技能,以及每部分需要掌握的程度。
话不多说,直接开始~
一、手绘电绘
1.室内美术基础
学会手绘便于方案沟通及项目对接,学习各种透视方式辅助绘制空间,还可快速绘制平面、立面、节点等。
·工具的介绍和应用
·线条的特点及练习方式
·线条的排列方式及光影表现
·家具比例关系及绘制
·一点透视、一点斜透视原理及绘制
·两点透视原理及绘制方式

2.电绘空间基础
电绘是当下流行趋势,对于空间的局限性较小,而SKB(Sketch Book)软件具有各种辅助功能,可快速出平面图、空间表现等。
·手绘板与电脑手绘软件基础透视
·透视、立方体不同角度转变
·电绘单体家具绘制手法
·电绘整体空间透视图绘制技法
·电绘空间线稿细化
·空间线稿细化案例深化练习

3.电绘空间色彩
SketchBook线稿部分完成后可用PS进行上色,学习颜色搭配及不同材质表现。
·电脑手绘上色基础,笔触应用
·色彩搭配、各种材质、灯光表现
·不同风格家具单体上色
·空间整体线稿绘制与上色

4.电绘综合应用
PS上色阶段后期空间表现,整体不同风格空间的上色。
·电绘平面与立面绘制方法
·空间住宅案深化
·轻奢
·毛坯房快速绘制方案及上色

二、施工图表现
5.草图大师(Sketch Up)
学习草图大师了解建筑结构表现,室内及室外模型不同风格表现,空间及材质表现,SU还可配合VRAY渲染器使用。
·SketchUp软件基础
·SketchUp-CAD建模
·SketchUp照片建模
·SketchUp空间材质与相机

6.CAD施工图基础与平面方案
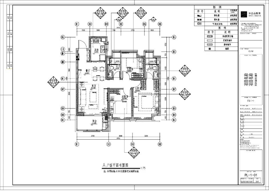
学习CAD软件基础,熟练快捷键及施工工艺材料等,掌握量房放线及平面图绘制方法。
·熟练运用CAD软件并掌握不同图形绘制
·掌握CAD常用快捷键
·了解家装设计流程及常见施工工艺
·量房技巧学习及量房图放线
·家具平面图布置及地面铺装图绘制
·拆除墙体图、新建墙体图等绘制

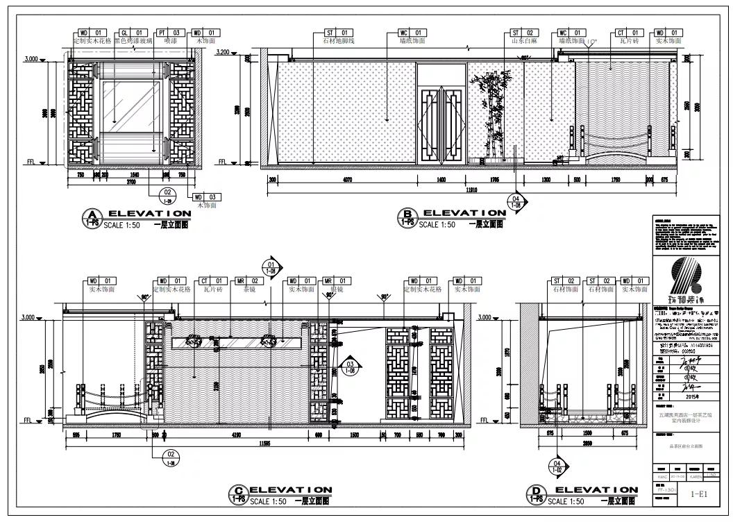
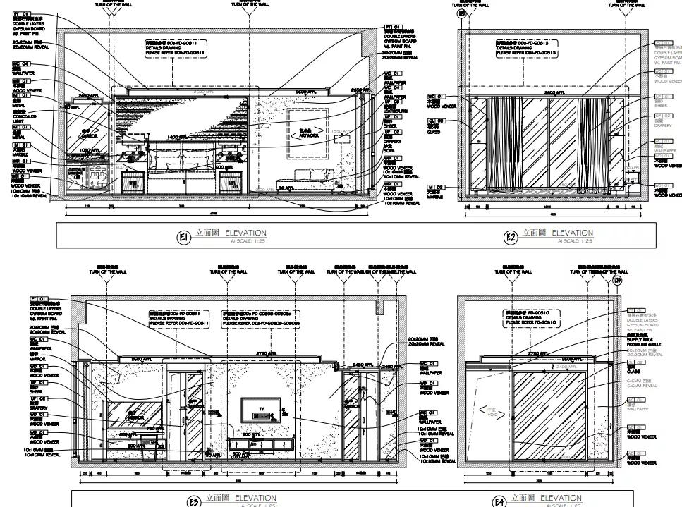
7.CAD平/立面施工图与施工工艺
·室内基础装修施工工艺
·拆改工程工艺
·隐蔽验收工程
·施工材料基本认知:辅材与主材
·立面尺寸估算练习

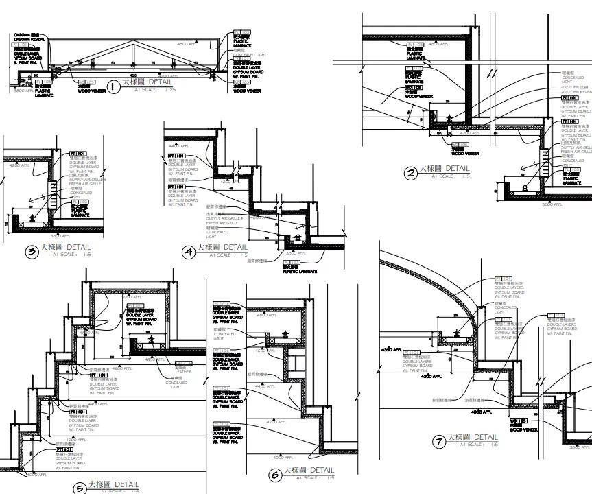
8.施工图深化及预算提案
·图例符号的正确使用规范/剖立面的绘制
·通用节点绘制/大样图的基本绘制
·彩色平面图/PPT/PS排版规范
·传统表格报价/现代软件操作报价系统
·谈单技巧(很重要)

报价预算图

三、室内表现-室内模型
9.模型基础
掌握模型基础,初步掌握3Dmax建模思路。
·3DMax基础工具与常用命令
·对齐工具与捕捉命令
·可编辑样条与常用修改器
·弯曲,车削,FFD变形等修改器
·晶格,锥化,放样,布尔命令

10.CAD建模照片建模
整体模型建立,掌握CAD建模技巧与思路。
·室内CAD全套建模
·客厅模型
·室内CAD全套建模
·书房模型
·室内CAD全套建模
·卧室模型
·图片建模

11.欧式家具与异形曲面
掌握多边形建模思路,复杂模型建立技巧。
·多边形建模
·软包,布料等建模
·欧式家具建模
·异形展厅模型

12.整体造型空间
掌握整体复杂模型空间的建立方法与思路技巧。
·室内欧式模型 - 客厅
·室内欧式模型 - 餐厅
·室内别墅模型 - 客厅
·室内别墅模型 - 餐厅

四、室内表现-室内渲染
13.VRAY渲染基础
掌握效果图基础渲染技法与PS后期处理手法。
·PS后期处理
·渲染器基础应用
·材质基础
·灯光基础
·渲染综合

14.VRAY全流程渲染技法
常见空间效果制作,常规渲染技法,商业制图手法。
·小空间渲染技巧
·大空间渲染技巧
·日景氛围
·夜景氛围
·商业制图手法

15.材质灯光高级处理及线性工作流
线性工作流技法呈现,非常规效果图表现手法。
·材质灯光渲染元素通道
·720全景图制作
·线性工作流
·伽马渲染表现手法

16.特殊场景渲染及生长动画
掌握效果图基础渲染技法与PS后期处理手法。
·小景超写实技巧
·毛发粒子应用
·写实材质与展UV
·特殊氛围营造
·室内动画

五、软装表现
17.软装设计概论及风格
·软装发展及市场现状
·主流软装设计风格
·具有行业影响力设计(别墅样板间、售楼部、会所设计)
·软装空间设计与生活方式
·室内空间色彩心理
·软装项目(方案制作)

18.软装六大要素及应用
·软装产品市场分类及特点
·软装产品渠道应用(考察市场)
·家具风格及工艺鉴赏
·人体工程学与家具的联系
·挂饰(挂画)在室内环境中的装饰作用与搭配原则

19.别墅样板间与售楼部方案制作
·软装中的布艺织物风格搭配
·灯饰风格选择与软装设计应用
·软装地毯的应用
·摆件与花艺在居室环境中的装饰作用与搭配
·别墅样板间及售楼部方案制作

20.软装清单制作与办公室设计应用
·6大板块与图纸衔接尺寸
·采购清单制作(摆放原则)
·软装配饰工作流程与客户定位分析
·考察市场,采购及实操摆场全面讲解
·中大型办公空间常用参数、材料
·消防等安全要素
·掌握一般办公空间的设计要点及施工图绘制技巧

软装清单

六、施工图深化
21.星级酒店大堂吧设计
·了解酒店设计中大堂吧相关知识
·大堂吧的功能及设计要点
·人体工程学在大堂吧中的应用
·常用材质特性和材料规格
·天花机电设备,空调,消防及防火规范要求

22.星级酒店餐厅设计
·了解酒店设计中餐厅的相关知识
·餐厅的功能及设计要点
·人体工程学在餐厅中的应用
·材质施工工艺
·墙面大样收口绘制及阴阳角处理

23.星级酒店休闲娱乐区深化
·休闲娱乐区的功能及设计要点
·立面造型比例关系与风格处理
·立面造型细节收口处理关系
·认识大样图和大样图的作业
·天花造型的样式及收口细节处理

24.星级酒店客房
·了解酒店设计中客房的相关知识
·客房的功能及设计要点
·常用材质特性和材质规格
·机电设备、空调、消防及防火规范要求
·立面造型细节收口处理方式

总结:以上就是作为一个“室内设计师”所需要掌握的硬性技能,期望对想学习的小伙伴们有一定的帮助。