近日有网友留言,说是油烟机高度装错了,这3年来每次炒菜都很崩溃,不知道不同款式的油烟机安装高度有什么讲究?
我今天就来回答一下这位网友的问题,油烟是厨房里最无法避免的问题,所以油烟机也成为了厨房最不可缺少的电器。不同的装修风格也衍生出了不同款式的油烟机,从风格来说分成了中式和欧式,而从功能的角度来说也出现了顶吸式和侧吸式这两种。

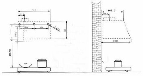
虽然油烟机安装起来非常简单,但大多数我们都是直接找安装师傅上门安装。而对于作为主人的我们来说,最好在安装油烟机之前先测量得出它安装位置的高度,以免影响到后期的使用。你们肯定都没发现其实不同款式的油烟机它要求安装的高度都有会有些小区别。

1.中式
中式的油烟机高度一般距离台面650毫米至750毫米。

2.欧式
欧式油烟机底部距离灶具台面安装的高度以650毫米至750毫米这个范围作为参考,功率大一点的油烟机可以安装的高一些,相反,功率小则安装得较低一些。

3.顶吸式
顶吸式(欧式)的油烟机一般安装在灶台上方,通过排气扇把油烟吸走,排烟的效果比较直接有效。但并不是距离台面越近越好,一般它的高度距离台面700毫米至750毫米是最合适的。

4.侧吸式
侧吸式的油烟机带有油烟分离面板,避免油烟进入烟机内腔,能够第一时间抽吸油烟,清除油烟的效果也比较不错。而安装高度适当的侧吸油烟机才能保证抽油烟的效果,正常的安装高度是机子底部与炉具上方的距离在350毫米至400毫米最佳。

一般我们在安装油烟机时,高度应该在灶具正上方和灶具处于同一轴心线上并保持完全水平的状态,我们可以在安装的时候用铅笔在墙上画出大概的位置;而且油烟机不适合安装在空气对流比较大的地方。

如果你家厨房还处于装修的状态,那么切忌将油烟机机身暴露在外;其次不能将油烟机安装在易燃物的墙面上(如木质等),也不能安装在使用固体燃料的炉具上方;还有就是油烟机不能喝其他燃气器具(如燃气热水器等)共用一个烟道。

更多装修案例、家居经验欢迎关注微信公众号:合肥飞墨设计或是feimoshejihf(长按可复制)