#头条创作挑战赛#
中 国 建 筑 工 程 总 公 司
CHINA STATE CONSTRUCTION ENGRC CORP.
新建居住项目(xxxxxxxxx地块)砌体结构工程施工方案
中建xx局集团有限公司
xxxxxxxxxxxxx项目部
二〇一九年七月
新建居住项目(xxxxxxxxx)
砌体结构工程施工方案
|
编制: |
|
|
审核: |
|
|
审批: |
中建xx局集团有限公司
xxxxxxxxxx项目部
二〇一九年七月
目 录
第1章 编制依据 1
1.1 编制目的 1
1.2 编制依据 1
1.2.1 现有文件及图纸 1
1.2.2 规范依据 1
1.2.3 其他 2
第2章 工程概况 3
2.1 工程建设概况 3
2.2 工程建筑概况 3
2.3 砌体工程概况 4
第3章 施工部署 5
3.1 施工平面布置 5
3.1.1 卸料平台布置 5
3.1.2 施工电梯布置 5
3.2 施工准备 6
3.2.1 技术准备 6
3.2.2 生产准备 7
3.2.3 材料准备 8
3.3 主要劳动力计划 9
3.4 主要机械设备计划 9
3.5 工期计划 9
第4章 施工方法 10
4.1 施工流程 10
4.2 施工工艺 10
4.2.1 工艺流程 10
4.2.2 基层处理及放线 10
4.2.3 植筋施工 10
4.2.4 砌筑施工 14
4.3 主要构造措施 15
4.3.1 填充墙与剪力墙、框架柱(包括构造柱、楼梯柱等)的连结 16
4.3.2 构造柱 17
4.3.3 窗台压顶和墙下翻边 19
4.3.4 过梁 19
4.3.5 连系梁 20
4.3.6 墙与板、梁底连接处 21
4.3.7 电梯井圈梁、过梁 21
4.3.8 翻边 21
4.3.9 门窗洞口 21
4.3.10 女儿墙 22
4.3.11 其他要求 22
第5章 质量保证措施 23
5.1 质量保证措施 23
5.2 质量标准 24
5.3 应注意的质量问题 25
5.4 成品保护 25
第6章 安全保证措施 26
6.1 安全管理方针 26
6.2 安全组织保证体系 26
6.3 安全管理制度 26
6.4 安全管理工作 27
6.5 安全技术措施 28
第7章 季节性施工措施 29
7.1 雨季施工 29
7.2 冬期施工 29
第8章 文明施工及环保措施 30
编制依据
编制目的
为了顺利完成本工程砌体结构工程,在全面深入、细致地学习有关规范,充分熟悉设计意图的基础上,结合本工程的特点,确保施工优质高效、安全、文明施工的指导原则,同时结合本工程建筑结构特点,综合考虑现场总平面材料布置及安全需求,特编制此方案以指导现场砌体结构施工。
编制依据
现有文件及图纸
1)、xxxxxxxxxxxx项目结构施工图纸及建筑施工图纸;
2)、本工程施工合同。
规范依据
主要标准及规范一览表
|
序号 |
标准名称 |
标准编号 |
|
1 |
《建筑工程施工质量验收统一标准》 |
GB50300-2013 |
|
2 |
《砌体结构工程施工质量验收规范》 |
GB50203-2011 |
|
3 |
《工程测量规范》 |
GB50026-2007 |
|
4 |
《建筑工程施工质量评价标准》 |
GB/T50375-2006 |
|
5 |
《混凝土结构工程施工质量验收规范》 |
GB50204-2015 |
|
6 |
《砌体结构设计规范》 |
GB50003-2011 |
|
7 |
《建筑节能工程施工质量验收规范》 |
GB50411-2007 |
|
8 |
《蒸压加气混凝土砌块标准》 |
GB11968-2006 |
|
9 |
《建筑施工安全检查标准》 |
JGJ59-2011 |
|
10 |
《建筑施工扣件式钢管脚手架安全技术规范》 |
JGJ130-2011 |
|
11 |
《建筑机械使用安全技术规程》 |
JGJ33-2012 |
|
12 |
《多层和高层混凝土房屋结构抗震构造》 |
12ZG003 |
|
13 |
《钢筋混凝土过梁》 |
12ZG313 |
|
14 |
《砌体填充墙结构构造》 |
12G614 |
|
15 |
《蒸压加气混凝土砌块、板材构造》 |
13J104 |
|
16 |
湖北省《住宅工程质量通病防治技术规程》 |
DB42/T636-2010 |
其他
1、湖北省、武汉市有关建筑工程管理、市政管理、环境保护等法规及规定;
2、中建xx局集团有限公司建筑施工现场安全管理企业标准文件;
3、本工程现场实际情况;
4、公司类似工程施工管理经验。
工程概况
工程建设概况
|
工程名称 |
新建居住项目(xxxxxxxxxxx) |
|
工程地点 |
湖北省武汉市xxxxxx |
|
建设单位 |
Xxxxxxxxxx |
|
设计单位 |
Xxxxxxxxxx |
|
勘察单位 |
Xxxxxxxxxxx |
|
监理单位 |
Xxxxxxxxxx |
|
施工单位 |
Xxxxx |
工程建筑概况
xxxxxxxxxxxxxx,项目由地下x层、地上x栋(xx)超高层住宅及)多层配套商业组成。规划总用地面积xxxx平方米,建筑总面积xxxx平方米,其中地下室建筑面积约:xxxx平方米,地上建筑面积约:xxxx平方米。
配建筑总平图
图2.2-1 建筑总平面示意图
砌体工程概况
1)建筑物±0.000以下、地下室顶板以上外墙及室外构造砌体(室外栏杆、小品等)均采用250厚MU10灰砂砖,M10水泥砂浆砌筑。
2)住宅外墙、楼梯外墙、分户墙、内隔墙均为200mm厚;其余墙体除图纸注明外、均为100mm厚;厨房、卫生间隔墙为100mm厚蒸压加气混凝土砌块。
3)施工时所用的砌块的产品龄期不应小于28d,蒸压加气混凝土砌块施工时含水率宜小于15%,粉煤灰加气混凝土砌块含水率宜小于20%。
4)砌体结构施工质量控制等级为B级。
表2.3-1 砌体概况表
|
砌体要求 |
种类 |
范围 |
规格 |
|
|
砌体材料要求 |
±0.000以下地下室 |
地下室内部墙体为干容重≤5.50kN/m³(体积密度级别B05,砌块强度级别为A2.5)且饱和湿重度不超过7.70KN/m³的加气混凝土砌块,室外墙体为干容重≤6.25kN/m³(体积密度级别B6,砌块强度级别为A3.5)且饱和湿重度不超过8.75KN/m³的加气混凝土砌块。 |
粉煤灰加气砼砌块: 600mm×100/150/200mm×300mm(长×宽×高) |
|
|
人防临战240mm隔墙 |
MU10蒸压灰砂砖;M7.5水泥砂浆砌筑 |
|||
|
3#住宅楼、1S~3S商业 |
砌块容重不大于6.0KN/m³(B06),强度等级:内外墙A3.5 |
蒸压加气砼精确砌块: 600mm×60/100/200mm×300mm(长×宽×高) |
||
|
1#、2#、4#、5#住宅楼 |
砌块容重不大于5.0KN/m³(B05),强度等级:内外墙A3.5 |
蒸压加气砼精确砌块: 600mm×60/100/200mm×300mm(长×宽×高) |
||
|
灰砂砖尺寸 |
MU10灰砂砖规格:200mm×100mm×50mm(长×宽×高) |
|||
|
砂浆 |
砌筑 |
地上部分精确加气块采用粘结性能良好的专用粘接剂粘接,强度不低于M5;其他普通加气块砌体采用水泥砂浆,强度等级M10;采用M5混合砂浆;屋面女儿墙采用M10水泥砂浆。建议加气砼砌块采用专用砂浆Ma砌筑。 |
||
施工部署
施工平面布置
卸料平台布置
结合本工程实际情况及标准化手册,卸料平台形式如下:
主梁采用18#槽钢,槽口竖向,主梁(水平钢梁)的悬挑长度4.2mm,悬挑水平钢梁间距2.1m;主梁一端架设在建筑物楼面上,外端设置Φ20mm圆钢吊环,用Φ20mm钢丝绳悬吊,钢丝绳上端吊在上层楼面的预埋吊环。

3.1-1 卸料平台大样
施工电梯布置
本工程工期情况,拟投入6部施工电梯作为主楼结构及装饰装修施工阶段垂直运输设施,即每个单元布置一台电梯,1#楼、2#楼、3#楼、4#楼施工电梯采用SC200/200型单塔双笼低速施工电梯,5#楼施工电梯采用SC200/200型单塔双笼中速施工电梯。
配施工电梯平面布置图
3.1-2 施工电梯平面布置图
施工准备
技术准备
1)、砌块砌筑施工前,必须做好隐检、预检工作及手续,办理好上、下道工序交接手续,并经验收合格。
2)、根据本工程的特点、砌筑的要求、设计图纸和施工现场的具体条件,制定切实可行的施工方案,安排施工计划,进行现场平面布置。根据图纸计算出砌体工程量,提出各种材料的进场计划。
3)、责任工程师要做好各施工班组的技术交底和安全交底工作。
4)、提前做好水泥砂浆、混合砂浆配合比技术交底及配料的计量,现场制作砂浆的原材均需过磅称。砂浆配合比经建设工程检测中心确定,有书面盖章的配合比单。
5)、墙体拉结钢筋,采用后置式与结构锚固,要进行拉拔强度试验。
6)、弹出建筑物的主要轴线及砌体的控制边线,经质检部及监理复线,检查合格后,方可进行施工。
7)、根据统一标高控制线及窗台、窗顶标高,预排出砖砌块的皮数线,并标明拉结筋、圈梁、过梁、墙梁的尺寸及标高,皮数线经技术、质检部门复核后,办理相关手续。
8)、构造柱钢筋绑扎,需办理隐蔽验收。
9)、施工洞、脚手眼洞口补砌时,孔洞填塞由专人负责并及时办理专项隐蔽验收手续。
生产准备
1)、本工程在1#、4#楼各设置2部SC200/200施工电梯,在2#、3#、5#楼各设置1部SC200/200施工电梯(具体见施工电梯方案),用于材料垂直运输;1S#、2S#、3S#商业楼各设置1个卸料平台,并用塔吊配合进行砌筑材料的垂直转运。地下室直接由平板车自现有车道处运输砌筑材料。
2)、每层根据施工现场提供的基准控制点,对各楼层的基准点和轴线位置校核合格后,进行楼层内的细部控制线的引测。
3)、依据建筑图中的尺寸要求,自控制轴线(1米线)引测出隔墙等位置控制线,门窗洞口位置线,并经复核无误后用红色油漆在留洞等位置斜对角描出三角控制标志,以防破坏。
4)、依据结构施工时留设的标高控制点,并校核合格后,采用50米钢卷尺竖向传递,每层必须经交圈闭合检查,误差不超过5mm。交圈利用水准仪测放出建筑50cm线,作为各楼层的标高控制线。
5)、根据工程引测的水准点,进行标高抄测工作,同时立好皮数杆。皮数杆宜用30mm×40mm木料制作,皮数杆间距1500~2000mm,转角处均设立;距墙皮或墙角50mm为宜。皮数杆应垂直、牢固、标高一致,经技术、质检部门验线符合要求,办理相关签字手续。
6)、各种机械设备必须进行性能测试,经试运转并满足吊装要求,且应有限位保险装置。
7)、用电设备必须采用三相五线制,同时达到三级保护。
8)、施工脚手架搭设完毕,操作层脚手板和安全网挂设好,施工脚手架经过验收合格允许使用,“三宝”配备齐全,“四口”做好防护。
9)、砂浆搅拌机应搭设防护棚,四周围挡,砂子进行遮盖;砂浆运输设备必须提前做好封闭措施,防止遗洒。
10)、搅拌污水应设置沉淀池等措施,以防止水污染。
材料准备
1)、砌筑砂浆
采用专用粘接剂及预拌砂浆。砂浆应随拌随用,拌制的砂浆应在3h内用完,气温在30℃以上时,应在2h内用完。严禁使用已硬化或过夜砂浆。
2)、砌块
蒸压加气混凝土砌块:600mm(长)×60/100/150/200mm(宽)×300mm(高);
粉煤灰加气砼砌块:600mm(长)×100/150/200mm(宽)×300mm(高);
MU10灰砂砖:200mm×100mm×50mm(长×宽×高)。
砌块材料的规格、尺寸、强度等级必须符合设计要求;并附有产品合格证、产品性能检测报告以及原材料复试报告。
蒸压加气混凝土砌块、蒸压灰砂砖的龄期不小于28d,蒸压加气混凝土砌块施工时含水率宜小于15%,粉煤灰加气混凝土砌块含水率宜小于20%。
蒸压加气混凝土砌块尺寸允许偏差和外观质量标准。
表3.2 砌块材料要求表
|
项 目 |
允许偏差(mm)和外观质量 |
检查方法 |
|
|
表面疏松 |
不允许 |
目测检查 |
|
|
贯穿面棱的裂缝 |
不允许 |
目测检查 |
|
|
直径大于50mm 的灰团、空洞、暴裂和突出大于20mm |
不允许 |
钢卷尺、直尺检查 |
|
|
平面弯曲 |
不允许 |
||
|
尺寸允许 偏 差 |
长 度 |
-3,0 |
钢卷尺、直尺检查 |
|
高 度 |
±1 |
钢卷尺、直尺检查 |
|
|
宽 度 |
±1 |
钢卷尺、直尺检查 |
|
|
缺棱掉角深度 |
最小尺寸不大于30,最大尺寸不大于70,以上尺寸不大于2处 |
目测检查 |
|
3)、钢筋
进场钢材必须经过复试,合格后方可使用。拉接筋锚固用植筋胶,植筋胶必须为合格产品,有相应的检测报告,待锚固完毕,需要进行拉拔试验,同规格,同型号,基本相同部位组成一个检验批。抽取数量按每批总数的1‰计算,且不少于3 根。
所有材质均要求有出厂合格证,并按有关规定检验。
主要劳动力计划
表3.3 主要劳动力计划表
|
序号 |
施工工种 |
人数 |
|
|
至幸(1#、3#、4#、2S#、3S#) |
经兴源(2#、5#、1S#) |
||
|
1 |
泥瓦工 |
80 |
60 |
|
2 |
架子工 |
25 |
15 |
|
3 |
钢筋工 |
21 |
15 |
|
4 |
木工 |
24 |
18 |
|
5 |
混凝土工 |
24 |
18 |
|
6 |
普工 |
30 |
20 |
主要机械设备计划
表3.4 主要机械设备计划表
|
设备名称 |
型号 |
单位 |
数量 |
设备名称 |
型号 |
单位 |
数量 |
|
滚筒搅拌机 |
JS350 |
台 |
4 |
手推车 |
辆 |
10 |
|
|
电箱 |
个 |
8 |
灰桶 |
只 |
40 |
||
|
焊机 |
BX-500 |
台 |
5 |
水平尺 |
把 |
20 |
|
|
振捣器 |
A50 |
台 |
5 |
铁锹 |
把 |
30 |
|
|
磅秤 |
500Kg |
台 |
3 |
大铲 |
把 |
20 |
|
|
筛子 |
个 |
6 |
皮数杆 |
根 |
10 |
||
|
胶皮管 |
根 |
10 |
喷水壶 |
个 |
20 |
工期计划
表3.5砌体结构施工工期计划表
|
序号 |
施工部位 |
计划开始时间 |
计划完成时间 |
|
1 |
|||
|
2 |
|||
|
3 |
|||
|
4 |
|||
|
5 |
|||
|
6 |
|||
|
7 |
|||
|
8 |
|||
|
9 |
施工方法
施工流程
本工程填充墙体砌筑施工顺序如下:
材料、设备准备→施工楼层、墙基清理→结构梁柱轴线、标高投设→墙边线定位→拉墙筋设置(植筋)→墙体排砖→底部灰砂砖砌筑→加气混凝土砌块墙体砌筑→留置构造柱马牙槎→检查灰缝、墙面平整度→调整灰缝控制线→墙体砌筑→门窗洞口留设→圈梁(过梁)施工→窗顶墙体砌筑→检查灰缝、墙面平整度→调整灰缝控制线→墙体砌筑→构造柱施工→工完场清。
施工工艺
工艺流程

图4.2-1 砌体结构工艺流程图
基层处理及放线
将要砌墙处地面上的泥土、混凝土浮浆用铁锹、凿子铲除,并用水冲洗干净;根据图纸放线,将墙身轮廓线用墨线弹在地上;用同标号砂浆找平,拉线,用水平尺检查其平整度。
植筋施工
水平管调整标尺上下位置,使两边标尺对应标志水平。将标尺固定在墙边,根据皮数杆标志植墙拉筋。填充墙应沿框架柱全高每隔600mm设2 C 6拉筋,拉筋应沿墙全长贯通。砌块与拉结筋的连接,应预先在相应位置的砌块上表面开设凹槽;砌筑时,钢筋应居中放置在凹槽砂浆内。
每一楼层砖墙施工前,填充墙内构造柱按规范要求采用后植式埋设,具体施工工艺流程如下:
放线定位→钻孔→清孔→钢筋处理→灌注植筋胶→插入钢筋→调整→养护→检测





图4.2-3 植筋施工示意图
1)放线定位
根据结构设计图放出植筋定位线,孔位放线要避让原结构内主筋,以免损伤原结构钢筋,放线要准确按照设计图纸要求施工,在原结构与图纸不符时,要做好记录并通知设计人员,以便更改或提出建议。如有特殊情况,应根据现场情况做适当调整,经质检部门验收,位置符合设计要求后才可以钻孔。
2)钻孔
在标明的位置上用手提式电钻或台式钻机将孔打到设计要求的深度。钢筋植入深度一般为15d(d为所植钢筋直径),钻孔直径为钢筋直径+4mm,具体钻孔深度参考下表:
表4.2-1 钢筋直径及对应植筋钻孔深度
|
钢筋直径(mm) |
钻孔直径(mm) |
钻孔深度(mm) |
|
6 |
10 |
100 |
|
8 |
12 |
120 |
|
10 |
14 |
150 |
|
12 |
16 |
180 |
|
14 |
18 |
210 |
3)清孔
清孔是植筋中最重要的一个环节,因为孔钻完后内部会有很多灰粉、灰渣,直接影响植筋的质量,所以一定要把孔内杂物清理干净。方法是:用不掉毛的毛刷,套上加长棒,伸至孔底,来回反复抽动,把灰尘和碎渣带出,再用空压机吹出浮沉。吹完后可用脱脂棉沾酒精或*酮丙**擦洗孔壁,但不能用水擦洗,因为用酒精或*酮丙**容易挥发,水不易挥发。再者用水后孔内不会很快干燥。清孔完成后需要经质检部门验收,自检合格后报监理验收,验收合格后方可注胶。
4)钢筋处理
钢筋锚固长度范围的油污用溶剂清洗干净,方法是用干净脱脂棉丝蘸专用洗涤剂擦拭钢筋直至无油污感,如有铁锈用角磨机配钢丝刷除去,直到露出钢筋新面,处理完后按照不同直径、长度,统一堆放。
5)灌注植筋胶
按植筋剂使用说明书的要求将植筋剂与水按一定的比例调配好(一般为植筋剂:水=1:0.15~0.20),搅拌成均匀的胶泥(掌握稠度,稍稠便于插固钢筋即可)。用PVC塑料管或导管将胶泥导入管内,并送入孔中,再用另一杆将管内胶泥挤压入孔眼内;注入的量为当钢筋插入时有少量溢胶为宜。使用前应查看植筋胶的生产日期、合格证等相关质量证明材料,不得使用“三无”产品和过期产品,以保证拉结筋植筋的质量。
6)插入钢筋
灌注好植筋胶泥后,随即将准备好的钢筋慢慢旋转插进注完胶泥的孔内,插到满足钢筋的锚固长度为止,立即将钢筋上下提动旋转数下,排出气泡,保证孔内植筋胶饱满,同时将溢出的胶泥将孔口部位封堵饱满。
7)调整
将拉结钢筋插入后如需调整钢筋角度,应在短时内调整好,调整时不允许将钢筋向外拉。
8)养护
植筋施工完毕后注意保护,24小时之内严禁有任何扰动,以保证结构胶的正常固化。
9)检测
(1)填充墙化学植筋连接钢筋实体检测
填充墙与承重墙、柱、梁的连接钢筋,当采用化学植筋的连接方式时,应进行实体检测。
检测方法:原位试验检查,每六层进行一次取样。锚固钢筋拉拔试验的轴向受拉非破坏承载力应为6.0kN。
合格标准:抽检钢筋在检验值作用下应基材无裂缝、钢筋无滑移宏观裂损现象;持续2min期间荷载降低值不大于5%。
表4.2-2 检验批抽检锚固钢筋样本最小容量
|
检验批的容量 |
样本最小容量 |
检验批的容量 |
样本最小容量 |
|
≤90 |
5 |
281~500 |
20 |
|
91~150 |
8 |
501~1200 |
32 |
|
151~280 |
13 |
1201~3200 |
50 |
(2)混凝土后锚固承载力实体检测
植筋过程完成后,工长对所有植入钢筋进行检查,检查合格填写钢筋隐蔽验收记录表和检验批验收记录表,然后请质检员进行验收核定,核定无误后报请现场监理工程师进行验收,并在钢筋隐蔽验收记录表和检验批验收记录表上签署意见,通过验收后方可进行进行下道工序。
检测方法:植筋后进行非破损性拉拔试验,用来检测工作状态下的植筋质量。同规格,同型号,基本相同部位的植筋组成一个检验批。抽取数量按每批植筋总数的1‰计算,且不少于3根。
高层:2#、3#、4#楼分两个检验批,1~12层为一个检验批,13~24层为一个检验批。
超高层:1#楼分两个检验批,1~12层为一个检验批,13~24层为一个检验批,25~37层为一个检验批;5#楼分两个检验批,1~14层为一个检验批,15~28层为一个检验批,29~42层为一个检验批;43~53层为一个检验批。
首先采用非破坏性检验。检测中,连续加载,以匀速加载至设定荷载或锚固破坏,总加荷时间为2min~3min。如设计无要求,检验荷载可参照《混凝土结构后锚固技术规程》(JGJ145—2013)附录C取
。
合格标准:
①非破坏性检验荷载下,以混凝土基材无裂缝、锚栓或植筋无滑移等宏观裂损现象,且2min持荷期间荷载降不低于5%是为合格。当非破坏性检验为不合格时,应另抽取不少于3个锚栓做破坏性检验判断。
②对于破坏性检验,该批锚栓的极限抗滑力满足下列规定为合格:
式中:
NRmc ——锚栓极限抗拔力实测平均值(N);
NRminc ——锚栓极限抗拔力实测最小值(N);
fy ——植筋用钢筋的抗拉强度设计值(N/mm2);
As ——钢筋截面面积(mm2)。
③当检验结果不满足上述规定时,应会同有关部门依据试验结果,研究采取专门措施处理。
砌筑施工
精确加气块砌筑施工操作流程:
楼面及墙体清理→放线植筋→立皮数杆→制备砌筑砂浆→砌块排列→铺粘接剂(铺砂浆)→砌块就位→校正→镶砖→勒缝。
1)墙体放线:墙体施工前,应将基础顶面或楼层结构面按标高找平,依据图纸放出第一皮砌块的轴线,砌体的边线及门窗洞口位置线,在砖墙中设有钢筋混凝土构造柱时,在砌筑前应先将构造柱的位置弹出,并把构造柱插筋处理顺直。砌砖墙时与构造柱联结处,砌成马牙槎。
2)砌块应在砌筑当天对砌块砌筑面喷水湿润,相对含水率控制在40%~50%左右。
3)根据砌块砌体标高要求立好皮数杆,皮数杆立在砌体的转角处,纵向长度一般不应大于15m立一根。
4)砌筑砂浆:蒸压加气混凝土砌块采用薄层砂浆砌筑法砌筑,砌筑砂浆应采用专用粘结砂浆。普通砌块按设计要求的砂浆品种、强度等级购置预拌砂浆。现场拌制的砂浆应随拌随用,且应在3h内使用完毕。
5)砌块的排列:加气混凝土砌块砌筑前,必须按二次结构深化设计图设置皮数杆、拉水准线。结合砌块的品种规格,绘制砌体砌块的排列图,经审核无误后,按图进行排列。
6)排列应从基础顶面或楼层面进行,排列时应尽量采用主规格的砌块,砌体中主规格砌块应占总量的80%以上。
7)外墙转角处及纵横墙交接处,应将砌块分皮咬槎,交错搭砌。砌体转角处和交接处的各个方向砌体应同时砌筑。对不能同时砌筑而又必须留置的临时间断处,按下图所示留置斜槎,留槎处加设拉结筋,埋入长度≥1000mm。

图4.2-4 临时间断处斜槎
8)砌块砌体与结构构件位置有矛盾时,应先满足构件要求。
9)砌筑选择
① 铺粘结砂浆 :蒸压加气砼砌块砌筑时,应在每一块砌块全长上铺满粘接剂。铺粘接砂浆后,立即放置砌块,要求对准皮数杆,一次摆正找平,保证灰缝厚度。每皮砌块均须拉水准线。 精确砌块墙体砌筑时采用粘接剂砌筑时,灰缝应控制在2~4mm,砌筑好的灰缝应在初凝前用原浆勾缝,严禁用水冲浆灌缝。
②铺砌筑砂浆:普通砌块墙体砌筑时采用配套的粘结性能良好的专业砂浆砌筑,砌体水平灰缝厚度一般为15mm,竖向灰缝厚度一般为20mm,水平灰缝内配拉结钢筋,砂浆灰缝均应饱满,砂浆初凝前用PVC管勾缝。搅拌好的砂浆通过吊斗或手推车运至砌筑地点,在砌块就位前用大铁锹、灰勺,进行分块铺灰,较小的砌块量大铺灰长度不得超过1500mm。
10)砌块就位与校正:砌块砌筑前应把表面浮尘和杂物清理干净,砌块就位应先远后近,先下后上,先外后内,应从转角处或定位砌块处开始,吊砌一皮校正一皮。
11)竖缝灌砂浆:每砌一皮砌块就位后,用砂浆灌实直缝,随后进行灰缝的勒缝(原浆勾缝),深度一般为3~5mm。
(1)加气块不得用水浇湿,垂直灰缝2mm~4mm;灰砂砖垂直灰缝10mm。
(2)砌筑时应上下错缝,错缝距离不小于1/3砖长。
12)填充墙砌筑至接近梁、板底时,预留10~20mm缝,采用发泡胶填缝,底部砌体完成14d后进行填缝。
主要构造措施
主体结构施工时,应按构造柱、砌体内拉梁、压顶梁、过梁的设置要求预埋拉结筋或搭接钢筋,构造柱、拉梁、压顶梁、过梁为二次浇筑构件,应在本层砌体砌筑完成后进行,不得与主体结构同时施工,与楼梯相关的梁施工时,应配合楼梯详图预留插筋。
填充墙与剪力墙、框架柱(包括构造柱、楼梯柱等)的连结
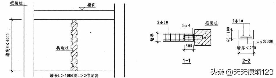
1)砌体填充墙墙净高超过4m时,在墙高中部(或门洞顶部)设置与柱或混凝土墙连接且沿墙全长贯通的钢筋混凝土水平拉梁,拉梁主筋为4C10,箍筋为C6@200,宽度同墙厚,梁高180mm,拉梁锚入框架柱长度不小于laE。具体做法详见下图。

2)填充墙在与墙、柱(包括构造柱、楼梯柱等)交接处宜采用预埋设置拉结筋,沿墙柱高度方向设置2C6水平拉结筋(根据现场砌体模数调整,基本原则不变),因本工程抗震设防烈度为6度,从砼面伸出700mm。砌体填充墙与剪力墙、框架柱拉结筋伸入墙内长度L1沿墙全长贯通。 精确砌块墙体砌筑时采用L型拉结筋,每600mm高设一道 。 若拉结筋未预埋则采用化学植筋法。具体做法详下图。


图4.3-1 填充墙与墙柱拉结大样
(括号内数字用于100mm厚墙,12ZG003第38页)
3)凡不同墙体材料连接处,均钉400宽小眼钢板网一层,再做粉刷。楼梯间及人流通道采用钢丝网砂浆面层加强A4@200×200满铺。
4)墙体与混凝土梁,柱交接处抹灰层应采取防裂措施,应采用耐碱纤维网格布或金属钢丝网加强,加强网布应压入抹灰层内,搭接宽度不应小于150mm。外墙装饰涂料宜采用弹性腻子和有防水性能的弹性涂料。
构造柱
1)填充墙无肢长度≥4000mm时,均需在在填充墙中部设置构造柱,使两构造柱间墙长小于层高2倍;
2)凡端部无墙肢的填充墙均须在端部设置构造柱;
3)电梯间四角、宽度≥1.8m洞口两侧须设置构造柱;
4)纵横墙体相交处也应设置构造柱;
构造柱及连系梁设置如下图:
5)构造柱尺寸为墙厚×200mm,竖向主筋为4C12,箍筋为C6@200/100,距离梁板顶部及底部600mm范围箍筋加密。
6)构造柱相连的上下梁板内可预埋搭接钢筋,其搭接(搭接头面积100%)和锚固长度不小于600mm。
7)除按规范要求需要设置的构造柱外,其余按照各栋楼的施工蓝图中标明的构造柱大样施工,主筋及箍筋均为三级钢。
8)墙体在构造柱位置应砌成马牙槎,马牙槎凹凸尺寸不宜小于50mm,高度不应超过300mm,马牙槎应先退后进,对称砌筑。填充墙与框架柱、构造柱或混凝土墙交接处,以及后砌墙体与先施工墙体间应按照设计和规范要求设置拉结钢筋,拉结钢筋的数量为2C6拉结钢筋,间距沿墙高不超过500mm,拉接钢筋沿墙通长设置。
9)构造柱施工工序:绑扎钢筋→砌砖墙→支模板→浇混凝土→养护→拆模。
10)构造柱钢筋绑完后,应先砌墙,后浇筑混凝土,在构造柱处,墙体中应留好拉结筋。浇筑构造柱混凝土前,应将柱根处杂物清理干净,并用压力水冲洗干净,然后才能浇筑混凝土。构造柱顶采用干硬性混凝土捻实。
11)构造柱模板采用木模板,每层砖墙及其马牙槎砌好后立即支设模板,模板必须与所在墙的两侧严密贴紧,支撑牢靠,防止漏浆。构造柱底部两皮砖高的孔洞,以便清除模板内的杂物,清除后封闭。
12)浇筑前应对马牙槎部位及模板进行湿润,并清理杂物,在结合面注入适量与构造柱混凝土相同的去石水泥砂浆。
构造柱及马牙槎做法详见下图。

图4.3-4 构造柱及马牙槎做法
窗台压顶和墙下翻边
所有外墙窗台均设窗台压顶,窗台压顶梁两端伸至墙内各250mm。
图4.3-5 窗台压顶构造图(钢筋均为三级钢)
过梁
砌体填充墙门、窗洞口凡需要设置过梁处,按照下表执行。

当洞口处过梁顶标高与结构梁板底标高高差小于过梁梁高时,过梁应与结构整浇,按下图施工。
图4.3-6 过梁构造图(钢筋均为三级钢)
当过梁一端与剪力墙、构造柱相交时,则过梁钢筋在该侧伸入墙柱内满足锚固长度laE。
当过梁高度h≥300且遇混凝土柱采用现浇时,现浇过梁的箍筋应按框架梁的要求配置,即过梁箍筋在加密区段加密配置。当与现浇过梁连接的框架柱被过梁分隔后的净高与其较大边边长的比值≤4时,则该区段的框架柱箍筋沿该区段全高加密。
连系梁
填充墙净高>4m时,每隔2米设置一道与框架柱、剪力墙、构造柱连接且沿填充墙全长贯通的钢筋混凝土联系梁。连系梁截面为(墙厚×120),配筋:4C10,A6@200,连系梁构造详下图。

图4.3-7 构造柱及水平连系梁设置(一)

图4.3-8 构造柱及水平连系梁设置(二)
墙与板、梁底连接处
1)精确加气块填充墙
精确加气块填充墙除注明外均应砌至楼板底或梁底并挤实,墙顶部砌至墙柱板梁板附近后预留10~20mm缝,待墙体施工完成14d后进行填缝。顶缝采用PU发泡剂填充,墙内侧采用专用嵌缝剂封堵,墙外侧用PE棒嵌固后再用专用嵌缝剂封堵(详见大样图4.3-9)。砌体墙底缝砌筑10~20mm水泥砂浆,墙外墙侧采用专用嵌缝剂封堵密实(详见大样图4.3-10)。

图4.3-9 砌体墙顶部及侧边与混凝土墙柱梁板连接墙缝做法大样

图4.3-10 砌体墙底部与混凝土墙梁板连接墙缝做法大样
2)普通加气块填充墙
墙体接近梁底或楼板底时,墙顶部预留160~180mm,砌筑一皮实心灰砂砖。填充墙砌筑完至少间隔14d,待砌体和砂浆收缩沉降均匀后,再施工斜砌砖。施工时用实心灰砂砖以60°角斜砌挤紧,敲紧顶实,双侧竖缝用高标号水泥砂浆嵌填密实。

图4.3-11 普通砌块填充墙顶部斜砌做法大样
翻边
卫生间、厨房、外墙底部及水电井等有可能积水、积液或怕潮的房间与屋面相连处的墙体底部应设300mm高C20混凝土翻边,宽度同墙厚,门洞处不设置。

图4.3-12 翻边大样
门窗洞口
(1)门窗洞边距框架柱、混凝土墙、构造柱边小于240mm时,应沿门窗洞高度范围设置现浇混凝土门(窗)垛,且门(窗)垛应配置构造钢筋与框架柱、构造柱连接。
图4.3-13 门窗垛大样图(钢筋均为三级钢)
(2)门窗洞口两侧边按要求设置C20细石混凝土预制块,预制块间距不小于600mm,即当洞口高度≤1.2m时,洞口每侧设置2块;当1.2m<洞口高度≤2.0m,洞口每侧设置3块;当2.0m<洞口高度≤3.0m,洞口每侧设置4块。


图4.3-14 门洞口侧边混凝土预制块设置


图4.3-15 窗洞口侧边混凝土预制块设置
女儿墙
女儿墙墙柱竖向主筋为4C14,箍筋为C6@200,做法见下图。

女儿墙、压顶粉刷层每隔2.5m及易产生变形开裂部位设分格缝,分格缝宽为10mm,缝内嵌填密封材料。
其他要求
1)多孔砖,空心砖,小型砌块墙体表面不得留置水平沟槽。墙体预埋管线宜在竖直方向用切割机开槽布设,严禁硬凿或损坏墙体,固定好后,采用细石混凝土或1:2.5水泥砂浆填实,且宜比墙面微凹10mm,并粘贴耐碱纤维网格布,网格布宽度盖过缝隙边缘不小于150mm。
2)墙体粉刷层由于结构偏差或装饰需要,抹灰厚度超过35mm时应采取加强措施,并经设计单位复核,施工时应进行隐蔽验收。
质量保证措施
质量保证措施
1)砌体工程所用的材料进场时检验产品合格证书、产品性能检验报告,保证材料质量符合国家现行有关标准的要求。另外对砌块、水泥、钢筋、外加剂进行复试,合格材料方可使用。对于不合格的材料,进行退场处理。杜绝使用国家明令淘汰的材料。
2)不得在下列部位设置脚手眼:
(1)120厚墙、独立柱和附墙柱;
(2)过梁上与过梁成60°角的三角形范围及过梁净跨度1/2的高度范围内;
(3)宽度小于1m的窗间墙;
(4)门窗洞口两侧200mm,转角处450mm范围内;
(5)梁或梁垫下及其左右500mm范围内;
(6)设计不允许设置脚手眼的部位。
3)脚手眼补齐时,清除脚手眼内掉落的砂浆、灰尘;脚手眼处砖及填塞用砖先湿润,砂浆填实。
4)设计图的洞口、沟槽、管道应于砌筑时正确留出或预埋,不得随意打凿墙体和在墙体上开凿水平沟槽。
5)砌筑完每一楼层后,及时校核砌体的轴线和标高。在允许偏差范围内,轴线偏差可在楼面上校正,标高偏差通过调整上部砌体灰缝厚度校正。
6)雨天不宜在露天砌筑墙体,对下雨当日砌筑的墙体应进行遮盖。继续施工时,应复核墙体的垂直度,如果垂直度超过允许偏差,应拆除重新砌筑。
7)砌体施工时,楼面和屋面堆载不得超过楼板的允许荷载值。当施工层进料口处施工荷载较大时楼板下宜采取临时支撑措施。
8)砌块和砂浆的强度等级必须符合设计要求。
9)砖砌体的转角处和交接处应同时砌筑,严禁无可靠措施的内外墙分砌施工。抗震设防烈度为6度、7度地区的临时间断处,当不能留斜槎时,除转角处外,可留直槎,但直槎必须做成凸槎,且应加设拉结钢筋。
10)砌筑工程使用的砂浆根据气候条件采取遮阳、保温、防雨等措施,砂浆在储存时严禁随意加水。
质量标准
不同干密度和强度等级的蒸压加气混凝土砌块砌体不能混砌,蒸压加气混凝土砌块砌体也不得与其他砖、砌块混砌。但在墙底、墙顶及门窗洞口处局部可采用粉煤灰砖嵌砌。墙砌体留置的拉结筋位置应与块体皮数相符合,拉结筋应置于灰缝中,埋置长度应符合要求,竖向位置偏差不应超一皮砌块高度。
1)一般规定
(1)加气混凝土砌块开始砌筑时,其产品龄期应超过28d。
(2)加气混凝土砌块运输、装卸过程中,严禁抛掷和倾倒,进场后应按规格、品种分别堆放整齐,堆放高度不得超过2m,防止雨淋。
(3)砌筑前,加气混凝土砌块应在砌筑当天对砌块砌筑面喷水湿润。
(4)加气混凝土砌块砌筑时,墙底部应砌筑粉煤灰砖,或现浇混凝土翻边,其高度不宜小于200mm。
2)主控项目
(1)砌块和砌筑砂浆的强度等级应符合设计要求。
(2)砌块的抗冻性能,强度等级损失≤20%,表观密度损失≤5%。
(3)检验方法:检查砌块的产品合格证书,产品性能检测报告和砂浆试验报告。
3)蒸压加气混凝土砌块砌体一般允许偏差项目
表5.2-1 蒸压加气混凝土砌块砌体允许偏差项目
|
项 次 |
项 目 |
允许偏差(mm) |
检查方法 |
|
|
1 |
轴线位移 |
10 |
用尺检查 |
|
|
垂直度 |
小于或等于3m |
5 |
用2m托线板或吊线检查 |
|
|
大于3m |
10 |
|||
|
2 |
表面平整度 |
8 |
用2m靠尺和楔形塞尺检查 |
|
|
3 |
门窗洞口高、宽(后塞框) |
±10 |
用尺检查 |
|
|
4 |
外墙上下窗口偏移 |
20 |
用经纬仪或吊线检查 |
|
4)蒸压加气混凝土砌块砌体的砂浆饱满度及检验方法
表5.2-2 蒸压加气混凝土砌块砌体砂浆饱满度要求及检验
|
砌体分类 |
灰缝 |
砂浆饱满度 |
检验方法 |
|
加气混凝土砌块砌体 |
水平 |
≥80% |
采用百格网检查块材底面砂浆的粘结痕迹面积 |
|
垂直 |
应注意的质量问题
1)砌体粘结不牢:原因是砌块浇水、清理不好,砌块砌筑时一次铺砂浆的面积过大,校正不及时;砌块在砌筑使用的前,应充分浇水湿润,随吊运随将砌块表面清理干净;砌块就位后应及时校正,紧跟着用砂浆灌竖缝。
2)第一皮砌块底铺砂浆厚度不均匀:原因是基底未事先用细石混凝土找平标高,必然造成砌筑时灰缝厚度不一,应注意砌筑基底找平。
3)砌体偏差超规定:控制每皮砌块高度不准确,应严格按标杆高度控制,掌握铺灰厚度。
成品保护
1)蒸压加气混凝土砌块运输、装卸过程中,严禁抛掷和倾斜,防止损坏棱角边。
2)蒸压加气混凝土砌块堆放场地应比其他地面高一些,防止泡水,雨天应覆盖防止雨淋。
3)墙体上的预留孔槽应留准,因漏埋或未留时,重新剔凿应采取措施,不因剔凿而损坏砌体的完整性。
4)砌筑施工应及时清除落地砂浆。
5)拆除施工架子时,应注意保护墙体及门窗洞口边角。
安全保证措施
6.1 安全管理方针
安全管理方针是“安全第一、预防为主”。
6.2 安全组织保证体系
建立健全安全生产管理机构,成立以项目经理为组长的安全生产领导小组,全面负责并领导本项目的安全生产工作。小组成员名单如下:
项目经理为第一安全责任人,常务副经理、安全总监、生产经理、技术负责人为直接安全责任人,并相应成立砌体施工管理领导小组。
组 长:xxxx
副组长:xxxx
组 员:现场管理人员及各队伍负责人
图6.2-1 安全组织体系图
6.3 安全管理制度
1)安全技术交底制:根据安全措施要求和现场实际情况,各级管理人员需亲自逐级进行书面交底。
2)班前检查制:区域责任工程师和专业监理工程师必须督促与检查施工方、专业分公司对安全防护措施是否进行了检查。
3)外脚手架、垂直运输等大中型机械设备安装实行验收制,凡不经验收的一律不得投入使用。
4)安全活动制,经理部每周要组织全体工人进行安全教育,对上一周安全方面存在的问题进行总结,对本周的安全重点和注意事项作必要的交底,使广大工人能心中有数,从意识上时刻注意安全。
5)定期检查与隐患整改制:经理部每周要组织一次安全生产检查,对查出的安全隐患必须定措施、定时间、定人员整改,并作好安全隐患整改消项记录。
6)管理人员和特种作业人员实行年审制,每年由公司统一组织进行,加强施工管理人员的安全考核,增强安全意识,避免违章指挥。
7)实行安全生产奖罚制与事故报告制。
8)危急情况停工制;一旦出现危及职工生命财产安全险情,要立即停工,同时即刻报告公司,及时采取措施排除险情。
9)持证上岗制;特殊工种必需持有上岗操作证,严禁无证操作。
6.4 安全管理工作
1)项目经理部负责整个现场的安全生产工作,严格遵照施工组织设计和施工技术措施规定的有关安全措施组织施工。
2)项目部要检查分包方、专业分公司,认真做好分部分项工程安全技术书面交底工作,被交底人要签字认可。
3)在施工过程中对薄弱部位、环节要予以重点控制,从设备进场检验、安装及日常操作要严加控制与监督。凡设备性能不符全安全要求的一律不准使用。
4)防护设备的变动必须经项目经理部安全总监批准,变动后要有相应有效的防护措施,作业完后按原标准恢复,所有书面资料由经理部安全总监保管。
5)对安全生产设施进行必要的、合理的投入。重要劳动防护用品必须购买定点厂家的认定产品。
6)分析安全难点,确定安全管理难点。在每个大的施工阶段开始之前,分析该阶段的施工条件、施工特点、施工方法,预测施工安全难点和事故隐患,确定管理点和预控措施。
在二次结构施工阶段,安全难点集中在:
(1)高空施工防坠落,立体交叉施工防物体打击;
(2)制订施工现场安全防护基本标准。
制订施工现场安全防护基本标准,如:脚手架搭设及使用防护标准;各类洞口及临边地带的防护标准;施工临时用电安全防护标准;各类施工机械和设备的安全防护标准;施工现场消防工作管理标准等。
6.5 安全技术措施
1)砌筑前应进行安全技术交底,使操作人员清楚地认识到该工程应注意哪些不利因素,并加以高度预防;加强安全管理力度,落实安全技术措施。
2)操作前进行安全检查,现场操作环境、安全措施和防护用品及机具符合要求后方可施工;操作人员必须戴好安全帽,佩戴劳动保护用品等。
3)砌筑墙体时应搭设脚手架,墙体高度超过4m时脚手架必须支搭安全网;砌筑外架及室内砌筑临时架搭设完毕,须经安全员检查验收后方可使用。
4)脚手架上堆砖高度不得超过3皮侧砖,同一块脚手板上操作人员不得超过二人。
5)在楼层施工时,堆放在楼层上的砌块重量,不得超过楼板允许承载力;每楼层堆置的砌块高度不能超过1m。
6)安装砌块时,不准站在墙上操作,不得在墙上设置受力支撑、缆绳等;不得踩踏砌体;操作层的脚手架必须满铺跳板,严禁搭设有探头板。
7)吊放砌块前必须检查吊装机械设备的安全可靠程度,不灵活的或性能不符合要求的严禁使用;使用机械运载砌块时不得超载,同时设有限位保险装置。
8)机械设备用电必须符合“三相五线制”及三级保护的规定。
9)在砌块砌体上不得吊挂重物,也不宜作为其它临时施工设施、支撑的支承点。
10)砌块运输车辆水平运输两车前后距离不得小于2m。
11)人工上下传递砌块时,应搭设递砖架子,架子的站人板宽应不得小于60cm;不得在超过胸部以上的墙体进行砌筑。
12)砖过梁底部的模板,应在灰缝砂浆强度不低于设计强度的50%时,方可拆除。
13)严禁站在墙上做划线、吊线、清扫墙面、支设模板等施工作业。
14)外墙施工时,必须有外墙防护及施工脚手架,墙与脚手架间的间隙应封闭防高空坠物伤人。
季节性施工措施
7.1 雨季施工
根据本工程施工进度计划,本工程砌筑工程(地下砌体)施工将经历一个雨季施工。
1)雨季施工时,蒸压加气混凝土砌块应有防雨措施,砌块严禁被雨淋。
2)雨天不宜露天砌筑墙体,对下雨当日砌筑的墙体应进行遮盖。继续施工时,应复核墙体的垂直度,如果垂直度超过允许偏差,应拆除重新砌筑。
7.2 冬期施工
1)砌体用块体不得遭水浸冻。
2)拌合砂浆时水的温度不得超过80℃,砂的温度不得超过40℃。
3)配筋砌体不得采用掺氯盐的砂浆施工。
文明施工及环保措施
1)文明施工是一个系统工程,贯穿于项目施工管理的始终。它是施工现场综合管理水平的体现,涉及项目每一个人员的生产、生活及工作环境,加强项目管理人员的文明施工意识。
2)施工现场垃圾按指定的地点集中收集,并及时运出现场,时刻保持现场的文明。
3)在施工过程中,自觉地形成环保意识要创造良好的生产工作环境,最大限度地减少施工所产生的噪声与环境污染,参与施工的设备噪音均应控制在国家和武汉市允许的范围内。
4)制定文明施工制度,划分环卫包干区,做到责任到人。
5)吊运砂浆的料斗不能装得过满,砂浆在现场内的遗洒应及时清理干净。
6)现场废弃的砖头、砌块碎块应及时归堆清理,不得有无人过问的现象。
7)施工班组长必须对班组作业区的文明现场负责。坚持“谁施工、谁清理”,做到工完场清,下班前必须清理干净。
8)砌块砌筑施工时,应采取措施消除或减轻粉尘、污水的排放及噪声污染、油品泄漏等。
9)具体措施:
(1)加强宣传与教育,提高施工人员的环保意识,使大家认识到环保的重要性。
(2)加强环保管理力度,落实环保措施。
(3)粉尘的排放控制:对砂、石、水泥、粉状外加剂等材料进行遮盖,砌块搬运应进行清扫。
(4)噪声的控制:搅拌机应搭设搅拌棚,并四周围护,施工人员尽量避免大声喧哗,吊装操作应尽量做到一次吊装完毕,减少往返及重复次数。
(5)污水排放的控制:搅拌机处应设置污水沉淀池,搅拌污水应排入沉淀池内,经沉淀后排入市政排污管网。
(6)油品泄漏的控制:加强设备检修维护,防护油品泄漏;维修机械和更换油品时,必须配置油盒、油桶和塑料布,防止油品酒漏在地面或渗入土壤。做好废油回收工作,严禁直接排入水管道。
(7)砌体中的落地灰及碎砌块应及时清理成堆,装车或装袋运输,严禁从楼上或架子上抛下。
(8)施工垃圾应装入水泥袋内统一运下,不得到处抛撒,外运时应进行遮盖,防止尘土飞扬,造成大气污染。
(9)砌块的切割作业,应选定加工点,并进行封闭围护,防止粉尘飞扬,同时操作人员应佩戴口罩,防止粉尘排入人体。
(10)经常进行场地清扫,并洒水、保持场地清洁,无尘土飞扬现象。
(11)现场实行封闭化施工,有效控制噪声、扬尘、废物、废水等排放。