上周三,发布了一篇关于“家的面积和半包装修费用”的征集令,同是107㎡的半包装修,有朋友花了4.8W,也有朋友花了7.5W:


有朋友的各项花费很均衡,也有朋友光水电就占去1/4:


不同的面积,不同的居住需求,装修的费用都是不一样的。基于此,今天咱们就来聊聊半包装修以及飞墨家不同的半包价格装修出的家的样子!

首先,咱们要先清楚,啥是半包装修?即:装修公司负责设计+施工+辅材,业主购买主材的合作式装修。
这种装修方式最大的优点就是:
省时省心省力:设计、施工装修公司负责;自己只要选购主材即可。把握质量和控制预算:辅材公司包,主材自己买,质量和价格可控。
这种装修方式最适合:
第一次装修的小白们、没有多少时间的广大上班族、以及追求性价比的朋友们。

下面,重点来了!!!咱们来看看在飞墨家,不同的半包价格,能装出什么样的家:
半包6-10W
01

《澄澈》
面积大小:89㎡
半包价格:6W
设计风格:北欧风
项目地址:合肥-宝能城

△原始户型VS设计方案



02

《琼琚》
面积大小:90㎡
半包价格:7W
设计风格:日式风
项目地址:合肥-文一泊心湾

△原始户型VS设计方案




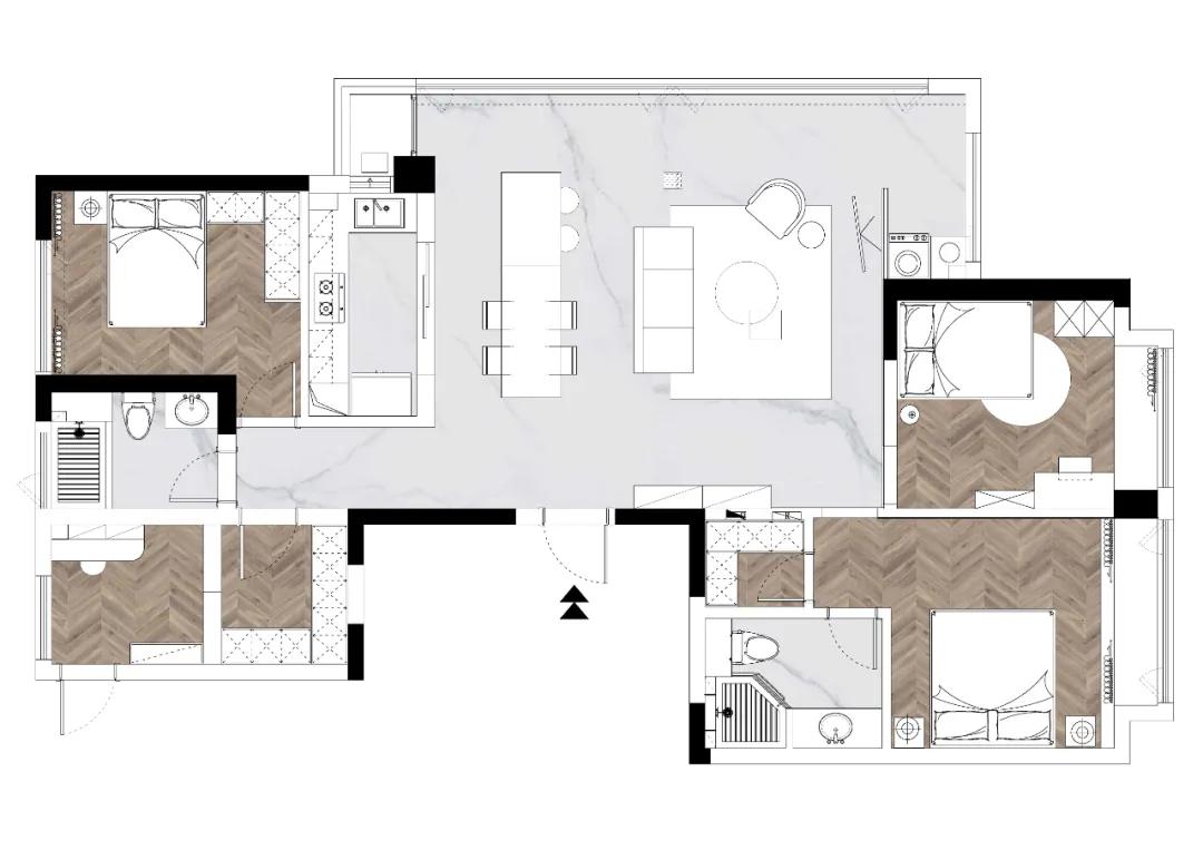
03

《星光》
面积大小:130㎡
半包价格:8W
设计风格:现代法式风
项目地址:合肥-建发雍龙府

原始户型

设计方案




04

《青梅煮酒》
面积大小:103㎡
半包价格:9W
设计风格:日式+北欧混搭风
项目地址:合肥-和顺叶语溪

原始户型

设计方案

半包10W以内,对于100㎡左右及以内的房子来说,有很大的可能性和选择性,建议:

① 轻硬装,重软装。减少大面积的墙体拆改和新建,若想要优化空间布局,建议局部小范围拆改。
② 大面积的墙面材质建议选择乳胶漆,若想要更个性可选择拼色墙。

③ 顶面设计上建议不吊顶或局部吊顶;地面设计上若想要异形砖建议小面积局部铺贴。
④ 在风格的选择上,保守考虑建议北欧风、日式风略省钱的风格。

当然啦,对于>100㎡的房子来说,半包10W以内也是可以的,如第三套《星光》这个130㎡半包8W的家,整体空间的墙面以乳胶漆+简约石膏线呈现,低成本打造大气高级的视觉效果。
半包11-15W
不管是80㎡~90㎡的小户型,还是160㎡的大户型,半包11-15W都可以呈现,但是表现效果是不同的:
01

《觅春》
面积大小:88㎡精装房改造
半包价格:11W
设计风格:现代简约风
项目地址:合肥-保利五月花

△原始户型VS设计方案




02

《逢春》
面积大小:160㎡精装房改造
半包价格:12W
设计风格:现代休闲风
项目地址:合肥-融创壹号院

原始户型

设计方案




03

《山茶》
面积大小:96㎡
半包价格:14W
设计风格:现代简约风
项目地址:合肥-中海滨湖公馆

原始户型

设计方案




04

《馥芮白》
面积大小:160㎡
半包价格:15W
设计风格:轻奢法式风
项目地址:定远-曲阳新天地

原始户型

设计方案

半包11-15W装修建议:

① 建议找设计师,以便将预算发挥出最佳的效果。
② 可根据居住需求进行空间内部的结构重组,适当增加硬装上的费用;选择更高级舒适的设计方式,如无主灯设计、隐形设计等。

③ 如果是精装房,在此预算下亦可考虑拆除重装,效果更赞。
④ 在风格的选择上,可选现代风、简约风、轻奢风相对于北欧风、日式来说略“烧钱”也更高级的风格。

半包16-20W
半包16-20W,不仅能够满足常规的平层,对于>180㎡的大平层和跃层来说亦可:
01

《尤加利》
面积大小:140㎡
设计风格:现代风
半包+定制:16W
项目地址:合肥-中海世家

原始户型

设计方案




02

《风吟》
面积大小:140㎡跃层
半包价格:18W
设计风格:现代风
项目地址:合肥-平湖秋月

一楼原始户型

一楼设计方案




二楼原始户型

二楼设计方案


03

《银河》
面积大小:193㎡
半包价格:20W
设计风格:极简风
项目地址:合肥-绿城*瑰园玫**

原始户型

设计方案

半包16-20W装修建议:
① 依然建议找专业的设计师,将预算发挥出最佳效果。

② 可着重硬装设计,让家更有质感,如选择大面积的石材和木饰面板、全屋吊平顶结合无主灯,以及全屋柜体的定制化呈现。

③ 在风格的选择上,除了现代风、简约风外,还可大胆的选择极简风,表现都会不错。
半包20W+

20W+的预算……复式和别墅了解一下:
01

《山归来》
面积大小:296㎡复式
半包价格:28W
设计风格:法式轻奢风
项目地址:合肥-望湖城和欣家园

一楼原始户型

一楼设计方案

二楼原始户型

二楼设计方案
02

《时光剪影》
面积大小:135㎡+80㎡院子+90㎡地下室
半包价格:34W
设计风格:轻奢风
项目地址:合肥-海亮红玺台

原始户型

03
《光熠》
面积大小:450㎡六层别墅
半包价格:70W
设计风格:现代轻奢风
项目地址:合肥-铂悦庐州府
半包20W+装修建议:

① 一定一定一定要找专业的设计师,不然装瞎了不仅费钱还费房子。
② 对于大户型来说,更要着重整体性的设计,视觉才会更高级。
③ 在风格的选择上,选择更有质感且大气的现代风、轻奢风、法式、美式风格等。

对于装修来说,房子的面积越大、装修的品质越好、装修的项目越多,相应的装修费用必然也就越高。高颜值、高舒适、高性价比,才是大家最最最关注的重点。正准备装修的朋友们,以上这些实景案例中有与你家面积和预算相似的吗?不管有没有,欢迎来撩,参与家的设计与落地,开启美好新生活!!!
飞墨设计|飞墨设计 一种生活方式的选择