
转自:QAU设计新势力 作者:凤梨酱
经典园林平面图
南方苏杭经典园林平面图
以下整理了南方苏杭以及北方经典园林平面,一起来感受与体验园林的内涵、园林规划的设计手法。
皇家园林
【1 苏州古典园林分布图】

【2 拙政园】

【3 留园】

【4 网师园】

【5 艺圃】

【6 沧浪亭】

【7 狮子林】

【8 环秀山庄】

【9 怡园】

【10 虎丘、拥翠山庄】


杭州篇
【1 西湖风景名胜区景点分布】


【2 西湖三岛】

【3 三潭映月】

【4 曲院风荷】

【5 虎跑】

【6 灵隐寺】

【7 花圃】

【8 花港观鱼】

【9 太子湾公园及竖向设计】


【10 西泠印社】

北方经典园林平面图
皇家园林
【1 故宫】
1-故宫平面图


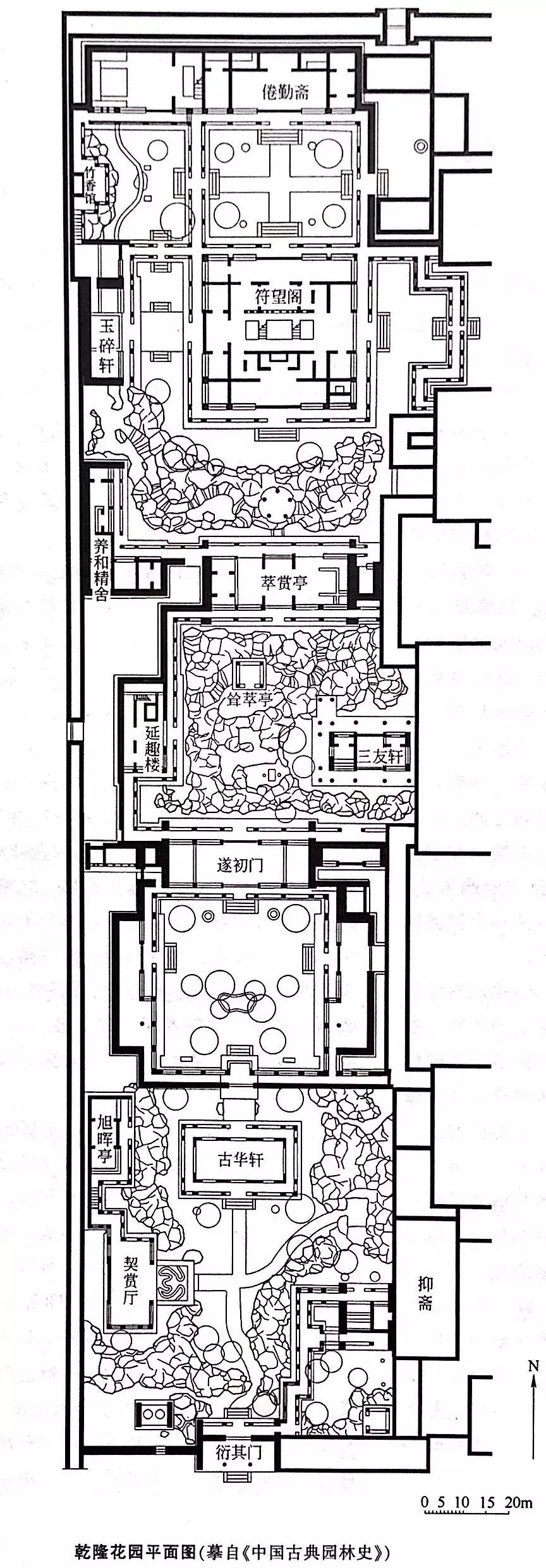
【2 乾隆花园平面图】

【2 颐和园】
1-清代北京西北郊园林分布图

2-颐和园平面图

3-颐和园万寿山前山平面图

4-万寿山后山平面图

5-谐趣园平面图

【3 圆明园】
1-圆明园


2-圆明园四十景图——正大光明、碧桐书院、茹古涵今



【4 北海】
1-北海平面图

2-琼华岛平面图

3-濠濮间平面图

4-画舫斋平面图

5-静心斋平面图

【5 景山公园】

【6 承德避暑山庄】
1-承德避暑山庄及外八庙平面图

2-避暑山庄水系

3-正宫平面图

4-如意洲平面图

5-月色江声平面图

6-青风绿屿平面图

7-山近轩平面图

8-碧静堂平面图

9-玉岑精舍平面图

10-秀起堂平面图

11-烟雨楼平面图

12-小金山平面图

13-文津阁平面图

14-普陀宗乘之庙

【7 天坛】

现代公园
【1 紫竹院公园】
1-紫竹院公园平面图

2-筠石园平面图

3-友贤山馆平面图

【2 陶然亭公园】
1-陶然亭公园改造方案平面图

2-华夏名亭园平面图

3-兰亭及周边环境

【3 玉渊潭公园】
1-玉渊潭山水关系图

2-樱花园平面图

3-留春园平面图

【4 菖蒲河公园】

【5 皇城根遗址公园】
1-平安大街节点效果图

2-皇城根遗址公园南入口节点平面

【6 元大都土城遗址公园(海淀段)】

【7 北京植物园】
1-植物分区规划图

2-道路系统现状图

3-牡丹芍药园平面图

4-月季园平面图

【8 奥林匹克公园】
1-奥林匹克公园平面图

2-奥林匹克森林公园平面图

3-奥林匹克森林公园地形设计图

4-奥林匹克公园中心区文化综合区

南北方经典园林平面,必须收了!