和老公努力10年终于有了自己的家 (恋爱8年终于有了自己的小家)

☞点击上面蓝字 关注谷居

今天的屋主叫黄小邪,是个特别可爱的姑娘,

和老公在大学里牵手,

恋爱七年,从一起上课下课,

到一起上班下班,

一起买一套小房子,一起装修,

还养了一直特别可爱的狗。

简单但富有生活气息的家

先来晒一波狗子吧,

看着它的笑,

就感觉什么烦恼都没有了。

日常看起来就是个白嫩嫩的小公举

也会和其它狗子一样,垂涎美食

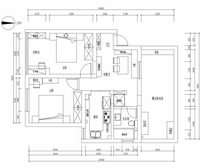
这是一套老公寓,

优点是:

1.两房朝南、卧室较大、父母来也能住的很舒服;

2.有个赠送的大露台;

3.全明边套;

4.厨房相对面积不小,夫妻俩可以在里面一起做饭。

缺点也是有的:

客厅太小 这也是很多老房子的通病。

户型:2室

使用面积:70㎡

装修花费:20W

玄关鞋柜,上下柜分开

中间留台面放进出门随手物品,

下柜吊起,底部放拖鞋,

显得比较整洁。

进门右手边安置挂钩

挂袋子、围巾、雨伞等。

收纳筐拯救了那些,

冬天随手乱扔的围巾、帽子、包包......

客厅面积只有9㎡左右,

为了使整个空间不过于压抑拥挤,

黄小邪舍弃了心心念念的沙发,

将客餐厅功能合为一体,餐桌作为客厅中心,

两侧相对设置卡座和椅子,

卡座对面设置电视墙。

卡座设计成L形

一边卡座一边餐边柜,

卡座下也带有四个抽屉,储物力强

餐边柜的对侧敲了一部分墙,

木工现场做了嵌入式开放书柜

和旁边的厨房门同高,

颜色则与餐桌一致。

周末的清晨,

从客厅往主卧的方向看,

家给人带来的幸福感大致就是如此吧。

床对面安置了梳妆台和斗柜

这里也有想要改造的部分:

在电视上方加一排质感好原木色隐形隔板

放置一些绿植和装饰。

因为是小空间,

所以选择了到顶的三开门移门衣柜

可以将储物空间发挥到最大,

也不留卫生死角。

衣柜内部收纳图,

帆布篮收纳的,是穿过一次还不需要清洗的,

底部根据们打开的方便程度,

分别选择了抽屉和铁框,

作为衣物收纳。

晚上的主卧,温馨淡雅,

两个卧室的床选择的,

都是可上翻的高箱储物床,

小户型,对储物能力的要求更高

次卧和一个朝南的内阳台相连,

由于朝南,冬季光照好,

所以也布置了晾晒系统,

其他季节的晾晒主要在北面阳光房,

内阳台的西侧做了通高储物柜,

和墙垛齐平,不会显得压抑。

进门一侧同样是通高移门衣柜

内阳台东侧,

布置了个小型家庭工作区

现阶段次卧基本是父母偶尔来住,

考虑到上一辈人生活习惯,

还是安装了电视,

电视挂上墙后,

在下方加了隔板

方便置物,墙面也没那么单调了。

切配区。

烹饪区。

隔板台面主要安置常用小家电

也可以作为配菜时的补偿台面。

除了橱柜外,

墙面也利用了挂杆、支架、吸铁石、铁丝网

提升储物能力。

在厨房里,

为自己和家人做健康舒心的食物。

由于移动了马桶的位置,

所以选择了墙排马桶,

马桶上方安装了电热毛巾架,

毛巾经常保持干爽可以增加幸福感~

卫生间门口的过道,

有一个凹进去的区域,

做了整面的储物柜,

黄小邪对储物的追求就是这么执着!

幸福就是你做饭刷碗,

我吃饭拍照。

露台原来是整个敞开的,非常开阔,

但为了使用起见,

被黄小邪整个封起来,

做了阳光房,干净好打理,

玻璃顶上装了遮阳帘,

可以根据需要开关,

每每看到清晨的阳光,

就觉得很幸福,

这种时候她就特别喜欢在阳光房洗漱。

露台呈长方形

东面是洗衣、清洁、绿植区。

洗衣区正面照,

洗衣柜是淘宝的一体式洗衣柜

价格实惠,晒着也不心疼,

缺点就是台面不耐脏,

上方用储物系统

轻便灵活且实用。

阳光房西面是健身区

最西面一堵墙放了一排书架,

遮挡了客厅出来的空调管子,

价格实惠不怕晒坏。

迷你可折叠跑步机,适合小户型,

洞洞板方便收纳清洁工具。

洞洞板近照。

还没买跑步机的冬天,

阳光正好,

晒着太阳做手工,

一切都是正好的样子。

“你好像瘦了,头发也变长了,

背影陌生到让我觉得,见你是上个世纪的事,

然后你开口叫我名字,我就想笑,

好像自己刚刚放学,

只在班级门口等了你五分钟而已。”

“嗯......确实只等了五分钟而已,

不过是下班一起回家。”

(内容来源:装个好房子)

↙↙点击【阅读原文】即可报名量房,获取免费的室内VR设计