我是云栖建筑小编,每日分享乡村建房精美案例,点击上方“关注”,每日获取最新精美案例呦~

项目名称丨北京平谷苏家现代别墅初稿项目位置丨北京平谷建筑尺寸丨17.95*11.25m占地面积丨164.78㎡建筑面积丨336.36㎡建筑风格丨现代结构形式丨砖混结构
——
束缚于朝九晚五生活的我们,都梦想有一个接地气的大院子,每天浇花,捉虫,除草,听虫鸣鸟叫,闻花香晒太阳。
有机会回乡建一栋别墅,尽情拥享美好,重拾生活的热情。
建筑效果图

东南侧人视图
该项目位于北京平谷,主体为二层+屋顶露台现代别墅。
场地的南侧为胡同,西侧、北侧均为邻居,东侧是村里主路,也是进入场地的主要流线。

东侧人视图

南侧人视图
建筑整体采用白色真石漆,局部门厅点缀木饰板装饰,灰色门窗的撞色搭配使得建筑形成一种包裹和穿插感,赋予空间别样的感受。
依据现场情况,将主入口放置在东侧,同时也是风水的最佳位置,院墙被木格栅包围,精致通透感瞬间拉满,远处看去整个建筑体量关系凹凸有致,形态上简洁纯粹又不失高级,空间上丰富有趣不失设计感。


庭院局部人视图
在建筑体量的布局上我们将庭院成L型布局,推门而出,整个庭院空间通过硬质铺装区分出休闲区和交通流线。敞阔庭院给人一种自在而尊崇的体感,自在揽景,生活的立体感油然而生。

西北侧人视图
鸟瞰图

东南侧鸟瞰图

西南侧鸟瞰图
立面通过空间上各种出挑和进退关系,形成了丰富的体块,再赋予木饰板、防腐木,白墙、灰色铝合金门窗等不同的材质。整个立面现代简约,干练而不失艺术气息,从骨子里透出一副卓尔不群的气质。
阳台家家有,一方露台却难求。屋顶做了楼梯间,使整个屋顶空间得以利用,露台沐浴在自然光下散发着舒适、温暖的气息,实用与美观的露台花园,你想拥有吗?

东北侧鸟瞰图
野外的自由、清新和美妙总是勾起我们逃离现有生活空间的欲望,像现在这样无法逃离的日子,何不回乡打造家庭露营,将美好与乐趣搬回家中?
午后黄昏,慵懒的照在宽大的露台上,和爱人或朋友在一起,抛开一切世俗的烦恼,一杯茶、一本书,一顶帐篷,或看书,或随意聊聊。
平面详图

一层平面图
别墅共有二层,每一层都有其独特的功能,以满足业主的需求。
一层以公共空间为主,设置了客厅、茶厅、餐厅、厨房、长辈房及室外聚会平台等空间。 家庭成员可以聚集在一起,吃晚餐,看电影,甚至让一些朋友来一起享受这一刻。这一层是一个开放的空间,没有那么多的隔板。

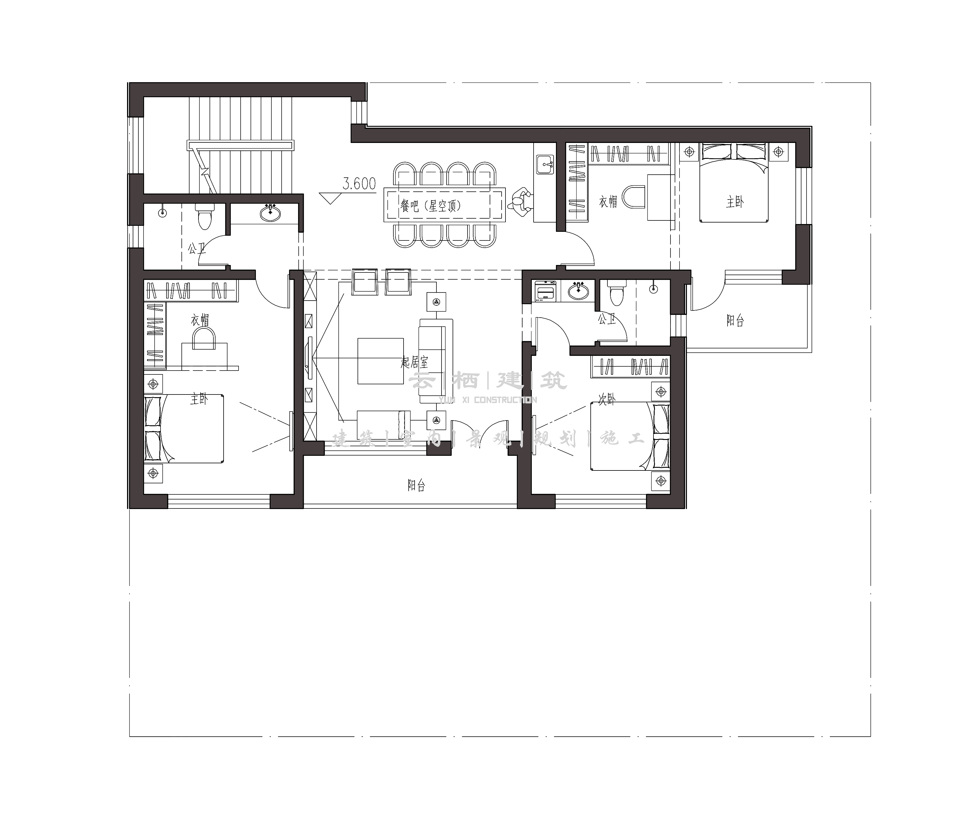
二层平面图

露台平面图
总共设计了5间卧室,二层东南侧及西南侧的卧室,均配备了衣帽间,宽敞且舒适。
二层设置了星空顶水吧区,抬头就是漫天繁星的星空顶,在家也能氛围感拉满。同时方便日常使用,喝点热水和煎个鸡蛋不用再跑到一层了,有效的便捷了起居。

该建筑的设计激发了人们从城市的日常工作中逃离,回归自然的感觉。他可能会在这段时间里和孩子们一起玩耍,享受这个简单而美好的时刻。
愿我们每个人心有所属,奋斗有标
盖房子是大事,一生只一次
我们建的不仅是房子,更是生活
云栖建筑
设计改变生活、让一切从美好出发
建筑丨室内丨景观丨规划