蒋先生在绍兴中国铁建花语江南小区有套房子,他反映,开发商违反施工规范,造成房梁上出现裂缝。
【1818黄金眼】学土木工程的父子发现裂缝 开发商违反施工规范?
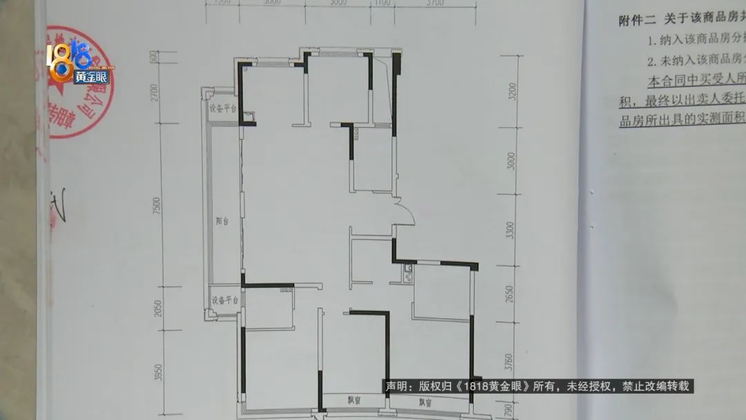
蒋先生购买的是西边套,面积180方,说是给儿子做婚房的,合同约定是年底交付,结果8月份提前交付了。在客厅和阳台之间,有一根七米多长的房梁, 靠中间的位置有两道裂缝 。
蒋先生 :“要贴这个墙砖,把涂料墙全部刨掉,刨到结构层的位置,这里面的砂浆粉刷是我自己粉的,我刨掉这个粉刷层以后呢,发现这两道裂缝。我去量了一下, 这条是1.2毫米,这条是1毫米不到 ,因为我知道国家规范的,是0.3毫米,混凝土结构,允许带裂缝。”

从户型图看,承重墙标注为黑色,房梁最中间有堵墙, 不是承重墙 。

蒋先生说,他也算是 业内人士 ,把这面墙的粉刷层敲掉后发现有问题。
蒋先生 :“这里是个构造柱, 这个构造柱和梁是同时浇筑的 ,中间没有过渡那道缝。梁在受力过程中肯定要下来,往下垂,现在我这个构造柱把这个梁顶死了,不让你下来,那梁跟柱不是发生矛盾了,就这道裂缝出来了。”

这幢楼总共二十多层,蒋先生家在二层。他儿子提供了一张照片,说 原本应该是一根横梁,结果变成了T字型的梁 。
小蒋 :“构造柱和混凝土一起浇筑,照理来说应该是跟结构梁是脱开的。”
记者 :“爸爸说你也是学这个专业的?”
小蒋 :“对,我也是学土木工程的。”
记者 :“这个有多大问题?”
小蒋 :“原本的计算依据,是按照不存在柱子的情况下计算的,现在现场是存在柱子,所以我们 怀疑它的计算数据也是有些问题的 。”

蒋先生 :“原来这根构造柱在我本家用的,现在这个是变相成框架出来,就是说整个楼都要用,不能说全部, 五六层的荷载可能往下垂 ,所以这个裂缝我觉得很危险。”

蒋先生说,一方面荷载受影响,另一方面担心钢筋生锈。11月12号,开发商提供了一份 碳纤维加固方案 ,施工顺序分五步,分别是:混凝土基底处理、涂底层底胶、找平胶找平、贴碳纤维片、养护。11月27号,工作人员还到蒋先生家协商过。
蒋先生 :“表面把这个东西掩盖一下, 根本的问题是没解决 ,怎么解决?我觉得叫他们设计部门去验算一下,首先要让我觉得这个是安全的。”

中国铁建地产绍兴花语江南府售后服务中心 黄经理 :“ 沟通肯定是有个过程的 ,不能说不满意,直接是让我对着镜头。”
记者 :“那我额外帮他们问一句,这个方案有没有经过设计院的认可?”
中国铁建地产绍兴花语江南府售后服务中心 黄经理 :“不好意思,这个我也没办法回答你。”
记者 :“因为上面没有盖章。”
中国铁建地产绍兴花语江南府售后服务中心 黄经理 :“我也没办法回答你,如果您要说,我们可以去里面说。”

中国铁建地产新闻发言人 吴先生 :“ 我们是分两次浇筑的 ,他可能有些误会,继续把这个基层再铲干净看一下,很明显能够看到施工冷缝是两次浇筑的,看到那个现场,我们跟他解释了一下,他还是表示理解的。”
记者 :“那怎么会有裂缝呢?”
中国铁建地产新闻发言人 吴先生 :“ 是混凝土表面的干缩裂缝 ,可能因为一些比如说是温度、湿度一些原因,表面上会有一些裂缝,给他采用环氧树脂灌缝。”

对于这个解释,蒋先生表示接受。