
造园,一直以来都代表着人们对理想人居环境的追求。“只园”项目紧贴花艺工作室生产和对外展示的功能定位,以造园理念为花艺工作者提供一个创造美的必要条件。内外空间相互渗透,并以统一的建筑语言,使室内外空间与景观有机融合。打造一个静谧而又生机盎然的梦幻“花”园。
G ardening has always been a representation of people's pursuit of the ideal living environment. This project closely follows the functions of Only Flower floral art studio's creations and external displays by providing the necessary conditions for florists to create beauty. The interior and exterior spaces merge with each other and integrate organically with the landscape through a unified architectural language. In doing so, a serene and dreamlike “garden of flowers” is created.
“花”——寓意着美好和生机。作为花艺工作室,这个单纯美好的小庭院位于北京大兴区红星光源工业园区内,由一处旧厂房改造而成。
T he flower — a signifier of beauty and vitality. As a floral studio, we established this simple and beautiful little courtyard in Hongxing Guangyuan Industrial Park in Beijing's Daxing District, where it was converted from an old factory building.

改造前 Before renovation
自由流动的曲面玻璃砖墙将室内外串联,这种连贯的建筑语言将客人由入口拱门引入,或走入室内,或盘桓于庭院,享受一片宁静。
A free-flowing curved glass-brick wall connects the interior and exterior with a cohesive architectural language that leads guests through the entranceway, where they may carry on into the interior, or linger in the courtyard to indulge in a moment of tranquility.


庭院中心保留原有的两棵圆柏,围绕圆柏,在人体视线高度范围内种以观赏性较高的蓝雪,形成一个茂盛蓬勃的景观中心。一面7米高玻璃与红砖组合的墙面作为庭院端景,将展示区与后勤区进行划分。景观水面将这一切融化在朦胧倒影中,洗涤外界烦嚣,灵动了整个庭院。
T he two original cypresses have been retained in the center of the courtyard, surrounded by ornamental leadworts planted at eye level, which creates a vibrant and dynamic core landscape. A 7-meter-high glass and red brick composite wall serves as the end view of the courtyard and separates the display area from the logistics area, while the landscape’s water surface dissolves all of these elements in a hazy reflection, cleansing the outside world and animating the entire courtyard.
景观选用蒙古栎、白桦等北方特色乔木映衬砖墙,则传达一股清冽而又饱满的,专属于北方大地的生命力。
T he landscape integrates Mongolian oak, white birch, and other trees unique to northern China to complement the brick wall, while conveying the sense of freshness and vigor that characterizes the region.
自由流动的曲面砖墙将客人由入口拱门引入。
A free-flowing curved glass-brick wall leads guests through the entranceway.


7米高玻璃与红砖组合的墙面作为庭院端景。建筑与景观一起形成一个静谧而又生机盎然的梦幻“花”园。
A 7-meter-high glass and red brick composite wall serves as the end view of the courtyard. The architecture integrate with the landscape to create a serene and dreamlike “garden of flowers”.


庭院景观 Courtyard with arch entrance
隐藏于主厅后侧的是员工日常办公通道。
C oncealed behind the main lobby is the entrance to the staff's office.


景观水面将周围的繁茂融化在朦胧倒影中,灵动了整个庭院。
T he landscape’s water surface dissolves all of the surrounding elements in a hazy reflection, animating the entire courtyard.



庭院与建筑 Courtyard and architecture

外观夜景 Exterior night view

主厅承担对外销售及花艺制作的功能。设计将原有窗洞扩大,形成三大落地窗,不仅使室内花材获得充足的阳光,提供明媚的展示空间,还能够把室内多彩绚丽的鲜花能映射到室外,与室外生机勃勃的庭院景观相互映衬、相得益彰。
T he main parlor supports functions related to sales and floral arrangements. The design has enlarged the original window areas to form three large floor-to-ceiling windows, which not only provide sufficient sunlight for indoor flowers and a bright display space, but also allow the colorful and gorgeous indoor flowers to mirror the outdoor environment, thus complementing the vibrant outdoor courtyard landscape.
两层通高的玻璃花墙使顾客可以任意游走于各式鲜花前采购和拍照,诠释只和花“鲜花超市“的品牌定位。二层为绿植展和顾客休息区,客人可在绿意中俯瞰鲜花制作的过程。
T he two-story glass flower wall allows customers to wander around and take pictures in front of a wide range of flowers, exemplifying the brand’s identity as a "floral supermarket". On the second floor, there is a greenery exhibition and a resting area where customers can overlook the flower arranging process.

内外空间相互渗透 The interior and exterior spaces merge with each other
一层为鲜花销售和花艺制作区 。
T he ground floor is flower display and floral production area.



两层通高的玻璃花墙 The two-story glass flower wall
二层为绿植展示和顾客休息区 。
T he second floor green plant display and customer rest area.


项目功能分为内外两区:外区由280平米的工作间和180平米的景观庭院组成。满足对外展示、销售、客人休憩的营业功能,以及花艺制作和储存的生产功能。
T he project is functionally divided into two areas: the outer area consists of a 280 square meter workroom and a 180 square meter landscaped courtyard, which satisfies business functions related to external displays, sales, and guest rest areas, in addition to production-related functions such as flower arranging and storage.
内区总面积370平米,分上下两层,用于后勤办公和员工住宿。项目在满足自身对外销售和展示的前提下,也为品牌旗下其他店铺提供后勤支持。
T he inner area features a total area of 370 square meters and is divided into two floors that include logistics offices and staff accommodation. The project provides logistical support for other stores under the brand while also meeting its own sales and display needs.

功能分区示意 Function Diagram

晶莹的水波纹玻璃砖与坚实的红砖组合,利用梯形截面砖结合错峰砌筑法实现砖墙的曲面化,实现室内外空间的连贯与流动。
T hrough a combination of crystalline glass tiles and red bricks, and the use of trapezoidal cross-section tiles combined with staggered masonry methods, we were able to achieve the brick wall’s curved surface, which lends a sense of coherence and fluidity to both the indoor and outdoor spaces.
为保障展示花材的日常保鲜,设计利用双层墙体制造空腔冷却系统。对空腔输入冷气后,经由腔体导入各个花筒,通过花筒背后的冷气孔,精准冷却桶内鲜花。花墙后侧则为低温冷藏库房,以供更长期存放。
T o ensure the freshness of flowers on display, the design employs a double wall to create a cavity cooling system. After the air is fed into the cavity, it is channeled through the cavity to the individual flowerpots, where the flowers inside the barrels are cooled precisely through air holes behind the pots. The rear of the flower wall is used as a low temperature refrigerated warehouse for longer-term storage.

空腔冷却系统分析图 Diagram of the cavity cooling system



改造前(左)改造后(右)Before and after renovation

总平面图 SITE PLAN

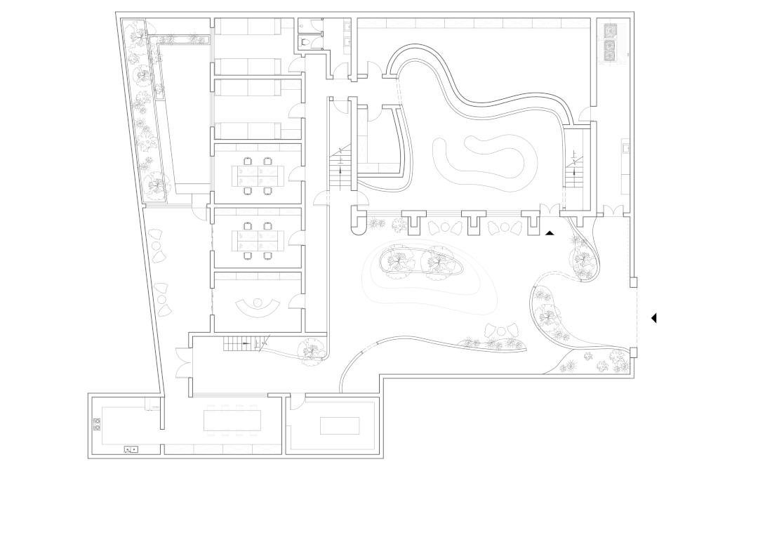
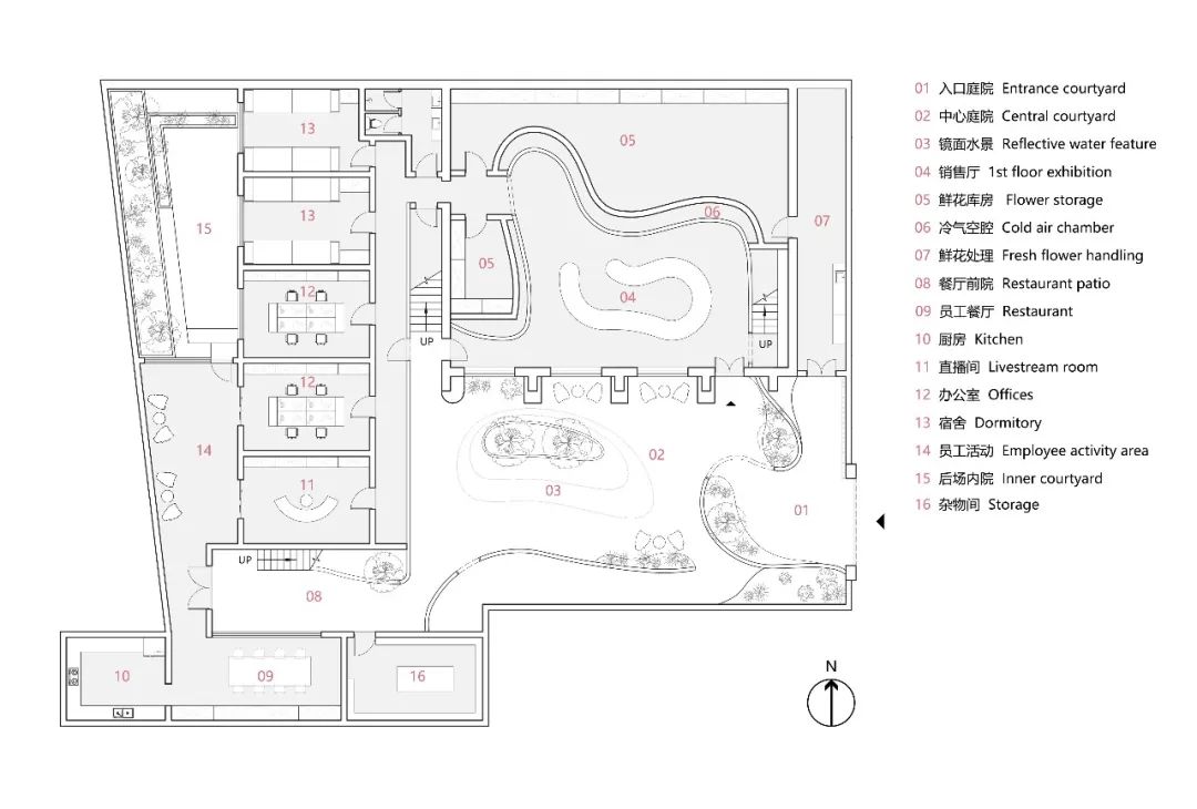
首层平面图 GF PLAN

二层平面图 2F PLAN
项目信息:
项目类型:建筑改造、室内设计、景观设计
项目地点:北京市大兴区红星光源工业园区D02
总建筑面积:640㎡
设计单位:方未建筑事务所
公司网站:www.fangwei-architects.com/
主持设计师:何威
设计团队:严然,徐琳,张晓峰,李禹希,Ana Cristina Goncalves do Carmo, 徐振
业主:只和花
设计年份:2020-2022
摄影:朱雨蒙
视频制作:朱雨蒙
Project Type: Architecture renovation design, interior design , landscape design
Location : Hongxing Guangyuan Industrial Park, Daxing District,Beijing,China
Building Area: 640㎡
Architecture Firm: Fangwei Architects
Website: www.fangwei-architects.com/
Lead Architect: He Wei
Design Team: Yan Ran, Xu Lin, Zhang Xiaofeng, Li Yuxi, Ana Cristina Goncalves do Carmo, Xu Zhen
Client: Only Flower
Completion Year: 2022
Photo credits: Zhu Yumeng
Video credits: Zhu Yumeng
感谢方未建筑设计授权分享
推荐阅读:
重铸记忆,品味时光 | 老鼎丰北京
在城市烟火气中延续文化传承|福州M Stand
折叠公园:建筑与城市之间的另一种可能|北京团河派出所旧址改造
