#秋日生活打卡季#


阳光城世茂翡丽观邸坐落于福建南平建阳区,宋代曾以“图书之府”和“理学名邦”闻名于世,属于福建最古老的五个县邑之一,亦是“朱子理学”之源。INNEST意巢设计提取当地文化属性植入设计中,落笔自然,完成阳光城集团福建大区璀璨滨江1.0到翡丽观邸2.0销售中心的迭代升级。

0 1
/
感 知 建筑生命力
「融入“消隐”概念 与自然共生」
贝聿铭曾说:“建筑是有生命的,它虽然是凝固的,可在它上面蕴含着人文思想。”
建筑设计融入了“消隐”概念,模糊其与自然的分界,成为与之交融的建筑风景。“轻、薄、透”的玻璃盒子外观从璀璨滨江1.0的一体式到翡丽观邸2.0的分层式,正契合当下现代主义建筑的盛行,干净利落的线性构造充满几何美感,屋檐向外延伸形成折叠的角度,既保证了通透采光又避免阳光直射,体悟自然生长,感知建筑的生命力。

阳光城世茂璀璨滨江销售中心

阳光城世茂翡丽观邸销售中心
水院主景与内部空间相望,产生内与外视觉观察的层次递进,互相映衬,水面倒映着建筑的身影,交叠出光的色彩,虚与实的边界开始消融。

0 2
/
优 化 空间结构
「中空面积的扩张延伸使空间视线更加开阔 」
我们把握建筑、室内与景观的内在联系,将功能需求和氛围塑造最优化。以化繁为简的设计语言传达出艺术与人文相融的精神内核。
销售中心内部中空的结构塑造气势饱满,将璀璨滨江1.0的“回”字型挑空面积扩张延伸,从原来7.4米的长度增至11.95米,呈现出立体的“凹”空间架构,用“延长视线”来创造内部活动场域的变化,使空间显得更加开阔灵活。中空四周设栅格幕墙构建循序渐进的序列感,同时让自然光更加柔和地进入室内,展现恰到好处的景深层次与视觉效果。
功能分区意在建立别出心裁的“通感营销”氛围,视、触、闻、声四位一体,随动线转移之间,来访者的情绪感知被调动,各功能区域看似独立实则相关的联系让空间成为一个有灵魂的整体。

璀璨滨江“回”字型中空空间SU分层解析

翡丽观邸“凹”字型中空空间SU分层解析
0 3
/
深 化 主题内涵
「 在当地文化中提炼设计元素融入空间主题」
璀璨滨江1.0设计以风格、结构作为设计出发点略微单薄,翡丽观邸2.0则对设计进行了整体性构思,取材于当地文化特色,以“竹”立意,在“建阳翠黛”、“考亭书院”中提炼出“翠黛”、“书籍”的设计元素,取其概念和形态色彩,引申到空间内部,形成独特的文化载体,进一步深入刻画空间的主题与内涵。
前 厅
大面积米白色调构建简洁素净的空间基底,穿插于其中的点睛之笔是那面水墨写意的背景墙,利用抽象水墨构建空间的关联性,借石材的天然纹理营造未经雕琢的原始感,与现代感陈设相映成趣,在灯光的氛围晕染下,成为一方不可或缺的景致。
接待台背景墙的“竹林”作为开篇点题,在平衡艺术与自然之间,张弛有度,运用现代手法将“竹”的风骨与灵气通过空灵通透的水晶材质浮现,在排列有序的线性光灯折射下增添一层若隐若现的朦胧美。




前厅
沙 盘 区
翡丽观邸2.0“凹” 字型挑空相比璀璨滨江1.0的“回”字型更加大气开阔,运用木与金属的材质组合构建中空四面栅格幕墙,对比单一材质能够更加清晰地划分空间主次,以建阳翠黛为灵感演化而来的艺术装置像城市上空的点点星河,投射下来的光影形成流转的动态美感,色彩变幻间让人仿佛感受到“山光匀翠黛”的诗意景致。
下盘巧妙地设计了古铜金属台度(高踢脚线),适可而止的存在感,低调略带庄重地牵引出空间的仪式感。
现代构成与艺术美学的碰撞,将冷静、谦虚、恒古的东方智慧与简约、轻奢、优雅的审美风尚融为一体,借现代材质,以创新的表现形式重塑空间的意蕴之美。





沙盘区
洽 谈 区「软装优化」
翡丽观邸2.0的软装设计每一处细节都经过斟酌考量,不忘空间的整体性。软装色彩并不刻意与空间色调拉开距离,只将充满自然气息的橄榄绿作为点缀色,材质的多元化运用下空间的层次表达已足够,简约而不失设计感的软装陈设是最合适的配角,既有独特个性也不喧宾夺主,区别于沙盘区的仪式感,营造悠然闲适的人文体验才是洽谈区的设计诉求。
为避免生硬,区域划分运用水波纹亚克力屏风营造隔而未断的视觉感受,将软装作为对空间的软性分隔,让每个功能区不再是死板隔开,而是有了承上启下的转折点。





洽谈区
水 吧
从“考亭书院”得到灵感,撷取“书籍”元素于背景墙,远看形似竹简的堆集,竹简是最早的书籍形式,恰好侧面烘托了空间主题。现代极简主义与中式禅意美学的融合,将和而不同的东方哲学置入设计思考,对称的空间格局蕴含中国传统文化中的“中庸之道”,形成和谐而独特的风景线。



水吧区
楼 梯 间
楼梯空间内借光造景,错落有致的竹节吊灯下,安然静置的枯山水端景隐约流露出“山际见来烟,竹中窥落日”的意境,成就禅宗意蕴与自然古朴交织成诗。

楼梯间
0 4
/
材 料 优化与造价控制
「 为打造契合设计理念的空间」
翡丽观邸2.0在璀璨滨江1.0的设计基础上进行优化升级,从外在的材质、工艺、软装到内在的立意、表达、内涵,几乎做到了全方位的完善,只有造价依旧控制在原本范围之内。璀璨滨江1.0较为简单的材质搭配,到翡丽观邸2.0运用多元化材质搭配结合更加精湛的工艺,力求呈现更加丰富的空间层次感。
我们认为在保证实际效果的前提下,合理地把控造价是必要的,使用高价材料不一定能取代工艺的不足,高昂的造价不一定能呈现优秀的作品,打造契合设计理念的空间才是我们所追求的。



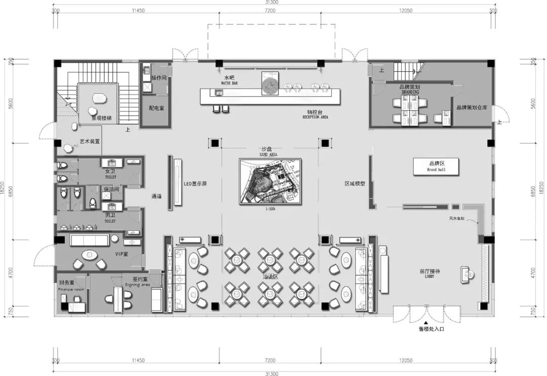
一层平面图

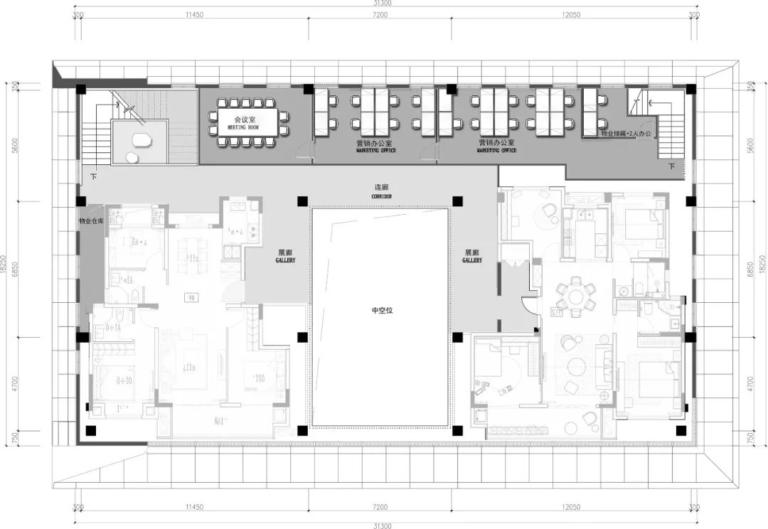
二层平面图



效果图