近日国家开放三胎政策,不少年轻人表示:“每个月房贷都够呛,生三胎真心不现实”。虽说任何时代买房都不是一件容易的事,但是如果转变想法选择回老家建房,或许能减少一大笔开支。绝大多数的建房者需要的是一款性价比高、实用性强且在经济承受范围内的房子。
今天小编就满足大伙的需求,分享一款现下最流行的现代风三层别墅,布局实用、造价低,就算三胎来了也不用愁!

△立面效果图
现代风的主要特点是“清爽”,它没有厚重的欧式罗马柱,也没有中式的复杂工艺。我们只需要在造型上做些适当的设计,便能制作出一栋极具特色的乡墅美院。虽说是在农村建房,但基本的配套设施不能落后,堂屋、车库、大套房,一个不少。
建筑基本信息:面宽10.5米×进深10米,占地105平,别墅高度12.5米;框架结构,独立基础,毛坯主体造价区间30-40万。
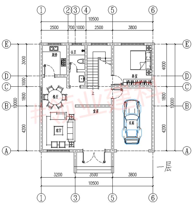
一层布局图(施工图):堂屋、客厅、餐厅、厨房、公卫、长辈房、车库。

车库开间3.8米,门厅3.5米,客厅3.2米;这是室内带车库的常规尺寸。进门是堂屋,西面是日常活动区。东北角做了一间长辈房,与厕所保持适当的距离,不用担心会有异味进到房间。
二层布局图(施工图):大套间、客卧×2、起居室、阳台、公卫。

根据一楼的布局,二层左半部分适合做一间完整的套房,房内包含衣帽间、书房和主卫。右半部分则安排两间子女房,公卫做了干湿分离,设在两房中间安全方便。
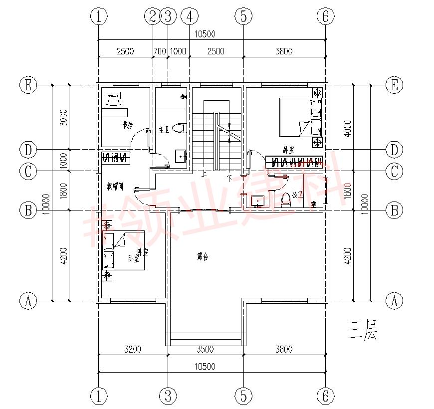
三层布局图(施工图):大套间、客卧、公卫、露台。

前几年流行大露台设在西面,随着自建房的进化,现在露台的位置普遍都在东面,主要目的是能防止西晒带来的燥热感。
外观效果图一:西南面

外观效果图二:东北面

在城市,你看上的是买不起的房子,最后退而求其次选择了价格让你痛苦,却又恰好能承受的三室一厅。
在农村,你可以根据自己的喜好,自建一款经济好看的三层别墅。6房3厅带车库,将来不仅能和父母同住,三娃也不是问题了。