天光水色,云合影从,一切生发于自然
项目标签
设计公司: 大小设计工作室
位置: 中国
类型: 建筑
材料: 石材 木材 水泥 涂料
标签: 福建 莆田
分类: 休闲娱乐 民宿
01. 建筑
佑见民宿面朝大海仰视落日余晖俯瞰海浪缱绻与归航渔船所有的自然野奢趣味所有的浪漫诗意柔情尽在湄屿之上

项目环境
落日向晚,黄昏在拉长,我喜欢这温柔的时辰。

佑见民宿主立面

夜间鸟瞰
02. 空中大堂
穿越时空,过去与未来的对话。只有当过去与未来相结合时,才能看到现在的魅力,这便是岁月的沉淀,艺术的力量。

空中大堂

空中大堂
设计师赋予空间以优雅、娴静、自然的大方,引导人们停顿、凝望、小憩、交流。人群的交流互动,随着空间的延伸,也增加了无限的可能性。

接待区

拱廊细节

拱廊细节
03. 酒吧
餐厅并未采用大面积的窗户顶部降低空间,然后横向大开窗然后引入外部的海景(限定空间内人的视野范围),设计师从空间开始调动情绪。在极简的硬装下,设计师在五楼餐厅开启自然画卷隔着玻璃感受着四季的变化,用借景这一手法,表明了设计主题“春去秋来”。

酒吧横窗引入海景

酒吧横窗引入海景
打通5F~6F楼板,裸露的钢筋混凝土梁,承上启下,野性空间酒吧将整个空间的氛围定调,悠然与闲适感从进入的那一刻便升起。考虑到酒吧自带的慵懒喧闹的氛围,设计师以沉寂的色调搭配质朴的肌理,为整个空间注入一道以静制动的韵律。

裸露的钢筋混泥土梁
保留着当时对于空间功能和建筑美感的理解,因而延续了建筑的原始结构,保留了本有的房梁,搭配石材卡座以新的方式,赋予不同的空间体验。

酒吧用餐区

室内细节

室内细节

室内细节

室内细节
04. 下午茶
大海是自由的,森林也是自由的,让自然重新融入新空间换发生命,错综复杂是自然的规律,没有约束才能得到自由,空间中的树干重新注入生命,以此能给别人带来更多的思考。

下午茶区域
05. 休闲区
承接而下的楼梯小径,散落的光线为此增添一分神秘的味道,将人引入一片拙朴而典雅的氛围。

休闲区

休闲区

下沉座位和篝火区

中庭空间

中庭空间

海景
06. 民宿住房
闲适的主调从推门而入的大面积海景开始,自然光景透过大面玻璃窗与室内空间相映生辉,澄澈清爽的梦幻之感便在内外空间的对话中诞生。

客房视野
光影自带魔法,将阳光下粼粼闪耀的波光调和,待流入人的视野之时,便是一片温柔细腻。

客房室内

客房室内
房间内独占一片浪漫海景,粼粼的波光晃入室内,与房间内的木质香气一同在空中浮沉,为整个房间增添了无穷尽的浪漫主义色彩,度假感就在这样的氛围中变得生动起来。

独占一片浪漫海景

独占一片浪漫海景
设计师重视材质的肌理质感和真实呈现,在多种自然材料的叠加使用中,营造休闲质朴的静谧氛围。保证空间舒适度与功能性的同时,创造出令人放松且安心的度假氛围感,在线条流动中传达出温和平静的情绪感受。

客房

客房
海风与光照毫无保留地在空间中流动,占据空间的每一个角落,与抢镜入画的小屿一同,构建起新的空间秩序。

框景
身体在自然光景的滋养中,与空间场域发生了千丝万缕的联系。对于生活的美好,便在光影交织、一海一树的艺术意境中,得到了全方位地感知。

客房
关于浪漫,海占一半。

入口区域
弧形的圆拱设计,营造出洞穴般的原始风情,同素净的墙壁一起,展现出一种质朴的粗粝感。光影如海浪般在屋内起伏,勾勒着建筑的边界与线条。在强化了弧的张力的同时,延伸着曲面带来的视觉广度。

客房室内

客房室内
07. 时间餐厅
餐厅空间以沉寂的色调搭配质朴的肌理,通过微水泥墙面与深色软装格调的设置,保留整体的干净与简单。

餐厅

餐厅
一器一物,一茶一饭,生活的动人,往往就在于不着痕迹却又恰到好处的细节之中。

私人包间

私人包间
大面积落地窗的运用,从外向内引入更多的自然幻想,流动萦绕的光影,是一种看得见的建筑之美。

户外视野
建筑的精神也是心灵境界的呈现,设计师将沉稳冷静寓于材质肌理之中,创造出简的空间,给人素雅与质朴的自然感。
保存一份热爱,奔赴下一场山海。

走廊

建筑外观
▼1层平面图,Plan 1F © 大小设计工作室

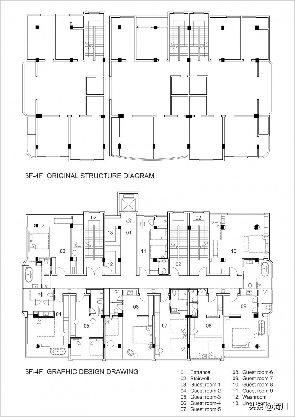
▼3-4层平面图,Plan 3F-4F © 大小设计工作室

▼5层平面图,Plan 5F © 大小设计工作室

▼4层平面图,Plan 4F © 大小设计工作室

项目名称:湄屿佑见设计单位:大小设计工作室设计总监:苏清华设计团队:欧志鹏 卓建凡 黄萍萍 吴湘霞 陈莹莹项目面积:2000+㎡设计时间:2021/04完工时间:2022/06主要材料:艺术漆、木饰面、岗石、铝板、水洗石施工单位:李建装修工作室项目摄影:ACT STUDIO项目地址:福建省莆田市湄洲岛高朱北环东路245号
