
曼哈顿·哈德逊花园项目位于曼哈顿最繁华的中城区10大道45街大城市资源集中区,步行5分钟,即可到达“世界十字路口”——时代广场,从项目向北步行15分钟至中央公园,向西步行3分钟至哈德逊河。纽约第一大零售百货Target已签20年长期租约,位于项目一层。
项目已经动工预售,价格预计约2300美元/平方英尺,最小户型约40平米,租金约4000美金/月,首付15%。
♦︎♦︎ ♦︎
Why New York
❖ 纽约都会区是美国人口最集中的区域
❖ 纽约是全球金融中心,全美GDP最高的核心区域
❖ 纽约是全球的资金首选
❖ 纽约是华人最喜欢投资的城市
❖ 美国房产最稳定的区域

♦︎♦︎ ♦︎
Why Manhattan

曼哈顿—最稳定的房地产投资市场
保值性强 增值空间大
•美国房地产市场走势稳健,年均涨幅8.3%。

•曼哈顿房产市场表现最稳定,房价稳步上涨,房价中位数达到138万美元/套。

•曼哈顿中城位置优越,房价走势表现优异,领涨曼哈顿整体市场。
•2008年金融危机期间,曼哈顿的房产市场是最后受到波及,却率先反弹。
曼哈顿——最被认可的房地产投资市场
房产租赁需求稳定,投资回报率高
•曼哈顿房产租赁市场需求稳定,长期处于供不应求的状态,成交周期短,库存少,周转快。
•主要承租人群为上班族、创业者、企业高管和学生等。
•便捷的交通,完善的公共基础设施,先进的医疗配套,优质的学区教育,是租房首要考虑因素。
•租赁市场平均租金达4041美元/月,studio平均租金2908美元/月,一居平均租金3757美元/月

中城的地标「时代广场」—美国精神的地标
时代广场(Times Square)是美国纽约曼哈顿的一个商业中心,位于百老汇大道与第七大道会合处,范围由西42街延伸至西47街,至今已有一百余年历史。

时报广场被称为“世界的十字路口”,是美国的一个地标性景区,集娱乐与购物于一体的繁荣商业区,吸引了来自国内外的众多游客到此购物游玩,是去美国必去之地之一。
时报广场联盟公布的一项报告显示,位于纽约市中心著名的纽约时报广场创造的财富与美国匹兹堡、奥斯汀、波特兰等中等城市不相上下。虽然占地面积只有纽约市区的0.1%,但时代广场街区却汇集了纽约市11%的经济活动,10%的纽约市民在这里工作。
「天空之城」—曼哈顿中城未来之星
哈德逊城市广场项目位于纽约市曼哈顿中城的心脏地带,占地达10.5公顷,号称为美国史上最大的房产开发项目,被誉为一座将刷新纽约天际线的“天空之城”。

哈德逊城市广场将有16 座摩天大楼,包括12,700,000 平方尺的新办公室,约5000户住宅,750名学生的学校,75万平尺的零售区域以及14英亩的公园和公共活动区域。

目前,哈德逊城市广场10号楼已完工并率先投入使用,整体将于2019年完工并投入使用。目前,入驻哈德逊广场的公司有:蔻驰、欧莱雅、SAP、波士顿咨询集团(BCG)和韦纳尔媒体,时代华纳,SAP等。
项目介绍
位置:615 10th Avenue, New York, NY 10038
占地面积:25,104平方英尺
建筑面积:142,240平方英尺
总楼层:7层
总套数:92套
单价:1990美元/平方英尺起
户型:单间、一居、两居、三居、Penthouse
户型面积:39-182平方米
交房日期:2020年第一季度
产权:永久产权
内部设施:精饰大堂、顶层露台、健身房、一层商业配套(Target长期租约)
联系方式:添加微信caobincb007或者拨打电话021-31126225联系华美优胜曹先生

项目优势
❖ 项目指导价约为2300美元/平方英尺
❖ 稀缺可售全新项目,周边市场价格为$2000-$3200之间
❖ 周边高端项目及生活配套设施云集
❖ 时代广场/Hell’Kitchen餐饮区 / 中央公园 / 文艺区 / Hudson Yards纽约最新城市综合体近在咫尺
❖ 便捷交通,地铁7号线和A/C/E线,多条公交线路及林肯隧道
❖ 24小时管家服务,停车场泳池顶层露台健身会所配套
♦︎♦︎ ♦︎
项目效果图







♦︎♦︎ ♦︎
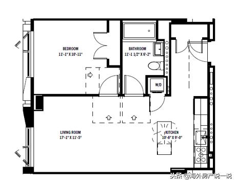
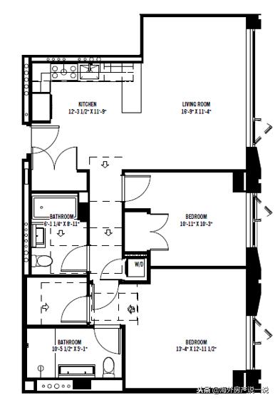
户型图
一、开间户型介绍
使用面积:417平尺起

二、1居户型介绍
使用面积:668平尺起

三、2居户型介绍
使用面积:1035平尺起

更多资讯关注公众号:海外房产说一说!