我们南方除了欧式的小洋房,新中式的别墅也非常受欢迎。新中式风格不仅蕴含现代化的功能设施,还能充分体现传统建筑的精髓。外观大气实用,多少年也不会过时。北方可以选中式四合院,南方可以建这种带时尚特色的房子,23万建一栋,门前可留庭院,给家人一个温馨舒适的避风港。

典雅新中式别墅
图 纸 编 号 :J M 9 0 6
尺 寸 大 小 :1 3 . 2 × 1 2 . 7 m
占 地 面 积 :1 6 7 . 6 4 ㎡
建 筑 面 积 :2 9 0 . 2 8 ㎡
结 构 类 型 :砖 混 / 框 架
毛 坯 参 考 造 价 :2 3 - 3 0 万
室 内 布 局 :5室 2厅 4卫 厨房 茶间 酒窖 书房 露台
各 角 度 效 果 图 :西南面、东南面、西北面、东北面

别墅外观造型方正,墙面以米白色真石漆为主,卡其色做腰线及方柱的色彩修饰。屋顶铺盖灰色琉璃瓦,墙裙则采用中式元素的花纹石。整体搭配沉稳典雅,彰显主人的品位。
之前有不少粉丝吐槽农村自建房的布局太过单调,除了卧室还是卧室。今天分享的这款不一样,室内既包含了农村特色,还有家人娱乐享受的场所。相信你看完平面图后会感叹:这才叫乡村别墅!
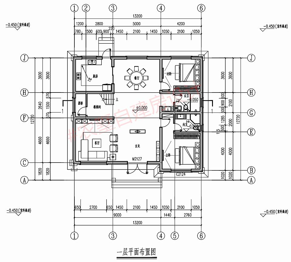
一楼:堂屋、长辈房、次卧、厨房、餐厅、酒窖、卫生间

正南门入户,房屋中间做了道玄关,与左边客厅相连形成堂屋。朝阳面布置了长辈房,是一间带独立洗浴的套间,老人早睡早起实用更方便。北面是厨房餐厅,次卧在东北角。
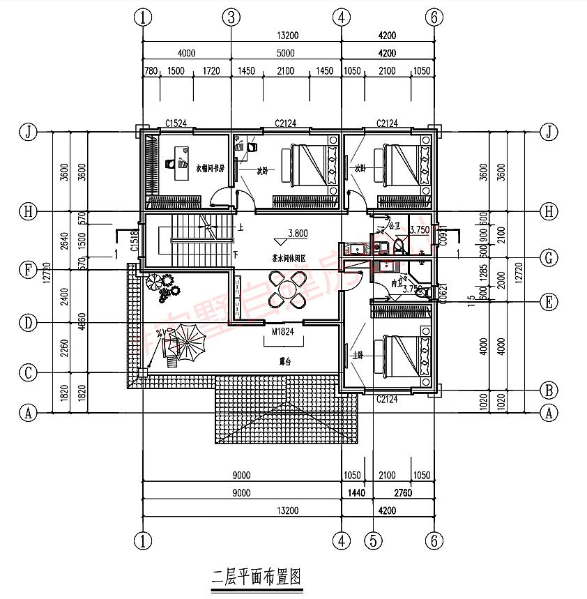
二楼:主卧、次卧2间、书房衣帽间、茶室、卫生间、露台

这层的居住私密性更高,书房和衣帽间放在了卧室里面,给孩子一个属于自己的小空间。东面套间的布局不变,过道布置了茶水区。靠近露台采光好,是大人们休闲放松的好地方。
农村建房就选新中式风格吧,给家乡建设出一份微薄之力,让我们的祖国大地展现出独有的中式面貌。