
GOODSTEN不仅仅是一家冰淇淋店,它诞生于梦幻的景色之中,仿佛来自于另一个不同逻辑的世界。这片未知而又神奇的场地让建筑师联想到宝石的特性并以其刻面作为此项目的设计灵感,塑造店铺独特的建筑结构。这些异世界的钻石,拥有水晶般的光泽和纹理,光彩夺目,熠熠生辉。宝石的寓意影响了GOODSTEN整体的创意策略,包括设计、建造和品牌决策等等,甚至连甜品的制作都受到影响,这些甜品统一在零度以下的花岗岩板上制作。不同于用石制材料肤浅地表达设计理念,建筑师通过一种特殊的材料塑造建筑的外部刻面形象,由此将宝石寓意转化为建造体系。重复使用的加工金属铺砖打造出建筑钻石般的外形,连续的表面塑造出一种均质性。
GOODSTEN isn´t just a creamery. It is born from an experience of oneiric landscapes, as if it where form another world, with a completely different logic. Unknown and fantastic lands made us think of precious stones. Their faceted surfaces inspired us to create a construction system. Those rocks, which blind us with their glows and crystal-like textures, are diamonds from another world. The allegory of the precious stone had an impact on creative decisions, both in design and construction aspects, branding decisions, and even on the making of the desserts, which are prepared on granite slabs with temperatures below zero. We transformed this idea into a construction system, through a material which allowed us to mold these faceted figures, without falling into the literalness of stony materials. We wanted to express a homogeneity through one continuous surface of elements which set up a diamond-like shell, made possible by means of the repetition of treated metallic tiles.
▼店铺外观,store exterior

设计方案极具表现力和复杂性,它在某种程度上展示出在使用单一材料的情况下,建筑所能表现出的一种有趣的形式。双层附属建筑赋予了GOODSTEN冰激凌店真正的空间感,它连接着原有的房屋,二者互相尊重又和谐共生。新生的钻石般房屋结构与20世纪小木屋的斜面屋顶产生了形态上的对话。附属建筑响应了市政规范的通风与照明要求,将两个内部斜坡屋顶与一个外部斜坡屋顶整合在一起,屋顶形态让光线与自然风自由进入室内。从几何形态方面来看,建筑师打造了一个具有可塑性的屋顶。在首层,建筑师使用混凝土建造了地下室,其形态与上部屋顶形态相似。
▼设计方案展示出在使用单一材料的情况下,建筑所能表现出的一种有趣的形式,the proposal suggests an intriguing formalism from its silent and mono material condition

▼从几何形态方面来看,建筑师打造了一个具有可塑性的屋顶,在首层,建筑师使用混凝土建造了地下室,其形态与上部屋顶形态相似,architects found themselves with a very plastic roof, geometrically speaking. at ground level we built a concrete piece, which works as a basement over which the roof rests, becoming one similar morphological configuration

The proposal is expressive and synthetic, in a way that it suggests an intriguing formalism from its silent and mono material condition. The construction of a double height annex, which grants the true spatiality to the creamery, is attached to the original house so that both coexist in a respectful and harmonic way. The new diamond-like structure dialogues morphologically with the pitched roofs of a 20th century chalet. The site of the annex incorporates two mansards in the inside and a third one on the outside, which respond to the requirements of the ventilating and lighting municipal codes. Because of this, the roof considerably modifies its shape allowing the needed lighting and fresh air to enter. As a result, we found ourselves with a very plastic roof, geometrically speaking. At ground level we built a concrete piece, which works as a basement over which the roof rests, becoming one similar morphological configuration.
▼室内空间,interior space


▼入口区域独特的屋顶形态,the special openings at the entrance area


从建筑中产品制作区的窗口,到洒落光线的附属建筑屋顶,建筑师创造的三角形和钻石刻面的组合体系在各个设计元素中都清晰可见。相同的几何形也出现在照明系统的金属结构和外部预制混凝土砖块地面的设计中,所有设计元素都遵循了同一构图标准。
We created a compositional system of triangles and faceted surfaces which can be seen in various elements particularly designed. From the openings in the building in the production zone, to the annex roof allowing the light to be sifted. The same geometry, also makes up the metallic structure of the general lighting system, as well as the design of the exterior floorings, made from precast concrete. It all comes together to the same compositional criteria.
▼三角形和钻石刻面的组合体系在各个设计元素中都清晰可见,architects created a compositional system of triangles and faceted surfaces which can be seen in various elements particularly designed


▼照明系统的金属结构也采用相同的设计方式,the same geometry, also makes up the metallic structure of the general lighting system


▼三角元素及刻面细节,details of the triangles and faceted surfaces


室内设计的理念来源于北欧美学必备元素:毛皮挂毯,天然木材覆盖的墙面和浅色的花岗岩。所有这些材料都统一采用单色调,轻松打造出一个充满梦幻与富有想象的世界。
The general interior idea is determined by essentials from the aesthetic Nordic imaginary, as are the skin and leather tapestry, walls coated in natural wood and light-colored granites. All of these noble materials are used in a monochromatic way, so that a perfect integration of the oneiric and fantastic world and the compositional system created is generated with no greater difficulty.
▼座位区,sitting area



▼天然木材覆盖的墙面,walls coated in natural wood


一直以来,业主对设计的要求都十分严格。建筑内产品制作区的外表皮几乎覆盖了整栋建筑的50%,它分为两层,有两条交通体系,以确保公共空间和私人空间的清晰分化。
▼建筑内产品制作区的外表皮几乎覆盖了整栋建筑的50%,它分为两层,有两条交通体系,the surface destined to the production area covers almost 50% of the buildings total surface, divided in two levels and with two double circulations

The client´s requirements have been very rigorous. The surface destined to the production area covers almost 50% of the buildings total surface, divided in two levels and with two double circulations as to ensure the clearly differentiated public and private areas.
▼内部楼梯,interior stairs


▼室外混凝土地面及立面窗户,facade window and outdoor concrete floor

▼夜景,night view

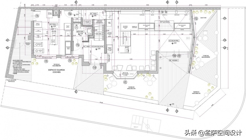
▼平面图,plan

来源:网络