这是一套51㎡小宅,就是一个大通间。最终通过改造,我硬是在衣柜上空“隔出”个次卧,这样家里来客人就不用担心没地方睡啦!起初朋友还不解,觉得我这个做法很奇葩!没想到完工后都夸我太机智,机灵鬼。忍不住也给各位晒晒,虽说我这种做法并不是适合所有人,但是对于小户型装修来说真的蛮实用了,给有需要的朋友一个参考哦!
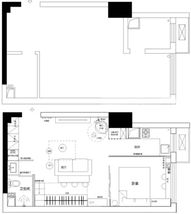
房型:改造前后

一进屋就是一个大通间,除了厕所和厨房都没有隔墙,房子内部也没有任何的承重墙,所以拆改自由嘿嘿!
入户

一进屋毫无疑问首先要保证入户的收纳,一排顶天立地鞋柜是必不可少的,鞋柜的中间和底部分别做了小留空特别实用,白色的模压柜门也特别耐看。

柜子一直延伸到卫生间的门口,因为卫生间的门是正对入户的,风水上来说有点不好所以就在门口做了一个实木的玄关隔断来优化空间,同时在柜子的左下角收纳有洗衣机。

洗手台在厕所外面做了干湿分离,为了采光厕所门做了磨砂玻璃推拉门,白色的简约瓷砖搭配北欧风的浴室柜很耐看哦。
客厅

另一侧就是我家客厅啦,墙面涂刷了色调更耐看不俗气的脏粉色,时下很流行。电视机挂在墙上,视觉感更好,网购的北欧风电视柜也十分耐看大气。

客厅沙发的背后是我家的衣柜,衣柜距离沙发的位置其实有1m左右,只是这个拍摄角度有点看不出来,各位可以看看平面图哦!为了能营造出一个客人睡觉的空间,我硬是在衣柜上空“隔出”一个次卧来。然后用金属支撑杆做侧面的承重,右边的楼梯也可以作为抽屉柜。起初朋友不解,说直接买个沙发床不就行了,完工后如今都夸我太机智,这样空间利用就更合理,后期准备再装个侧面的护栏扶手。
厨房

原来的墙体拆掉了,和右边的卧室用玻璃隔断隔开,保证了采光也不占空间。

定制的橱柜就不多介绍啦。

透过卧室看厨房非常通透。

卧室的右边靠落地窗还有吧台形式的小书桌。

整个卧室都是玻璃隔断,侧面是玻璃门,拉上窗帘就是一个密闭私密的空间。整个角度可以看到沙发背后到衣柜是有一定距离的,外面的两卫是我的“狐朋*友狗**”哈哈!

舒适温馨的北欧风极简大床。床头也是脏粉色,很耐看
装修的实用也是小户型最先要考虑的,个人认为我家还是非常实用哒!希望给你们一个参考
这是一套51㎡小宅,就是一个大通间。最终通过改造,我硬是在衣柜上空“隔出”个次卧,这样家里来客人就不用担心没地方睡啦!起初朋友还不解,觉得我这个做法很奇葩!没想到完工后都夸我太机智,机灵鬼。忍不住也给各位晒晒,虽说我这种做法并不是适合所有人,但是对于小户型装修来说真的蛮实用了,给有需要的朋友一个参考哦!
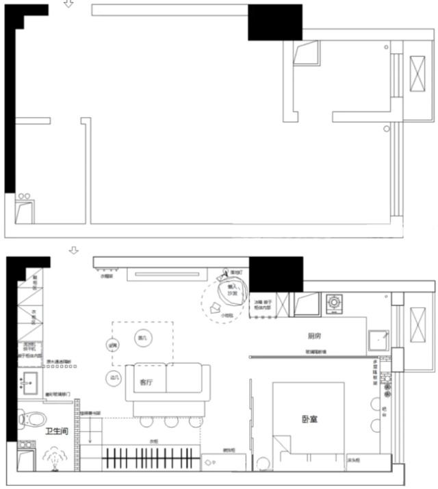
房型:改造前后

一进屋就是一个大通间,出了厕所和厨房都没有隔墙,房子内部也没有任何的承重墙,所以拆改自由嘿嘿!
入户

一进屋毫无疑问首先要保证入户的收纳,一排顶天立地鞋柜是必不可少的,鞋柜的中间和底部分别做了小留空特别实用,白色的模压柜门也特别耐看。

柜子一直延伸到卫生间的门口,因为卫生间的门是正对入户的,风水上来说有点不好所以就在门口做了一个实木的玄关隔断来优化空间,同时在柜子的左下角收纳有洗衣机。

洗手台在厕所外面做了干湿分离,为了采光厕所门做了磨砂玻璃推拉门,白色的简约瓷砖搭配北欧风的浴室柜很耐看哦。
客厅

另一侧就是我家客厅啦,墙面涂刷了色调更耐看不俗气的脏粉色,时下很流行。电视机挂在墙上,视觉感更好,网购的北欧风电视柜也十分耐看大气。

客厅沙发的背后是我家的衣柜,衣柜距离沙发的位置其实有1m左右,只是这个拍摄角度有点看不出来,各位可以看看平面图哦!为了能营造出一个客人睡觉的空间,我硬是在衣柜上空“隔出”一个次卧来。然后用金属支撑杆做侧面的承重,右边的楼梯也可以作为抽屉柜。起初朋友不解,说直接买个沙发床不就行了,完工后如今都夸我太机智,这样空间利用就更合理,后期准备再装个侧面的护栏扶手。
厨房

原来的墙体拆掉了,和右边的卧室用玻璃隔断隔开,保证了采光也不占空间。

定制的橱柜就不多介绍啦。

透过卧室看厨房非常通透。

卧室的右边靠落地窗还有吧台形式的小书桌。

整个卧室都是玻璃隔断,侧面是玻璃门,拉上窗帘就是一个密闭私密的空间。整个角度可以看到沙发背后到衣柜是有一定距离的,外面的两卫是我的“狐朋*友狗**”哈哈!

舒适温馨的北欧风极简大床。床头也是脏粉色,很耐看
装修的实用也是小户型最先要考虑的,个人认为我家还是非常实用哒!
本文内容来源于网络,如有侵权请联系删除,谢谢!
私信小编,送精心整理的《装修前的99条避坑准备》电子版