
由 承构建筑 与 中机中联工程有限公司 共同设计的 重庆金凤软件园(虎溪园) 在紧张的推进中,目前 城市设计已经完成, 其中 二期建筑方案设计也成功通过专家会评审 。城市设计总用地面积93.66公顷,分为 科创慧谷 、 水滴聚合 、 超级复合公园 、 生态乐活 、 文创半岛 、 高科魔方 一共六大板块。

◎ 科创慧谷

◎ 超级复合公园

总体规划
重庆金凤软件园(虎溪园)将 TOD模式 与 产业办公园区 相结合,以应用数学研究为行业基础,依托重庆师范大学国家应用数学为中心,以区域产业政策、产业集群及交通优势,打造以“ 重庆大学城 ”为核心,发展圈层式布局模式,将 学校-产业-居住-商圈 一体化,形成功能聚集型的布局模式。

◎ 五心联动设计理念
重庆金凤软件园(虎溪园)以超级TOD、超级未来复合城邦、超级生命磁场及超级城市名片为标签,围绕周边四个地铁站以大成湖公园为中心,构建五心联动设计理念。


◎ 公园化设计手法
以 公园化 为主题(公园建筑化,建筑公园化)的设计手法,建设一个与 大学城 、 创新产业 及 未来智慧人居 深度结合的城市生活示范区。

地块区域介绍
该地块处于上位规划中 大成湖公园 和 科创慧谷 的枢纽位置,与城市中心绿轴线相互链接,总体布局与城市公共空间结合紧密,界面友好。

◎U5-4-2地块 , U5-8-1地块
如何在有限的时间里迅速完成报建工作,是本次设计所面临的面临的巨大挑战 。 重庆金凤软件园(虎溪园)作为重庆市重点项目,预计在年内开工 。整体进度推进时间节点非常紧张,要求在规定时间内配合相关各单位完成各项工作节点,同时保证设计效果,保证落地呈现的双保目标。

◎项目推演过程稿

设计策略
重庆金凤软件园(虎溪园)二期(一标段)项目分为 U5-4-2 和 U5-8-1 南、北两个地块,项目用地面积约11.1hm2,总建筑面积约41.3万m²,其中地上约26.9万m²、地下约14.4万m² 。

◎鸟瞰图

◎功能区块
项目位于重庆市金凤虎溪,是科学城创新创业孵化社区东区的一部分,同时该地块位于大学城学区主轴,基地周边有虎溪河、东西两大城市公园,景观资源优越。
建筑师遵循城市设计理念,将城市公园景观引入场地内,贯穿“科学城创新创业孵化社区”,同时创建空中步行系统链接相邻地块。

◎ 空中步道景观分析
星级酒店
酒店位于项目基地的东南角,毗邻大成湖公园,我们将 南侧退台 和 中庭 向城市打开,形成 多层级连续绿色生态界面 ,与生态主轴大成湖公园产生共鸣,同时退台增加了公共开放属性。

◎ 酒店效果图

◎设计概念

◎ 酒店景观资源
在优良景观资源的前提下,建筑设计将室内功能与外立面体型合二为一,形成合理的建筑形态。

◎酒店空中退台

◎酒店景观中庭
总部办公
总部办公建筑分析结合周边环境情况,采用“ 外整内放 ”的形式。对外场地外侧城市道路界面统一中有变化,对内侧场地中央公园开放,逐层退台的形式最大化向景观界面打开,亦可从多角度多观看大成湖公园。

◎ 设计分析

◎中央景观花园效果图
办公空间采用高效内走廊双边房间的布置形式,结合景观退台,既满足传统办公的使用效率,同时兼顾现代办公对景观空间的使用需求。

◎功能逻辑分析
街区商业
服务性商业主要布置在北侧U5-4-2地块。我们通过将完整、有序的大空间打散,打造有趣乐活的街区空间,来丰富人群在街区游逛中的体验。

◎设计意向

◎商业内街
5*级A**写字楼
5A甲级写字楼位于U5-4-2 地块北侧大学城北路沿街,面积约12万m²。整体立面处理各栋建筑风格和而不同,具有街角建筑群体标志性,裙房建筑立面与高层建筑立面造型与风格统一求变。

◎街角效果图
和谐统一的形体组合,配合疏密有秩的竖向语汇,将严谨保守的建筑形体演绎出灵动多变的建筑形象。

◎竖向语汇对比

完成度控制
绿色建筑也是作为建筑的一种规则和对建筑环境的性能衡量的标准,因此设计、建造和使用是作为考察绿色建筑生命周期的一个完整的整体。同时绿色建筑不仅要考虑到是否和当地的建筑性格相符合,还要充分结合当地使用者的使用习惯。设计过程中与机电设备、绿建节能、幕墙构件等专业的多方配合,并在控制工程成本的前提下达成出色的建设完成效果。我们主要采用 玻璃幕墙 与 铝板幕墙 相结合,裙房部位适当增加干挂石材、彩釉玻璃、金属格栅和U型玻璃丰富建筑立面,以达到各栋建筑风格和而不同、立面造型协调统一。
高层写字楼立面控制
1:技术要求下的立面讨论 根据绿建节能规范,为满足窗墙比要求,设计师在选择内墙的外部做玻璃幕墙或铝板,两者进行优化对比,最终选择外侧做玻璃幕墙。(下图左侧)

◎幕墙效果对比
2:逐级递增的降本增效
内墙外侧做岩棉保温,外侧幕墙改用夹胶玻璃幕墙,降低节能幕墙面积从而大大控制成本。

◎幕墙节点材质大样
3:规划生态的建筑延续
打造塔楼中区绿色生态核,延续总体规划的绿色生态的核心概念。

◎墙身剖面
总部办公立面控制
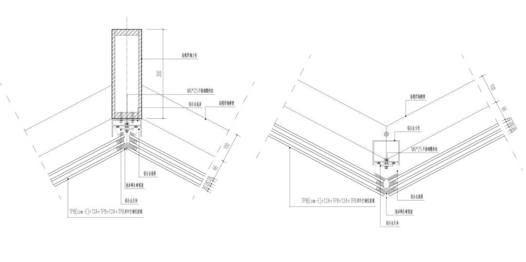
企业总部办公根据绿建、节能、幕墙和保温等各专业设计深化及项目完成度控制,采用铝板幕墙、玻璃幕墙和U玻璃相结合的形式保证项目效果。建筑西侧主要采用折面幕墙,通过折面角度来规避太阳西晒影响,满足节能需求的同时,也提升办公人员的使用感受,同时丰富了空间视觉效果。

◎折面幕墙西晒处理

◎折面仿石材铝板与玻璃幕墙结合效果
建筑东侧景观资源优越,场地内中央花园,场地外南侧大成湖公园尽收眼底。建筑立面采用大面玻璃幕墙增加通透感,将自然景观拉入建筑内部,退台的建筑形式也打破了人工环境和自然环境的边界感。

◎景观玻璃幕墙墙身节点
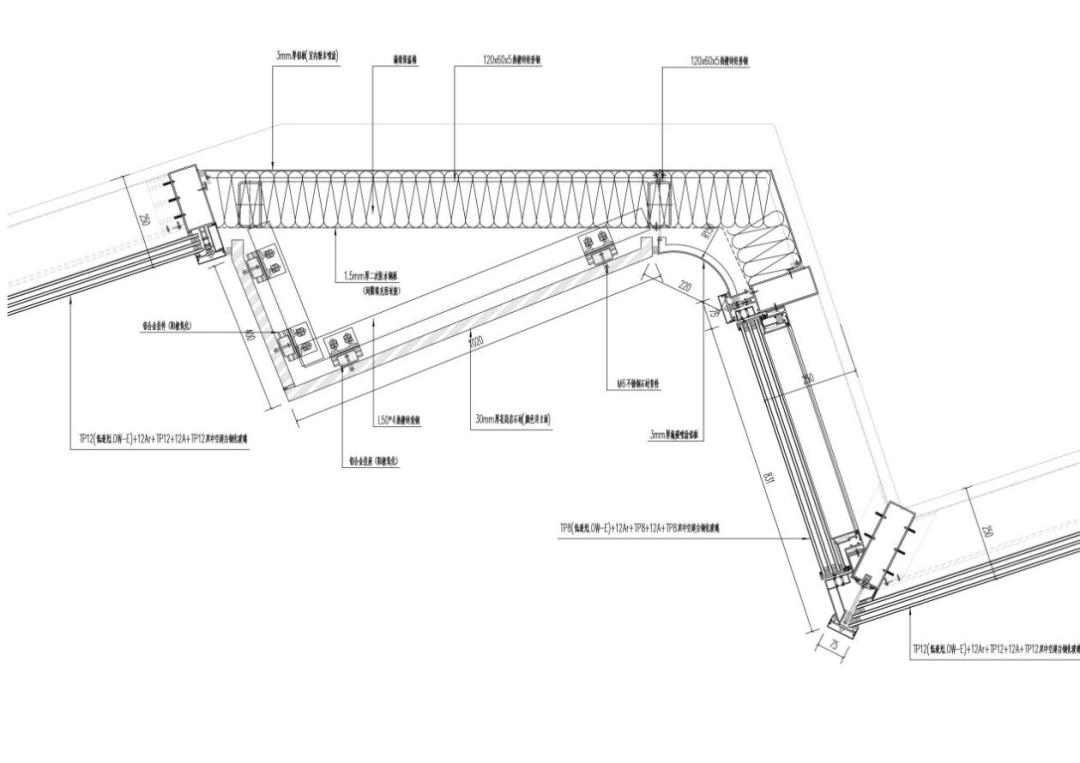
转角处柔建筑边界感,削弱尖角对城市界面的尖锐感,设计师运用圆角U玻璃模糊建筑形体转折形成的锐利。双层波纹U玻璃自身的若隐若现的视觉效果,在总体白色为基调的建筑上,带来一些细腻的柔美。U玻璃层间交接采用H型钢外挑支撑U型玻璃的立面效果, 这种做法,可以使立面的横向分隔做得比较纤细,立面的横向分隔最为不明显。U型玻璃采用330@60,7厚度的标准模块,降低成本节约造价。

◎U型玻璃平面设计
施工工艺: A.用膨胀螺栓或射钉将边框料固定在建筑物的洞口中。边框每侧应至少由3个固定点(上下框料每隔400~600应有一个固定点)。B.将起稳定作用的塑料件截成相应长度,放入框中上下型材内。C.U型玻璃入框时,应将玻璃内面仔细擦洗干净。

◎U型玻璃节点大样
酒店立面控制
1:标准层立面设计与室内标间 酒店标准段立面每个单元模块与开间对应,通过折面玻璃将虎溪河景观引入酒店客房, 充分利用场地南侧的虎溪河景观资源, 极大的提升了客房品质。

◎平面户型景观分析及节点大样

◎平面户型景观分析及节点大样
2:酒店中庭设计与室内泳池 酒店的中庭泳池正对虎溪河,最大化利用景观资源。中庭采用通高的超白钢化折叠幕墙,实现中庭无遮挡视野,强化了建筑内外的通透性,提升入住的品质感。

◎酒店中庭

◎折面玻璃节点
软件服务中心立面控制
作为项目中最独特建筑体量,设计体现出建筑多样性的手法,建筑形态虽为曲面造型,但内部平面规整,功能空间使用高效。软件服务中心作为整体项目中最特殊的建筑,立面采用玻璃幕墙配合横向玻璃百叶的造型统一中求变,玻璃百叶在阳光和灯光的反射作用下将自身建筑与周边建筑相互映衬,协调融合。

◎室内效果

◎立面局部材质大样
结语
随着许多新兴行业的产生与发展,企业的办公规模、办公形式与办公需求都在发生着变化。传统的产业园区已经不能满足当代企业的需求。我们以生态文明引领城市发展,打造多元化产业业态,区域嵌入科技廊道,让园区融入城市生活成为城市生态的一部分。未来,我们将用业态的布局、空间刻画、生命规划等手段去打造一个城市与自然共生的未来之城。
项目档案
项目名称 | 金凤软件园(虎溪园)项目二期(一标段)
项目功能 | 科技软件园
项目位置 | (西部)重庆市大学城片区
用地面积 | 11.1hm2
总建筑面积 | 41.3万平方米(地上约26.9万平方米、地下约14.4万平方米)
业主单位 | 重庆高新开发建设投资集团有限公司
建筑设计 | 承构建筑+中机中联工程有限公司
方案主创 | 柴晟、张华
承构团队 | 黄珏磊团队、张鹏飞团队、覃薇团队、吴昊+宋宇团队、刘良+肖龙生团队
中机中联设计负责人 | 黄滔、李乐天、胡翀中机中联设计团队 | 梁湘溆、梁霄、包洪余、刘志凌、胥标、张天凡、张瑜
资料来源、版权所有: 承构建筑+中机中联工程有限公司