
98年大男孩张可是个职业纹身师。除了长相、职业给人感觉酷酷的,他的家也走炫酷的硬汉工业风。
张可的家位于北京朝阳区,是一套70㎡ 的单身宅,试图摒弃传统的装修思路,完全按照自己的个性来装修。
他说,“我的家既是家,也要是酷炫的纹身工作室。好不容易才独居,不要皮质沙发、大茶几,太油腻了。”
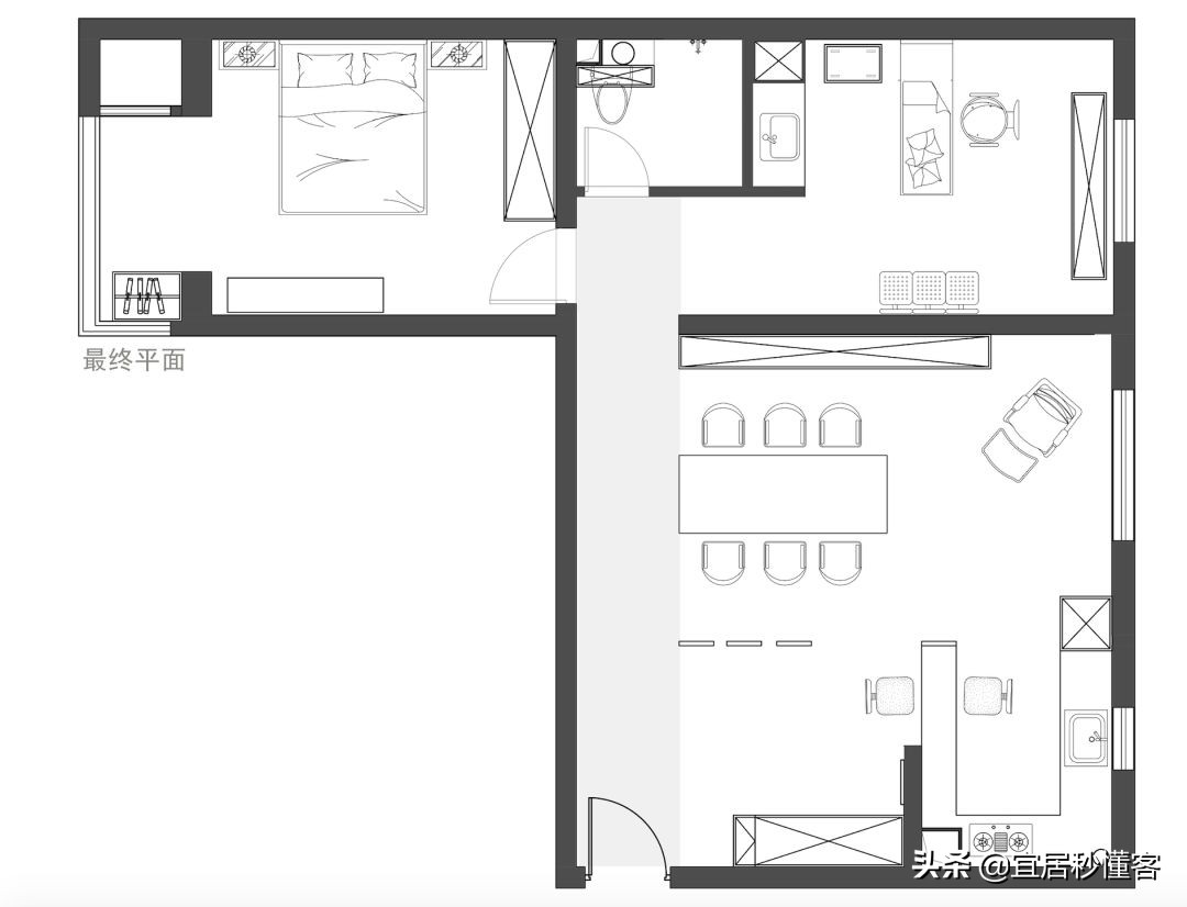
原本的房屋格局不符合张可的个性化需求,设计师做了以下改造:
1. 大客厅拆墙,打通厨房、餐厅、休息区。
2. 客卧改造成纹身室,将相邻的卫生间墙体移位50cm,把洗手台放进纹身室。
3. 黑灰工业风作为主调,灵活利用长虹玻璃、霓虹灯、金属板来增加空间趣味。
房屋信息

● 原始户型图

● 改造后户型图
坐标:北京朝阳
面积:70㎡
户型:2室2厅1厨1卫
装修花费:38万
设计:黄吉设计
01 /、玄关
卫生间和厨房在两侧

● 站在入户门向前看
站在入户门向前看,纵深的黑色长廊映入眼帘。尽头的金属饰面板,给整个空间增添了高光的质感。
设计师把右边的隔墙拆除,换成长虹玻璃作为门厅和客厅的隔断,隔而不断,透光不透明。

● 站在玄关往厨房看
入户门往前走两步再往右看是厨房区域,右边是一排顶天立地储物柜,用来摆放鞋子、行李箱、杂物及清洁工具。
设计师在房子多处设计了隐藏式收纳柜,他认为,“屋主在生活中永远是加法大于减法,东西越堆越多。储物空间不够的话,空间设计得再美,都是一团糟。”


走廊尽头是卫生间的门,用金属做饰面,打开后收纳柜、马桶、淋浴间功能明确。黑灰色作为主调,地面和墙面铺贴了灰色水泥砖,马桶、开放式置物柜选择了黑色。
此外,淋浴设备在平行的位置,避免了卷纸受潮,长条金属地漏则让下水很快。
02 、 厨房
镂空的金属洞洞门是亮点

张可是个典型的95后,不喜欢做饭,对厨房的要求很简单:颜值高,有简单的备餐功能,朋友来能方便聚餐。
设计师继续延续暗黑风格,把厨房设计成了敞开式空间。吧台的线条十分凌厉,橙色的吧椅增添了活力。但即便有个性也讲求实用,所有电器都是嵌入式柜体安装,收纳空间充足。

墙上的金属洞洞门是一大亮点。原本这是外露的燃气灶,丝毫不美观,设计师考虑到房子整体色彩偏暗,而金属片能提高质感,就专门找了厂商订做。
设计师在金属外面镀了一层铜,既保证光泽度又避免生锈,镂空还能散热。此外,洞洞还能简单地悬挂小件厨具,一举多得。
03 、客厅
怎么用灯营造氛围?

客厅并没有传统的皮沙发、储物茶几、电视柜,处处都是彰显年轻个性的细节。
整个空间的墙面顶面为艺术水泥漆,地面则是复古的水磨石。走廊和客厅选了两种不同颜色的水磨石来做分区,中间用金属条做隔断,起到伸缩缝的作用,避开了热胀冷缩可能会带来的开裂风险。
设计师建议大家刷水泥漆最好请专业的团队,要刷出有毛绒感且均匀的肌理,才能有艺术质感,这并不容易。

客厅在营造气氛上也相当出色,这得归功于灯的应用。
设计师在顶部装了一条轨道灯,可以随心情调整灯的盏数,还能让光源更有层次感。背景墙上红色的“enjoy”霓虹灯,彰显了张可的人生态度。
这里的灵感来自于张可喜欢的电影《银翼杀手》,片子里也有块闪烁的霓虹灯广告牌。同时他也想提醒自己:做事情不要有太多顾虑,纯粹地享受生活就好。

桌子选用了胡桃木原板,让整个灰色空间更有温度。正好跟其他坚硬冰冷的材质形成反差。设计师认为,“凡是跟身体有接触的地方,最好是有温度的材料。”

正对会客桌墙面的解构半圆形镜面,不仅能加大空间通透感,还能增强室内采光。原本设计师想挂一个规整的方形或者纯圆形镜子,后来觉得一分为二的形式更有空间感。
此外,这面墙来回走动的人比较多,外挂会比较危险。设计师往墙上凿了个洞,把它嵌进去,一来美观,二来安全系数高。

会客桌旁边是金属铁网烤漆置物架,工业感是表面,细腻才是它的妙处。设计师用三角铁作为材质,再用金属管连接,最后焊接成一个铁丝网,实用又有质感。

在客厅的一角,设计师放了把橘色的蛋椅,它的扶手和椅背看起来像是颗隐形的蛋,给人包裹的安全感,适合独处时的屋主。旁边的壁挂暖气片被刷成黑色,也成了一件工业风的装饰品。
在这片区域里,设计师拆除了多余的非承重墙体,使得客厅、餐厅、吧台、厨房互相联通,空间非常通透,连呼吸都舒畅了。
04 、 工作室
复古工业风

走廊尽头的右侧就是张可的纹身工作室,进门一盏印着“刺青”的灯笼颇有仪式感。

设计师把原本客卧的墙体拆除,使之变为相对敞开的空间。为了配合纹身工作室的质感,整面墙体包上金属板。设计师先用细木工板做基层,再用金属板包裹起来,收口处要注意两种或多种材料的对接。

室内设计极简,有助于张可纹身时保持专注。靠窗的位置设置了一个收纳柜,摆放着纹身所需要的各种工具。


原本应该在卫生间内部的浴室柜,被放置在工作区,除了能干湿分离,还方便张可工作。
为了强调工业感,设计师特地给洗手台做了明线处理,水龙头也相应地选择复古感十足的红色水阀和外露送水管。
05 、 卧室
简单也能有故事

卧室没有主灯,床头用了灯带,3000k-3500k的暖光源有助于睡眠。张可对卧室的要求就是最纯粹的“睡”,像电视柜、梳妆柜这种繁杂的家具统统不要。
设计师考虑到屋内整体风格偏冷,于是在卧室选择了天鹅绒材质的红色窗帘,戏剧感十足。

当然,必要的收纳衣柜还是要有,哑光黑烤漆柜延续了整体的冷酷格调。

床头两把颇有中国风的复古折叠椅大有来头。张可从小跟奶奶一起长大,感情深厚,而把这两把椅子化身床头柜,摆上活力满满的盆栽,意味着奶奶的陪伴。
家的风格有各式各样,能让住的人感到舒适满足,充分满足个人需求,便是恰到好处的设计!
