说起年轻人的家,相信大家都知道。相较于传统的装修理念,现代年轻人真的是将天马行空般的想法,以及不守规矩的个性,完美融入到了装修中。比如不要客厅、不要沙发、给家里造个图书馆,或者打造出一个电竞房等,从而充分满足自己的爱好,以及让空间贴合自己的生活方式。
像本期给大家带来的这套案例,就完美体现了当下年轻人所追求的生活方式。虽说户型面积还不到50㎡,但通过合理的设计后,不仅在功能性上做到了要啥有啥,极具温馨的氛围感,也真的一秒就治愈的心灵。
平面结构图

本案坐标北京,屋主是一对95后小夫妻,喜欢电影、手工、游戏、收藏各种手办,以及倾向温暖且具有品质感的居住环境。同时,对收纳有着较高的要求。
原户型是一套旧房,典型的“筒子”结构,开间窄,进深长,采光通风环境差。因此,为了打造出一个高品质的居住空间,二次改造时,也对空间的功能性进行了一些调整。
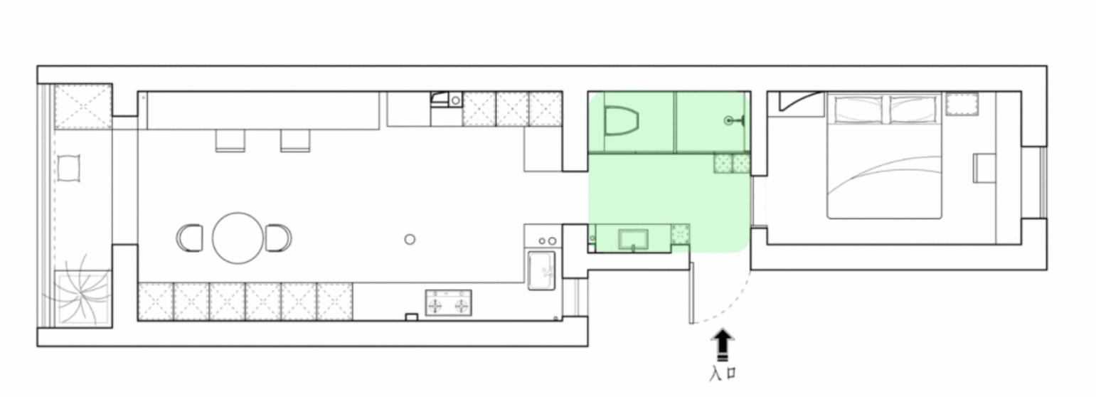
平面方案图

结合现有的空间情况,布局改造如下
1、卫生间平移到进门对面,释放出更多的活动面积。
2、厨房采用开放式设计,与客餐厅形成一体,让空间更加开阔。
3、北卧室作为睡眠区使用,让空间实现动静分离。
4、打破传统的客厅布局,并以综合性的方式,提升空间的灵活性。
改造前

玄关

奶油色的墙顶面,微水泥地面,当空间采用高度统一的色调定位之后,一进门就营造出了极其治愈的氛围感。而当卫生间平移到门厅之后,除了有效改善了客厅的采光、通风环境之外,与玄关区的功能结合后,也满足了干区独立的空间需求,从而让面积得到合理利用。

干区与入户门之间增加壁龛隔断,不仅满足了一些小物品的随手放置,也间接性遮挡了干区的凌乱。同时,下方的隐形柜门,也方便了一些日杂的收纳。而常规的鞋柜,则以通体到顶的方式,设计在了进门对面,解决了基本的储物需求。
卫生间

一体式的嵌入式台盆,弧形的镜面,以及壁挂水龙头设计,在彰显简洁基调的同时,也做到了卫生无死角,让日常打理更加轻松。当然,由于入户门旁边就是台盆,所以还方便了进门洗手,让生活更加卫生。

湿区做了双分离设计,一边为马桶区,一边为淋浴区,在家里只有一个卫生间的情况下,可以最大化提升生活效率。而整面墙的长虹玻璃隔断,也在视觉上做到了透光不透影。
考虑到马桶做了移位处理,以墙排的方式处理下水管,并选择一个壁挂马桶。除了有效规避了拥堵问题之外,也再次提升了打理卫生时的效率。
客厅

当卫生间平移,厨房打开之后,立马就让原本拥挤的空间,通透宽敞了许多,并让通风、采光环境得到了优化。
由于厨房里有一根下水管,正好处于空间的动线处。直接采用圆柱的方式将其包裹起来,既规避了视觉上的突兀性,又为空间增添了一抹趣味性。

利用原卫生间面积,设计的一组转角储物柜,则融合了家政、日杂收纳、手办展示等多种功能性,并且生活动线十分人性化。

厨房在打开后,同样设计了转角橱柜,并且还紧邻橱柜设计一组收纳能力超强的大衣柜。一来提升了空间的整体性,二来也充分满足了不同衣物的收纳需求。同时,柜门做无拉手处理,并与墙顶面色彩保持统一,也彰显出了干净、利落的质感。

橱柜秉持洗、切、炒、盛的人性化动线布局,可以让日常操作更加丝滑、舒适。而内嵌式洗碗机、烤箱等设备的增加,也十分符合当下年轻人的生活方式,并一定程度上体现了屋主对品质生活的追求。


虽说客厅的布局打破了常规,但符合年轻人生活方式的功能却一点都不少。比如暗藏在顶面的投影幕布,就可随时让空间转换成家庭影院模式,享受极致的视听冲击力。

为减轻空间的体量,取消了常规的沙发,并利用外面鸡肋的小阳台,定制了一个卡座结构的沙发。这样既让原本鸡肋的空间得到了充分利用,也延伸出了一块极其惬意、悠闲的放空角落。同时,门洞垭口采用半弧形设计,也一定程度上弱化了视觉上的突兀。


在阳台门洞两边墙体不可拆的情况下,利用柜子将墙垛包裹起来,不仅在视觉上做到了美观,也一定程度上补充了储物空间。

小体积的圆桌,搭配上轻盈的蚂蚁椅,最大化提升了空间的自由性。无论是日常用餐,还是移到窗户边当作边几,都非常好用。


餐桌对面定制了一组双人书桌,不管是临时办公、手工、还是游戏,都可以得到满足。桌板与吊柜用与墙面同色系来处理,也让视觉效果保持了统一。

书桌细节展示,圆弧小柜子侧板背部预留缝隙,方便隐藏桌面各种设备、线路,提升整洁度。下方洞洞板的内部,则隐藏了暖气。这样既方便了维修,也不会影响到房屋的取暖。

卧室

睡眠区延续了外面的基调,并以极简的设计,营造出了舒适的空间氛围感。临窗增加的书桌,床头旁边的水泥材质床头柜,也在实用中再一次凸显出了细腻的质感。


弧形的床头背景墙,就仿佛翻开的书籍一般,为空间增添了一抹趣味,并且还给予了居住者更多的睡眠包裹感。

本案就分享到这里,不得不说,当空间采用奶油色和微水泥搭配后,真的是骨子里都透着一抹治愈的气息。所以喜欢的朋友,赶紧来参考借鉴吧。
图源/七巧天工设计
图文编辑/小拾
以上案例仅为设计师分享,部分素材参考于网络,如侵犯了您的相关权益,请后台私信删除。