
装饰装修施工图是根据甲方确定的效果图绘制的深化施工图纸,施工图纸不像3D效果图有立体感,施工图是以平面、立面、节点等组成的图纸,效果图是色彩、空间的立体呈现,深化施工图则是以装饰造型尺寸、施工技术、施工工艺、制作方法、装饰材料等组成。
施工图纸是预算造价员用来计算制作预算清单的图纸;
施工图纸是监理人员用来现场监督管理规范施工的图纸;
施工图是各施工班组用来现场放线及根据图纸的内容进行施工制作安装的图纸。
下面由华建工艺学会、华建环境设计研究所为大家讲解一套标准的装修施工图包括哪些施工图纸?
▷目录
1、封面
2、图纸目录
3、施工图设计说明
4、装饰装修施工图
4.1平面施工图
4.1.1 原始平面图
4.1.2 拆改图
4.1.3 平面布置图
4.1.4 索引图
4.1.5 地花图
4.1.6 天花图
4.2、立面施工图
4.3、剖面施工图
4.4、节点大样施工图
5、专项设计施工图
5.1、给水施工图
5.1.1 给水
5.1.2 净水设备
5.1.3 热水回路
5.2、排水设计施工图
5.2.1 污水
5.2.1废水
5.2.1粪水
5.2.1雨水
5.3、强电设计施工图
5.3.1开关
5.3.2照明
5.3.3插座
5.4、弱电设计施工图
5.4.1监控安防
5.4.2网络
5.4.3视频
5.4.4音频
5.5、暖通设计施工图
5.5.1空调
5.5.2地暖
5.5.3新风
5.6、灯光设计施工图
5.7、消防设计施工图
5.7.1烟感
5.7.2喷淋
5.7.3消防栓
5.7.4挡烟垂壁
5.7.6防火卷帘
5.7.7防火分区
5.7.8出口指示
5.7.9应急照明
5.8、结构施工图
5.9、幕墙设计施工图
5.10、防雷设计施工图
6、施工表格:
6.1、材料表
6.2、灯具表
6.3、五金表
6.4、卫浴洁具表
6.5、门表
6.6、软装家具表
装修施工图一般包含以下内容
▶ 1、封面:
标清楚图纸的项目名称、项目图纸类型、绘制时间等基础信息,方便后期找图纸与整理归类。

△封面示意图
▶ 2、图纸目录:
列出所绘制的图纸的编号、名称和页码,方便快速找到相对应的图纸。

△装修工程图纸目录
▶ 3、施工图设计说明:
施工工艺说明是对项目施工的实际要求与规范;
包括:工艺说明、技术规范、技术标准等。

△施工工艺说明(一)

△施工图设计说明(二)
▶ 4、装饰装修施工图
4.1平面施工图:
平面施工图包括:原始平面图、拆改图、平面布置图、索引图、地花图、天花图等。
4.1.1、原始平面图:
绘制项目原始的柱网、承重墙以及需要装饰装修设计的非承重墙、房屋建筑设施、设备的位置和尺寸。

△原始平面图
4.1.2、拆改图
对原房屋建筑改造的内容及定位尺寸。

△拆墙图

△砌墙放线图
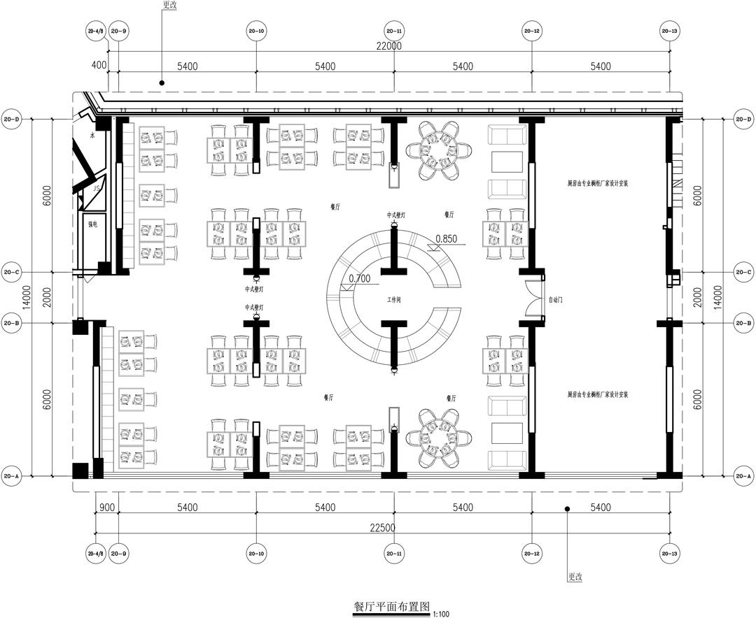
4.1.3、平面布置图:
可分为陈设、家具平面布置图、部品部件平面布置图、设备设施布置图、局部放大平面布置图等。

△平面布置图
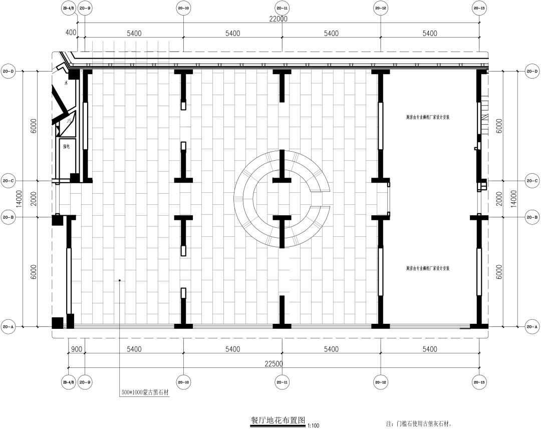
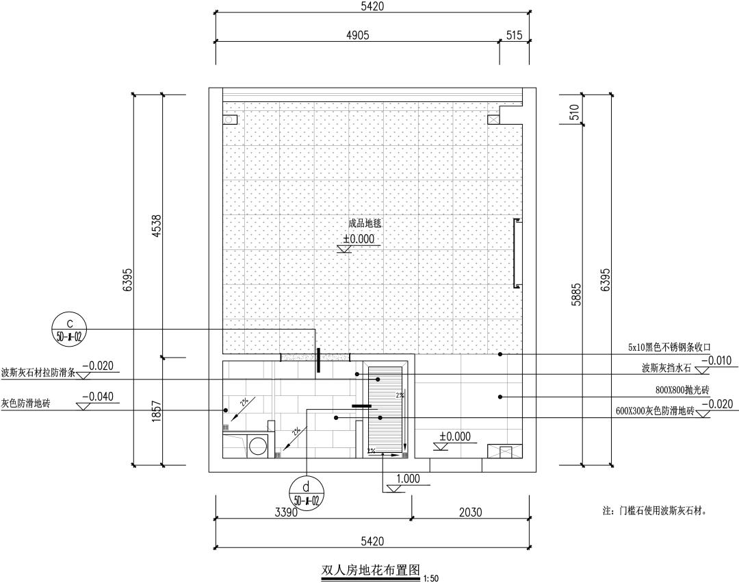
4.1.4、地花图:
应表现地面装饰材料的种类、拼接图案、不同材料的分界线、定位尺寸、规格和异形材料的尺寸、施工做法等。

△地花图

△地花图
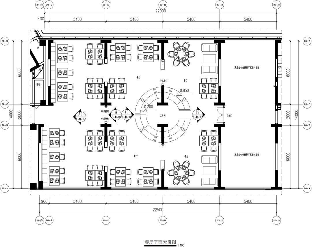
4.1.5、索引图:
索引图应注立面、剖面、详图和节点图的索引符号及编号,并可增加文字说明帮助索引。

△索引图

△索引符号注解
4.1.6、天花图:
可分天花平面图、天花灯具布置图、天花综合布点图、天花灯具尺寸图等。

△天花布置图

△天花灯具布置图


△天花灯具尺寸图
4.2、立面施工图:
立面施工图是对立面上装饰装修材料的种类、名称、施工工艺、拼接图案、不同材料的分界线的绘制与标识。

△A立面
此版本为缩减版
查看全文版
可在华建工艺学会*载下**
文章部分图片来源于网络
该文案出自华建工艺官网,如需了解更多施工工艺,可点击阅读全文查看↓↓↓
本文编写单位
华建环境设计研究所编写
编辑:梁薇、廖炽伟
图片:苏韵涛
审校人员:
黄志钦 (注册一级建造师)
陈韬(注册一级建造师)
发布于2023年1月
“一套完整的装修施工图
都有哪些?”
HJSJ-2023”
文案由华建工艺学会的团队发布
主要面向学生
由于文案的教学特点
它的内容可以自由复制、打印和分发
禁止商业用途
往 期 精 彩
Past pure color
↓↓
精装修砌墙验收规范 HJSJ-2023

更多设计看点→点击关注华建环境设计研究所
