
项目名称
湖北武汉潘家新中式别墅
项目经理
王云
图纸编号
1163
建筑面积
254㎡
占地面积
143㎡
建筑尺寸
13.4m×10m
建筑结构
砖混结构
参考造价
55万元(不含室内装修费用)
项目概况

△总平面示意图
基地情况:
东:空旷空地
西:村内道路
南:小胡同+邻居
北:空旷空地
项目简介:
业主在项目前期与设计师及相关负责人沟通了详细的空间需求,希望扩大玄关的面积增加露台、连廊、粗加工区域等功能需求,对于立面造型方面也有一些在细节上的具体要求。
设计师根据业主的需求和喜好,并结合项目场地上方电线的限制情况,将项目形式确定为坐东朝西的二层新中式别墅。
平面布局
户型概况:
2层 /5室 2厅 2卫 1厨 1储物 1书房 1粗加工 阳台 1露台 1车库

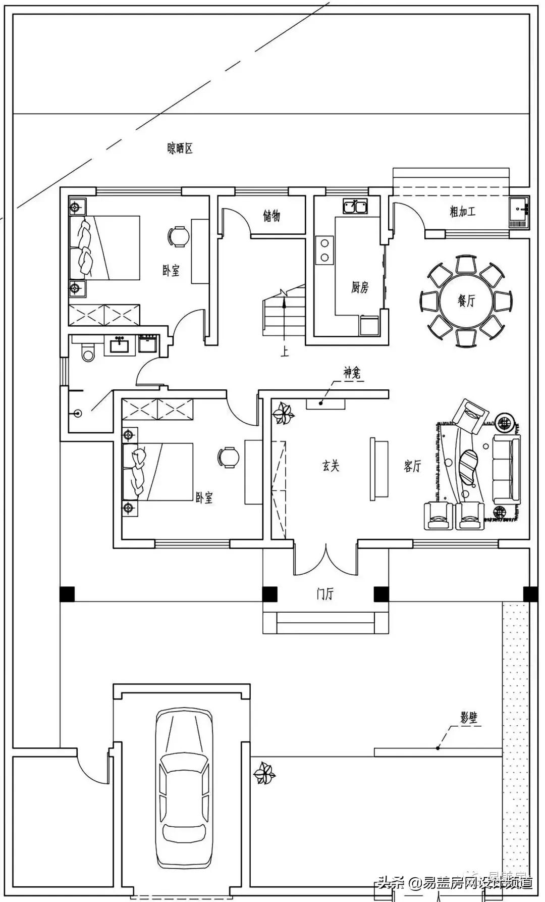
△一层平面图(左侧为北)
平面根据业主要求和场地情况,将主房放置在基地北侧的位置,与南侧餐厨空间和客厅的休闲区域相呼应,通过中部玄关、走廊实现南北区域的动静分离设计。

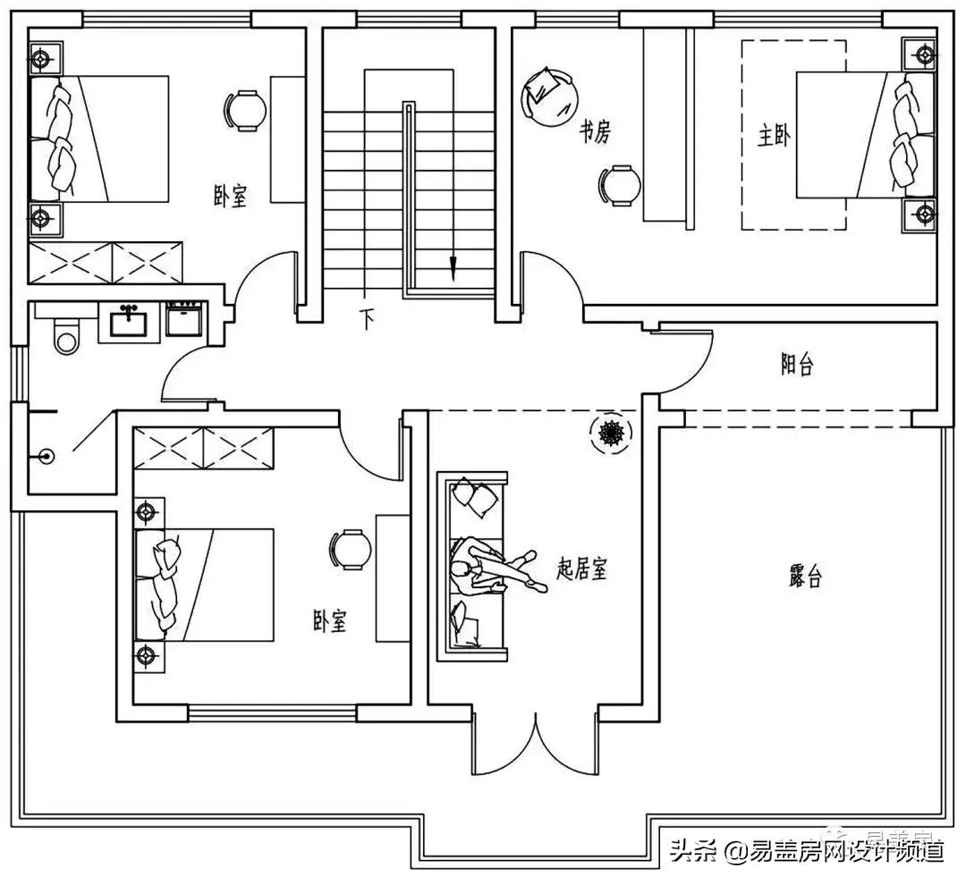
△二层平面图(左侧为北)
二层以居住休闲为主,东侧设置两间卧室和书房,丰富居住功能;西侧和南侧设置阳台和露台,方便日常家务的清洁、盥洗工作,及待客需求。
造型设计

△鸟瞰图
建筑整体偏向新中式风格,立面以暖色真石漆为主,轮廓以及空间分界处选择深色,颜色变化让建筑更加立体。

△西北侧效果图
老人十分喜欢中式建筑的厚重感,主体高于车库,利用传统元素和现代风格结合打造十分有特点的造型。较深的轮廓配合庭院内影壁遮挡带出古韵古风。

△鸟瞰图
屋面的起伏变化丰富,使得顶层露台的设计巧妙地隐藏于整体造型之中,从远处望去,建筑的整体性反而十分出色。

△西南侧效果图
入户门选用方柱形成十分大气的空间感,中式柱体使得此处空间更具古典美感。几步台阶延展开的深邃通过绿植中和,入户位置的整体布局极具仪式感。

△西侧效果图

△东北侧效果图
建筑庭院设置多种景观装饰,西侧室外休闲区域与东侧的植物景观、水景相映成趣;南部庭院影壁设计配合绿植装饰,使得院落空间更具自然气息。

△东立面图

△西立面图

△南立面图

△北立面图
△扫码了解建材详情
扫描下方二维码
委派本案例主创建筑师:
韩淑萍
为您定制专属生活空间

设计师问答
1.作为设计师,在这个项目中遇到了哪些困难?
答:业主需求明确,我们在沟通上会交流得更多、更细致。另外就是项目中会因为上方电线的特殊情况,设计上会有些许限制,但整体方案设计还是进行得比较顺利的。
2.这个项目的设计周期是多久?
答:20天左右。
3.是否有自己非常满意的设计建议未被业主接受?
答:设计的第一版为扩大客厅的使用,缩小玄关的使用面积。业主及其家人沟通后,并未采纳此建议。
