点击上方【 大水牛测绘】关注我们

在使用CAD绘制设计图时,经常需要改变对象的长度和外形,拉伸命令(STRETCH)就可以很好的帮助我们解决这个图像的拉伸问题。
拉伸命令的激活方式:
①命令行:直接输入STRETCH(S)并按回车键确认
②菜单栏:依次单击【修改】→【拉伸】
③功能区:找到【拉伸】按钮点击即可
下面给大家演示一下拉伸命令的使用步骤和注意事项:
1.使用CAD软件打开一张需要进行调整的设计图,缩放到合适的显示位置,并在状态栏关闭对象捕捉;

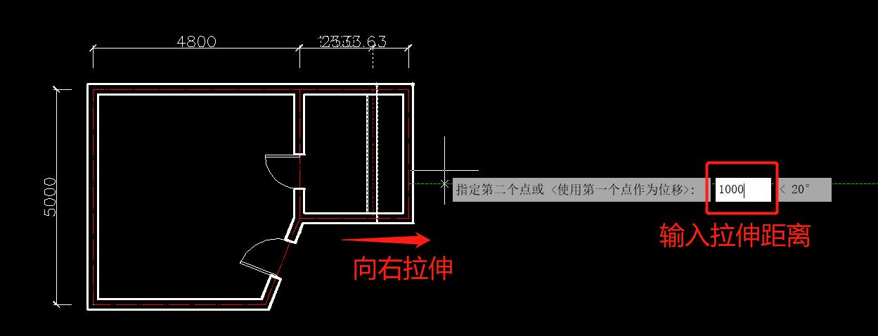
2.下面我们要使用拉伸命令加大房间的平面范围,将房间的宽度与长度个拉伸扩大1000个单位:激活拉伸命令,从右往左框选住需要进行拉伸的墙体边界,注意不要框选到“门”,拾取任一点为基点,接着将鼠标竖直向上拖动,再输入拉伸距离1000,按回车键确认后,就完成了上墙体的拉伸;

3. 直接按回车键重复拉伸命令,重复上述操作将右边的墙体向右拉伸1000单位;

4.拉伸完成后,效果如下图所示,可以看到左边与上方的长度标注都扩大了1000个单位。

拉伸命令的注意事项:
1.使用拉伸随想功能时,只能用框选或多边形框选去定义拉伸区域;
2.若希望对象整体被拉伸,则必须从右往左框选对象;
3.若在选取对象时,从左往右框选的话,对象会被执行移动命令,如下图所示:


以上就是拉伸命令的使用与注意事项,希望对你有帮助!