空间不是冰冷的元素组合或重组而成的,它可以用一种艺术化的浪漫表达方式,在明与暗、黑与白之间,寻求一种人与空间环境最和谐的状态,并把它以美的形式呈现出来。这样的空间,我们称之为“家”。
Space is not composed or recombined of cold elements. It can be expressed in an artistic and romantic way. Between light and dark, black and white, it can seek the most harmonious state between human and space environment, and present it in the form of beauty. This kind of space, we call it "home".
Full case service
华浔·定制家
项目名称: 龙湖春江天镜
设计风格: 美式轻奢
项目面积: 125㎡
主案设计: 贺显
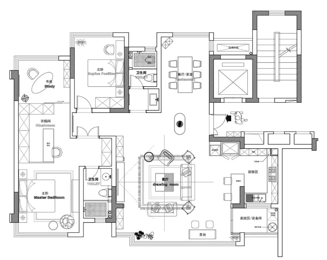
户型设计
-Apartment layout design-
▼平面布置图

设计说明
-Design Description-

设计说明:
屋主有着轻松时尚的空间审美,家对于他们而言,不仅仅是能够容纳衣食住行的生活空间,更是一种生活观的表达载体。美式轻奢风格总能以一种优雅自然的方式去呈现高品质的生活状态,没有过多的修饰与约束,让居住者享受一种轻盈的生活状态和不失情调的生活方式。
实景展示
-Case presentation-
—
01
#客厅/living room
家是融合了生活习惯和期待的定制空间,美式轻奢脱离了传统的繁琐与浮华,以更加轻盈的姿态呈现多姿多彩的空间面貌,让日常画面以温柔优雅的方式呈现出来。客厅没有过多色彩的堆叠,大面积运用米白色让空间柔和舒缓,营造一种舒适的居家氛围。


壁炉式的电视背景墙,腔调满满的吊顶设计,恰到好处的美式家具的加入,轻奢优雅的高级感徐徐展开。整面落地窗让视线、采光倍感通透,充分考量了人与空间的温暖关系,于轻奢之间,以最自在的心境享受空间的温度。


02
#厨房/Kitchen
蓝色的加入让原本静谧沉闷的空间生动起来,与白色的搭配为空间增添了一份清新和活力,在视觉传递上更具感染力,让厨房区域由内而外散发出优雅干净的气质。角落吧台的延伸作为开放式厨房与客厅的半隔断设计,兼顾了美感与功能的平衡关系。



03
#餐厅/Restaurant
餐厅是一个集温度与情感于一体的空间,在设计上避免使用杂色,高效利用每一寸格局,保持视觉上的简洁整齐,餐椅和室内窗帘配色呼应,在自然光线的映衬下,空间变得明亮清新,屋主在用餐的时候也能感受到简单细腻的格调。


04
#主卧/Master bedroom
温馨质感的主卧套房,兼顾美感与功能的诉求表达,睡眠区、衣帽间、书房依次并列,家具的色彩和线条与整体空间的气质呼应,如行云流水般自然圆润。



在私密空间卸下平日里的疲惫,这是空间给人的一种安全感,柔和的灯光、柔软的软装,让卧室拥有了灵动静默、岁月静好的氛围,不仅能从视觉上享受整体空间的布局,各种恰到好处的元素加入其中,生活品质也在此处得以展现。


开放整洁、井然有序的L型衣帽间设计,靠墙打造、一面到顶,从收纳到展示,造型干净利落,在灯光的渲染下,细腻的空间氛围徐徐展开,舒适质感也更为饱和。


沿着衣帽间步入书房,这里宁静优雅,书香润物,这样一个私人角落是整个居室最静谧的空间,以实用性为主,进行合理的规划布置,以满足屋主阅读、工作的需求。


05
#次卧/Second bedroom
次卧的空间使用面积相对紧凑,在设计上保证了睡眠空间该有的静谧感,空间色调干净纯粹,床品素雅温和,选用造型简单利落的家具去实现空间的功能性,打造一个远离喧嚣的宁静空间。

06
#洗漱区/Wash area
设计师结合原始户型结构的考量,将客卫与洗漱区作分离处理,洗漱区设置在走廊一侧,方便日常使用,浴室柜的蓝白色组合清新自然,方寸之间营造一个舒适的功能区域。
