进门无玄关怎么装?以前以为只能砌墙,今天看了这位业主家,瞬间后悔自己合肥房装早了,还是她够聪明,80平的两室,要住她们一家三人,杂物比较多,于是女业主就直接装了到顶的柜子和镜子,隔出了一个独立玄关,全屋细节设计,堪称中小户型"教科书式"装修模板了!

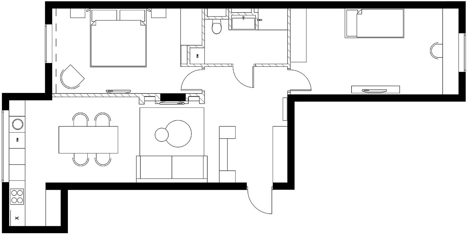
户型图就可以清晰明了的看出整套房的布局了:
2室2厅1厨1卫,开放式客餐厨一排到顶,厨房以最省空间的方式,一字型橱柜装到底。

单独用收纳隔断隔出独立玄关后,中间留出的到顶镜面,正好成了玄关独一无二的全身镜了,进出有面子,显得家里宽敞!

接着又在玄关柜的侧边一角,打造精致的摆件装饰角,4束灯光打下来,一个中小户型也可以上档次又高级!

背靠玄关隔断柜子后的就是客厅了,现在也完全不用担心开门见厅的尴尬了!还将原来不能动的承重柱改成了电视背景墙,两边延伸做展示架,光凭这一个设计,都让人佩服到不行!


不过最厉害的还是她们家的这一个装修绝招:餐厅侧边做了到顶镜面墙,让80平看起来比200㎡还宽敞!

除了餐桌吊灯,基本上各个空间都采用了无主灯的设计,让小空间不那么单一,个个角落都灯光无死角。

厨房橱柜就在靠窗的位置,一排橱柜到底,把烹饪区留在靠内的角落,减少了开放式厨房油烟对家里的影响,这点很多人家里都可以学一学,十分的人性化。

按全屋各空间实际实用面积来算,2间卧室绝对是她们家最宽敞的地方了。
主卧采用双层窗帘做采光和遮挡,清新的一抹蓝色,为整个空间都增加些生动活力。

而次卧儿童房,就在窗户下打了一排书桌书柜,这样不用一间独立书房,也可以满足孩子从小到大看书学习的使用需求了。

三分离式的卫生间,在她们家也完美的装成了教科书式模板。
洗漱区放中间,两边砌窄墙单独隔出马桶区、淋浴泡澡区,干湿分离的不要太到位!

