主要技术经济指标
主线全线采用高速公路技术标准,设计速度为 120km/h,双向四车道高速公路技术标准,路基宽度为 27m;宁阳北连接线采用双向四车道一级公路标准建设,设计时速 80km/h。
主要技术经济指标详见表

路基、路面
路基工程
本项目整体式路基宽 27.0m,横断面划分为:0.75m(土路肩)+3.0m(右侧硬路肩)+2×3.75m(行车道)+0.75m(左侧路缘带)+3.0m(中央分隔带)+0.75m(左侧路缘带)+2×3.75m(行车道)+3.0m(右侧硬路肩)+0.75m(土路肩)=27.0m。
路拱坡度:一般路段,路缘带、行车道和硬路肩横坡为 2%,土路肩为 4%;
超高路段,超高侧,路缘带和硬路肩同行车道一起超高,土路肩保持向外 4%不变,另一侧与一般路段相同。
路基边坡:当填土高度 H ≤ 8m 时采用 1:1.5;填土高度 H>8m 时,根据情况采用 1:1.75 或桥梁。
公路用地界在排水沟外缘以外 1. 0m。项目路基断面见图

路基标准断面图
1 、路基、路面排水
(1)路基排水
在填方路基坡脚处设置 2 米护坡道,在深沟大坑附近护坡道宽度适当加宽。
在护坡道外侧设底宽不少于 0.8m,深度不小于 0.8m,内外侧坡率为 1:1 的 C25 砼预制梯形排水沟,预制块厚 8cm,底部设置 4cm 水泥砂浆垫层,挖方采用 0.6×0.8m的 C20 砼现浇矩形盖板边沟,山坡截水沟采用 0.4×0.4m 的 C20 砼现浇矩形沟,壁厚均为 20cm。
(2)路面排水
①填方路段当路线纵坡≥0.3%时,采用集中排水方式,硬路肩外侧设水泥混凝土矩形集水沟,汇集路面雨水,每 25m 设一道急流槽,将路面水引至排水沟或排至路基范围以外。当路线纵坡<0.3%时,采用分散排水方式,土路肩采用硬化加固处理;②在超高填方路段的超高侧,采用分散排水方式,路面水汇至中央分隔带,由中央分隔带排水系统排出;另一侧与一般路段排水原则相同;③挖方路段路面排水采用分散排水,由硬化路肩直接将路面水排到石砌边沟内。
(3)中央分隔带排水
一般路段中央分隔带采用凸形,填方路段分隔带底下设置纵向和横向排水管,挖方路段则设碎石垫层,将渗水汇集并引出路基。超高路段中央分隔带采用浅碟式,中间设置集水井,将水汇集至集水井后再由横向钢筋混凝土管将其排至边沟或排水沟。
2 、路基防护
在低洼地段,河流沿岸,桥头两侧及涵洞进出口,护坡道,排水沟等处,为防止洪水或雨水形成集中冲刷,设置砼圬工防护。其余路段根据路基填土高度、路面排水方式和周围环境美观需要采用喷播植草、三维网植草、砼预制衬砌拱骨架植草防护。
当填方路基填土高度 H≥3.0m 时,采用砼预制衬砌拱骨架防护,圈内植草;当H<3.0m 时,边坡用喷播植草防护。
对于土质、风化岩路堑边坡,当边坡 H>5.0m 推荐采用砼预制衬砌拱骨架防护,圈内植草;当边坡 H≤5.0m 时,采用三维网植草防护,对于石质边坡推荐采用锚杆框格植草进行防护。
3 、中央分隔带
一般路段的中央分隔带采用凸式,路缘石高出路面 12cm,填土比路缘石低5cm,其内种植草皮和冬青球,为防止水向路面渗透,在路面边缘处喷洒沥青防水层。超高路段的中央分隔带采用浅碟式,其内用 5cm 厚的水泥混凝土块铺砌,水泥砂浆勾缝,下设 10cm 厚砂垫层,中间每隔 60m 设-集水井, 将雨水汇集后再通过横向排水管排出。
路面工程
1、 路面 面层
路面面层采用沥青混凝土三层式结构,上面层为改性沥青玛蹄脂碎石混合料(SMA-13),厚度 4cm;中面层为改性中粒式沥青混凝土(AC-20),厚度 6cm;下面层为中粒式沥青混凝土(AC-25),厚度 8cm。
2、 路面 基层 及底基层
路面基层、底基层结构采用大粒径透水性沥青混合料排水基层(10cm,LSPM-30)+水泥稳定碎石上基层(18cm,水泥剂量 6%)+水泥稳定碎石下基层(18cm,水泥剂量 6%)+水泥稳定碎石底基层(20cm,外掺水泥 5%)。路面结构方案见图

桥梁 、涵洞 工程
1 、桥梁
全线设特大桥 1275m/1 座,大桥 6241m/23 座,中桥 1111m/16 座。
典型桥梁有:K57+224 大汶河特大桥和 K23+95 石坞水库大桥。典型特大桥、大桥和中桥桥梁设置见表 。


中桥 设置 情况


矮 矮 T 梁典型横断面(小桥横断面)

矮 T 梁典型横断面(中桥横断面)

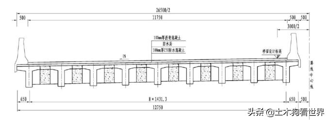
小箱梁典型横断面

T T 梁典型横断面
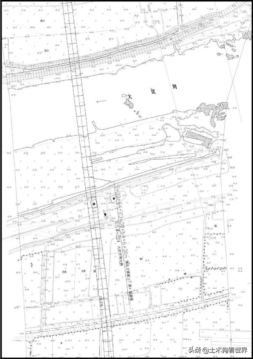
1、K57+224 大汶河特大桥
该桥跨越大汶河,桥面宽度 25.5m,上部结构为预应力砼小箱梁+现浇箱梁,下部结构肋板台、柱式墩、桩基础。

3、K23+95 石坞水库大桥
该桥跨越石坞水库,桥面宽度 25.5m,上部结构为预应力砼小箱梁,下部结构肋板台、柱式墩、桩基础。
#济微高速##山东高速##济南头条##济宁头条##*安泰**头条#