分享一些小型卫生间的平面及基本尺寸,和若干设计参考图片,若您刚好面临同样的问题可以参考一下。
基本尺寸部分













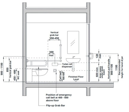
以下几个平面立面示例,是考虑有老人或残障人士所需要的卫生间设计尺寸参考。
以下是基本的英文翻译,有助于阅读理解。
- clear space: 净尺寸。这个净空间需求是轮椅人士在使用时,移动或旋转的基本尺寸。
- water closet (WC):冲水马桶
- Grab bar:扶手
- flip-up :上翻
- vertical:垂直的
- horizontal :水平的
- call bell:呼救按钮,厕所外面会有警报灯,供紧急情况时使用。
- emergency:紧急的
- finished floor level (FFL) 完成的地面高度。( 为了避免从结构地面错误计算高度,常见的标注说明)
类型A:



类型B: 浴缸安全扶手的设置。


类型C: 淋浴及座浴,适合老年人,或轮椅人士淋浴使用。
设计范例,以3D 视角展示卫生间整体布局,方便理解。
A:有浴缸的设计














有淋浴间的设计











谢谢阅读分享。