对于一个酒店项目,按区域通常分为三大块:公共区、客房区、后场区。
- 公共区是指客人活动的区域,例如大堂、餐饮区(宴会厅、中餐厅、全日餐厅、大堂吧等)、会议健身、公共卫生间、电梯厅、走廊等等。
- 客房区通常是指客房层的电梯厅、走廊及客房房间、行政酒廊。
- 后场区是指行政后勤人员工作的区域,例如员工办公室、厨房、服务走道、布草间、洗衣房、员工宿舍、储藏间等。
这三个区域之间相对独立,却又紧密联系。

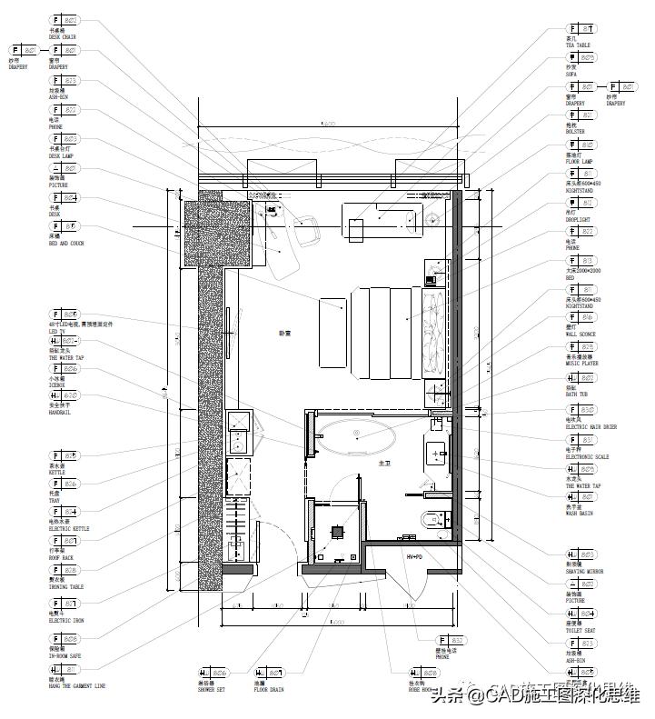
客房是酒店的核心功能,在酒店项目中占比是很大的一块,按照房型可以分为:标准大床房、标准双床房、无障碍客房(残疾人客房)、行政套房、豪华套房、总统套房等。
别看客房房间面积不大,但麻雀虽小,五脏俱全。想要做好一间客房需要考虑到很多方面。
今天我们就简单聊聊标准客房设计时需要注意哪些地方。
注意,以下内容仅供参考
首先,要对客房区的房型进行分析布置,也就是出具房型表。


例如哪些房间是大床房,哪些房间是双床房,哪些房间是套房等。大床房占比多少,套房占比多少等等。既要有平面布局,也要有对应表格,方便查阅。
通常房型比例:
- 大床房50%
- 双床房43%
- 无障碍客房1%或不少于两间
- 套房6%
需要注意的是,无障碍客房需要和相邻的标准客房连通,作为连通房,并且至少有一间为双床房布局。
无障碍客房的设计风格一般要与标准间一致,但是无障碍客房内所有设计,都要符合《无障碍设计规范》的各项要求。
另外无障碍客房应尽量设置在低楼层且接近电梯厅的区域,方便客人到达。
而套房通常设置在高楼层,总统套房一般设置在顶层。
当然,这些都需要与酒管公司协商而定。
一个标准间按功能大致可以分为:入口门廊、盥洗室、睡眠区、工作区。

- 入口门廊
通常要有衣柜,全身镜,行李架,迷你吧。
- 盥洗室
通常要有洗手盆,浴缸,淋浴间,马桶间(可封闭设置)。
- 睡眠区
通常要有床,床头柜,台灯(壁灯),床榻,电视、艺术装置。
- 工作区
通常需要有办公桌,椅子,台灯,电话,沙发,茶几,垃圾桶。

接下来咱们从入户门开始详细聊聊各项要求。
入户门
- 客房的入户门一般都要求必须为实心木门。
- 门扇净宽0.9米,2.1米高,45mm厚。
- 必须往客房方向开启。
- 最低耐火等级至少为20分钟。
- 在门的底部有下落式隔音封条,在门框的顶部和两侧安装隔音密封条。
- 需采用硬质表面的门槛石,不得采用地毯作为门槛。
- 带执手的电子门卡锁,以及一个防盗锁,锁舌的伸出长度不小于25mm。
- 一般至少三个铰链,自动的液压或弹簧铰链型闭门装置(必须为隐蔽式闭门装置),必须能够关闭任何大于10度时放开的门。
- 不允许使用保持门常开的装置。
- 门挡,最好固定于墙面上的带有固定锚固块。
- 一个180度视角的单向猫眼,距地1.5米高。
- 带有橡胶垫的防盗链或防盗扣。
- 门背面需有疏散指示标识图。
- 必须配备“请勿打扰”设施,可以是门挂牌或电子按键系统。
- 连通门的最小宽度为0.9米(无障碍客房的连通门最小宽度为1米),2.1米高,45mm厚实心木门。每个相连通的房间都要设有一个门。耐火等级至少为20分钟,隔音系数为50的评级。必须往自己的房间方向开启。
无障碍客房的入户门与标间的有所不同,这里先不介绍。



打开入户门,我们就来到了入口门廊,衣柜、行李架和迷你吧通常都会设置在这个区域。入口门廊的净宽至少要有1.2米,天花最低净高2.4米。
衣柜
- 衣柜最小长度至少1.3米,最小净深度要580mm。
- 必须配有柜子背板。柜门最好采用实心平开门,尽量不用推拉门。
- 必须配置挂衣杆、活动衣架、开放层板和客房保险箱。
- 需要预留放置熨斗、熨衣板的空间。
- 通常在隔板架前端安装隐藏式灯条,可以照亮所挂衣物。
- 强弱电箱的检修面板必须为隐藏式(要带锁)。
- 客房保险箱的尺寸要求可以容纳一台15-17英寸的笔记本电脑;必须带有密码装置;必须固定安装。
- 全身镜宜为带框壁挂式,至少450mm宽,1.6米高;放置镜子的位置必须提供充足照明亮度;不能够有锋利的边缘;最好位于衣柜旁边;也可以用墙面造型作为全身镜的功能。



行李架
- 固定式行李架必须使用耐久的材料以便于维护。
- 行李架的墙上必须安装防撞保护。
- 通常设置在衣柜旁边。
- 行李架高度至少450mm高。



迷你吧
- 迷你吧柜子内要有小冰箱。注意小冰箱的电源必须为不断电电源。
- 迷你吧柜体长度1米,深度0.6米,台面高度0.9米。
- 迷你吧的抽屉托板不能像普通抽屉那样是平的,应该是根据需求,做成有凹槽的。
- 迷你吧台面上要有托盘、电热水壶、水杯、茶叶、咖啡等。




盥洗室
- 盥洗室天花最低净高至少2.2米,通常会做成与入口门廊天花高度一致。
- 地面材质一般为400mm或更大的防滑饰面石材或瓷砖。
- 门扇最小尺寸为0.76*2.1米。(无障碍客房的盥洗室门最小0.81米宽)
- 天花检修口必须防锈,最好带有不锈钢框。
- 必须配备四件套:座便器、洗手盆、浴缸、淋浴。
- 必须提供两个挂衣钩或一个带两个头的挂衣钩。

- 座便器处必须设置厕纸架以及一个备用厕纸架。
- 必须配备一个电话,安装于马桶旁边,距离地面1米处。电话线要隐藏,且不能露出面板。
- 座便器旁边必须提供一个垃圾桶。
- 座便器若设置门,门的尺寸及形式最好与淋浴间一致。


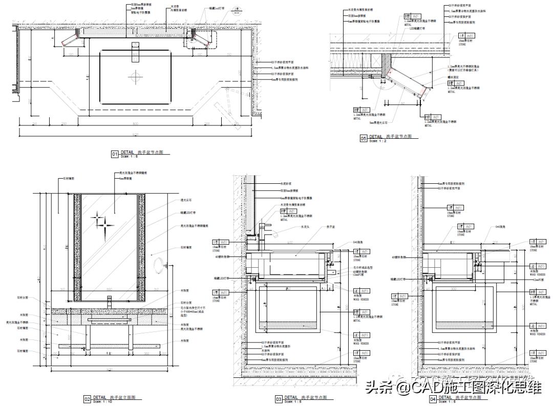
洗手盆
- 洗手盆高度距离地面820mm至850mm高,洗手盆台面最小长度1.2米,最小深度560mm。
- 台面下应设置一个能够有效遮挡管道的挡板。
- 必须提供一个毛巾存放空间。(通常设置在台面下)
- 洗手盆上方必须提供一面镜子,镜子高度到天花底部;并且镜子背面要有防雾加热器,安装于人的头部高度位置。
- 镜子两侧要有壁灯;洗手盆正上方的天花有一个防雾筒灯。
- 洗手盆旁边要有一个可调节角度的剃须镜/化妆镜;建议自带照明和开关;距离地面1.4米。
- 必须提供一个手持式电吹风,不允许壁挂式。
- 洗手盆台面上要提供一个面巾纸盒。
- 洗手台下方要配置一个电子秤。


淋浴间
- 淋浴间最小尺寸为0.9米宽,1米长。
- 淋浴间门最小净宽为650mm,不低于10mm厚的夹胶钢化玻璃。必须为磨砂面或酸蚀刻面玻璃门。在玻璃门边与底部安装透明挡水胶条。
- 淋浴间门把手选型必须外侧为横向(可以放置毛巾等),内侧为竖向。
- 必须提供一个手持式并带有高度调节的淋浴花洒。花洒头距离地面最少1.8米。
- 并且需要设置固定在天花上的或者悬挂式的花洒。
- 淋浴间门槛石应为20mm高石材门槛石,并向淋浴房内倒边,以便水流回淋浴房。
- 需要安装标准高度的层架,最好为嵌入式壁龛,以便放置肥皂、洗发液、护发素。
- 在浴缸或淋浴间内安装可收缩的挂衣绳。


浴缸
- 浴缸内最小缸内长度必须达到1.5米。宽度至少0.8米,深度450mm。
- 可以为独立浴缸或嵌入式浴缸。
- 必须在浴缸外沿上部的墙上安装垂直安全扶手,长度460mm。
- 浴缸上面需要安装毛巾架、皂碟。

今天先说到这里,有时间在接着说睡眠区及工作区。