业主喜欢现代轻奢风,喜欢那种灰黑色渲染的大气冷酷感,而女业主则是倾向于温暖的设计,想要让自己的新家更温馨一些。
这可难不倒设计师,通过不同色调的搭配,在房间的设计上突出不同功能区不同设计,根据功能区的属性进行色彩的搭配,比如在公共活动区域采用灰黑色作为主色调,而在休息区像是主卧室多采用一些原木材质,使得冷酷感和温馨感能够相互并存,并且突出功能区的不同属性,最后的落地效果非常棒,业主和他妻子对设计很是满意。

基础信息
设计面积:226㎡
设计风格:现代轻奢风
所用材料:原木花纹木饰板,大理石地砖,灰色墙布,极简灯带,绿植,筒灯,大玻璃窗等
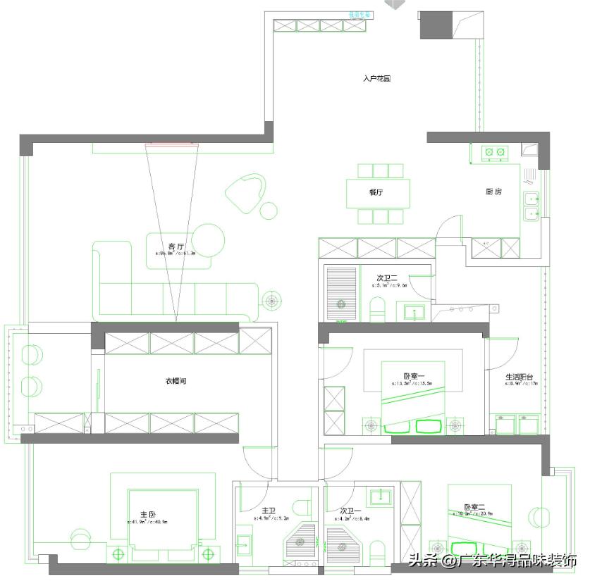
01平面布置图
1、进门处有一处打造的入户花园,让回家的路充满芳香。家就是一个温馨的地方,有了这处入户花园,可以让回家的路更有生机和活力。
2、另外一个设计亮点便是卫生间的打造。通过区分主卫和两处次卫,能够最大程度上方便家人们的生活。
3、如果大家在新房设计上想要居家生活更方便一些,一定要多留出几处卫生间,特别是和老人一块儿居住的话,会非常方便。

02客厅
客厅选用大理石板通铺的工艺,在白色的基础上有着飘忽不定的灰色花纹,就像渺渺的炊烟,让地面很是漂亮,颇有艺术感,无主灯的配置,赋予客厅更通透的视觉效果。

沙发的选择也是精挑细选,贴合空间氛围,搭配上砖红色色调的单人沙发,也让色彩饱和度和丰富程度进一步增加。

电视背景墙悬空打造,洁白的大理石背景纯粹干净,为业主提供最一流的视觉感受。
电视背景墙做了木质包裹,搭配竖向的储物隔断,可以满足一些工艺品的陈列存放,拉升视觉空间氛围感。

03餐厅
餐厅预留的空间非常充足,餐边柜打造成为酒柜,灰色柜门设计呼应空间色调。
开门处的黑色线条条,在保持柜门平整的基础上,增加了些许的活力感。

大块的空闲区域,日常行走肯定没有问题,后期这里可以规划成孩子们的乐园,或者说成为业主个性化定制的地方,留给生活想象力。
04主卧

进入主卧,有种给人眼前一亮的感觉。
女业主提出了想要一种温馨的氛围感,所以设计师采用原木色和奶白色进行融合搭配,让房间看上去纯粹而温馨。没有任何的装饰品,用最纯真的原木质感,共鸣内心对家的温馨惬意。

阳台扩入室内,打造成一体化的落地玻璃窗,赋予业主更加宽阔的视角。站在窗边,能俯瞰整个城市的美貌,看着道路上的车流川流不息,也是一种颇为美妙的减压方式。

卧室没有床头柜,但是有一处很吸睛的设计。
悬浮床搭配悬空设计的梳妆台,通过这处延展,起到“妙手回春”的作用,调和空间氛围。
05衣帽间

两侧全部打造成为收纳衣柜,进一步提升收纳能力。玻璃柜门的融入让衣柜的颜值再次提升。走出衣帽间是一处独立的小阳台,这是一处“私人场地”,业主可以自己独自享受一杯香茶,品味美好的人生。