
项 目 信 息
项目类型
私 宅
项目地址
雅安市
项目面积
130 ㎡
设计团队
刘文平 代卓芹
设计工作室
原 色 空 间 设 计
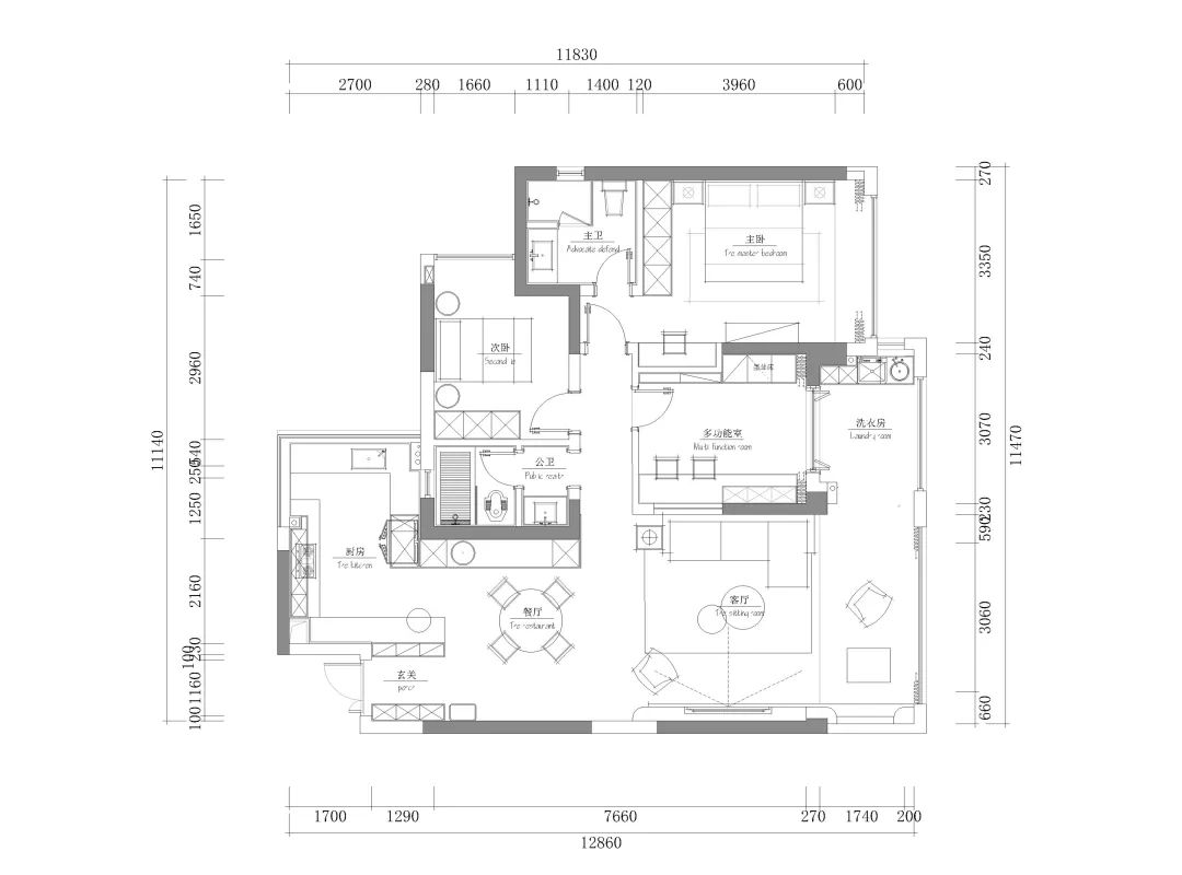
平 面 图
GRAPHIC DISPLAY

设 计 理 念

▲图源网络

▲ 设计师与业主的“神同步”
本案拥有非常优越的地理位置和优美景观,坐落于一座绿岛公园上,从窗向外眺望青衣江与周公山映入眼帘。
业主是一家三口的温馨小家庭,午后家人席地而坐共享闲暇之时,阳光从高空洒向茫野,河水在阳光的庇护下,显得格外的缓慢。
因此整体的设计以“温馨”为基调,现代简约的风格中,温和而不凡的设计,纯粹而灵动的空间,让家回归到本真的模样。
客 厅

电视背景墙使用 线条进行修饰 ,兼具装饰和储物的功能,用极简的线条勾勒出最具灵性的空间。

简单舒适的布艺沙发搭配整体原木色家具,佐以沉稳的黑色边几,轻快与内敛的碰撞。 将客厅与书房的视觉打通 ,利用玻璃的通透感对空间进行延伸。

餐 厅

黑白的世界是纯真淡然的,我们逃离川流不息的城市,踏上寻找快乐的路途。在一笔一划中,去追溯对生活的理解。


“
想和你炳烛夜游
想和你一醉方休
想为你采百合熬粥
想为你摘桂花酿酒
想与你一起
这一生 怎么够
”
阳 台

客厅与阳台打破原有的布局,通过 三联折叠屏风 增加阳台和客厅的关联,隔而不断的空间魔法,让风格更具有灵动性。

“ 这是 从我父母那里传承而来的木箱 “,女主人如是说。带着这份感情,设计师将它置放于地台之上,兼具装饰及储物功能。
闲暇时光,在此共饮,一家三代,时空流转。
书 房


▲ 墨菲床示意图
在设计中我们希望回归到生活的本真,去掉过多冗杂的装饰。通过平直的线条让业主在此思考写作时独享静谧。
同时,在此 嵌入墨菲床 使书房与客房能实现自由的切换。
卧 室

▲ 父母房
业主都是 十分恋旧 的人,将陪伴他们的床搬至新居,从曾经到现在一起坐于此处,等日光黯淡,等时间流逝,等白驹过隙。
设计师为配合床体的木色,整体采用白色基调及浅色地板以中和原木色的厚重。

▲ 儿童房

“
我在找春天里的一只熊
在清明时分
在原野
在梦中
”
将现代主义的多元化和可变性融入自己的空间设计中,辅以大面积的白色及原木色来奠定整体空间 温馨而不失气质 的基调。
不拒性别、不拒风格、不拒本心,是谓自在。
设 计 师
ABOUT DESIGNER
原 色 空 间 设 计
·
首 席 设 计 师
刘 文 平
LIU WEN PING

AWARDING
——————
2018年金腾奖最佳室内设计奖
2019年入选“中国室内设计TOP100”榜单
2019年中国未来空间设计概念大赛新南地区一等奖
2019年成都市建筑装饰协会资深住宅室内设计师
2019年第十四届“金外滩奖”最佳概念设计
2020年第十二届银杏金鸟奖入围金奖评选
2020年度四川省室内设计精英选拔赛TOP10人物奖
中国室内装饰协会全国委员
原 色 空 间 设 计
·
主 案 设 计 师
代 卓 芹
DAI ZHUO QIN
