
空气与空间
Air and Spaces
“建筑物必须设计成将腐坏的呼气与新鲜的空气流分开的样子,就如同新鲜的水流必须从被使用过的水中分开一样。我们的想法是建筑物本身的形状将确保令人满意的通风,传统的方法因而就显得冗繁了。圆顶塔和穹顶被变成了机器来吸引瘴气:专家们爬上屋顶呼吸他们所创造的无形的闻起来可怕的螺旋状物。……腐坏空气的程度是度量建筑师效率的标准。”
—— Alain Corbin,1996年,《恶臭与芬芳:气味与法国社会想象》,p.98
“污浊的空气对人体系统的影响……空气……处于污浊状态,孕育着物理,道德和社会退化与衰败的隐患。”
—— Griscom John Hoskins,1850年,《空气的使用与滥用》,第二版,p. 74
空气,是我们每天呼吸的弹性液体,被我们吸入体内。对“空气”的兴趣已经发展成为了对大气环流、天气、我们所谓的“气候”以及对我们身体和心理活力的更广泛的迷恋。空气质量(Air Quality)这个概念的形成,或许可以追溯到18世纪的西方社会对于空气的新鲜程度及其供给的焦虑上。其实,我们每天接触的室内空气包含了各种微粒物质——细菌,病毒,动物皮屑,尘螨,花粉,霉菌,一氧化碳以及易挥发的有机化合物。“病态建筑综合症” (Sick Building Syndrome)在1986年被世界卫生组织官方认证为一种疾病。病态建筑综合症是指不是由疾病或者很确定的病理引起的,人员在建筑内停留后对健康或者舒适的不良反应。世界卫生组织报告称,高达30%的新建和改建建筑物可能会导致病态建筑综合症。
在过去五十到六十年间,大部分的建筑,不论是何种大胆创新的外形,其实都遵照了同一种呆板又统一的公式:或钢铁或混凝土的框架,大面积的玻璃幕墙,用服务空间串联不同楼层,轻质的内部装饰材料,加上一套价值不菲的暖通系统。其实,“人工天气”(artificial weather)的概念在1920s 就出现了,学者们试图探索采用怎样的建筑设计策略能够应对不同的气候。在建筑内部或内部与外部之间传输新鲜空气的任务似乎早已承包给了建筑师。如果说,设计者的目标是“用建筑资源来捕捉空气,使其循环,并驱逐它”,它能实现吗?如果能,那么更重要的是,在不同功能的建筑中该如何实现?这是本文试图探索的内容。
兰彻斯特图书馆
The Lanchester Library
考文垂大学的兰彻斯特图书馆闻名于它的可持续设计理念,是一座全自然通风和被动式降温的公共建筑。如果说莱斯特的女王大楼(The Queens Building)是使空气“边缘入,中心出”的类型,那么相反地,兰彻斯特图书馆选择了“中心入,边缘出”的策略。50米的纵深,对于设计者来说,建筑的自然采光和通风问题着实成为了一大挑战。最初的设计思路是在体块之中只置入一个大的中庭,但经过简单的菲涅尔平方计算(Fresnal Square calculation)之后发现,这种大的中庭设计远不能够实现均匀且良好的自然采光和通风环境,而平均地置入多个小天井会使光线更好地分布在建筑物内,尤其是阅读区域(剑桥大学建筑形态与土地使用研究中心项目)。于是设计者最终选择了以网格式排布的形式(Mat-buildings)呈现,在每个象限置入一个小天井,从而使得平面图呈现有规则地多孔状,连接室内空间与空气入口,再使陈旧的空气从高处排出。

左右滑动 查看兰彻斯特图书馆level 2 平面图顶层平面图 (C. Alan Short 2017, p.95)
新鲜空气由天井下方的1.5米高的预制混凝土支架处进入。支架是相互独立的,且与有缓冲作用的开口相连接,因而由风向不同而造成的气压差将会在被吸入使用空间之前被平衡。每个天井下有预热盘管,在冬天会加热从外部吸入的空气。地板至天花板的高度约为4米,没有垂吊式天花板的阻碍,使得污浊的空气悬浮在超过人体高度的地方。混凝土地板结构完全暴露在空气中可以提供必要的热储备,尤其有利于夏天天花板底的辐射温度降低带来的夜晚通风——被动式降温的重要组成部分之一。冬天时每层的暖气流上升至天花板底,流经天花板,又从建筑中心及边缘处流出。设计者应用了堞形梁(castellated beams)而不是普通、实心的肋形楼板梁(downstand beams),确保了空气在天花板底可以自由流通。中庭元素也可以帮助空气自第二层以上的空间排出。

应用于兰彻斯特图书馆的堞形梁
以下面两张图分析兰彻斯特图书馆进气与排气策略:

兰彻斯特图书馆进气策略(C. Alan Short 2017, p.96)
1.吸入新鲜空气
2.新鲜空气供给泵
3.加热槽
4.加热电池
5.天井提供通风和采光
6.建筑能源管理控制系统百叶窗
7.通风筒
8.可伸缩透明百叶窗
9.置入隔热层的屋顶

兰彻斯特图书馆排气策略(C. Alan Short 2017, p.97)
1.输入建筑能源管理系统的二氧化碳和温度感应器
2.带有温度控制的边缘散热器
3.每层高处的排气风门
4.堞形梁
5.储热的混凝土天花板,被漆成白色以协助日光渗透
6.带有遮阳的天井提供通风和采光
7.带有风力防护的烟囱顶
8.建筑能源管理控制系统窗口

约翰・霍普金斯医院
若从建筑语言上剖析兰彻斯特图书馆,针对这种盒状建筑形态,Louis Sullivan 提出了一个有预见性的问题:我们应该如何赋予这种枯燥的堆砌,这种粗糙,这种质朴的设计以更高形式的敏感性和文化的优雅?我们该如何从这类现代建筑中宣扬和平,美丽,崇高生活的福音呢?Sullivan 虽然倡导形式追随功能,但他能够依然保持着古典主义和装饰主义的清醒,比如温莱特大厦(Wainwright Building)。他曾经提出“在大型公共建筑中所有窗户都应该相同,因为它们本身就是相同的”这样的建议,然而现代的许多建筑师选择*制抵**了 Sullivan 在商业舞台上的愤怒和他的讽刺意味,因为他们意识到这可能导致许多机会的流失。例如在兰彻斯特图书馆的设计中,砖石堆砌的体量进行了有变化的排布,西南和东南方向上的立面在特征上有很大不同,窗户阵列也经过了调整。
约翰・霍普金斯医院
The Johns Hopkins Hospital
通风设计作为19世纪建筑领域的一个重要题材,多半是出于对公共健康问题的考虑,而非关于舒适的世俗问题。约翰・霍普金斯医院由 John Shaw Billings 及其团队设计。Billings 早先就表明了自己对于通风和设计的兴趣,他注意到工程师们通常偏向于特定设备或系统来实现,而他则希望最终建筑本身就可以实现这一问题,他称之为“一种供暖和通风的实验室”。英国皇家建筑师协会(Royal Institute of British Architects)在1890年参观过医院建筑后,回应道“该医院是一所很棒的实验室,可以用来教授卫生法规在暖气,通风,房屋排水和其他卫生方面的实际应用”。
总体来讲,约翰・霍普金斯医院的供暖和通风设备较为复杂。空气通过被动方式以管道形式输送。病房被排布为独立的建筑(或称为“亭子Pavilions”)来保证空气对流。用来排出废气的病房烟囱被设计成沿屋顶排布,从侧面看位于由红砖和石材形成的立面之上。

约翰・霍普金斯医院隔离病房楼,1890年(Alistair Fair,2014年,p.360)
在 Billings 的最终方案中,他设计了三个类型的病房建筑。第一个是线型的“形似夜莺”的普通病房楼(The Common Ward building),第二个是由中心发散的八角形病房楼(The Octagon Ward building),第三个是有许多独立房间组成的隔离病房楼(The Isolation Ward building)。需要注意的是,此处的“隔离”并不是指那些患上某种传染病的人,而是指人们认为这些病人是很“无礼的”,可能只是有着难闻的气味。中央锅炉为这些病房提供动力,管道连接着床之间的盘管,每个盘管都可以单独调整。

建成后的约翰・霍普金斯医院普通病房楼剖面图,由窗户之间的管道吸入的空气在低处被加热,再从楼板和屋顶附近被吸走(Alistair Fair,2014年,p.369)
普通病房楼是东西朝向,有一间日光室向南。Billings 1875 年曾设想在通风室之上置入两层病房,但实际建成后只在二楼排布了一层病房,而一楼用来置入取暖和通风设备了。外部的空气由置入外墙中的管道吸入,由控制杆决定是将空气之间吸入病房,还是转到加热器中加热。其余管道将空气从窗户底下送入从而减弱气流。同时,空气从两个地方排出,一是天花板附近,一是由床下的栅格处从地板附近排出。其中,天花板附近的排气多用于天气炎热时。其中部分病房还有附加的风扇,能在天气炎热时带来凉爽的微风。所有病房在设计时都预留了置入电扇的条件。
隔离病房楼运用了和普通病房楼相似的通风策略,只不过通风量更大一些。开放式的壁炉提供了暖气,并且置入洗漱台的双面壁橱也有一定的通风作用。中央走廊的两端都是开放的。空气通过通风橱排出,烟囱旁的管道可以起到辅助作用。

约翰・霍普金斯医院八角形病房楼剖面图(Alistair Fair,2014年,p.371)
在八角形病房楼中,空气从边缘进入,再通过中央管道的上下栅格被吸走。管道的设计比较复杂,包含一个锅炉烟道和盘管,以及其他管道以便将烟灰从中央壁炉中吸走。
Billings 在医院开幕式上的讲话也呼应了他的设计:“医院是生命之流在其中不停地改变的活的有机体。”
利物浦人人剧院
Liverpool Everyman Theatre
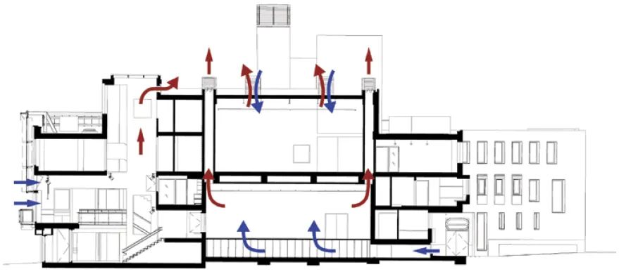
由 Haworth Tompkins 及其团队设计的利物浦人人剧院 (Liverpool Everyman Theatre)可以算作是可持续性公共建筑设计的经典之作了。出色的低能耗设计,使其于2014年获得了英国皇家建筑师协会的斯特灵奖(RIBA Stirling Prize 2014)。

利物浦人人剧院 Liverpool Everyman Theatre
“我们的客户想要一个非常非常可持续性的、低能耗的剧院,所以自然通风看起来就成为了一个显然的解决方案。” Jonathan Purcell,Waterman 建筑服务公司的主管如是说道,他负责为礼堂营造一个无窗户的人工环境来解决通风问题。
新鲜空气由位于建筑后部的安静的Arad街上的通风入口进入,而后通过声衰减器进入一个巨大的以混凝土包裹的气室,其位于剧场舞台后方的车间底下。在夏天时空气通过一个与地面接触的巨型空洞得以被冷却,然后再进入礼堂。空气先经过舞台下方,然后通过第二个声衰减器,进入座椅下方的马蹄形的气室。最终,新鲜空气再由座椅下方的栅格处传出。由观众和灯光产生的热量能加剧气压差,使得气流上升,被高2.5米的排风静压室捕获,再通过管道运输给四座烟囱,它们分别被设计团队命名为约翰(John)、保罗(Paul)、乔治(George)和林戈(Ringo)。
建筑顶部的四个烟囱将浑浊的空气排出
事实上,由于受到街道、地基和底层楼板高度的限制,空气进气口尺寸和位置早已经被固定了。规定要求建筑物必须满足为450位观众、40位员工和演员提供每人每秒10升的新鲜空气,最少供气量在5立方米每秒。因此,设计团队只能通过改变烟囱的维度来提供高质量的空气并且及时排出废气,满足这一要求。
此外,剧院另设有额外两组空调处理机(Air Handling Units/AHUs),作为在自然通风不能达到需求时的后备选项。设计团队会在冬天时利用空调处理机预加热吸入的空气。全自动化的控制设备能够根据临界温度调整气流。

剧场礼堂通风策略
除礼堂以外,低能耗服务策略意味着能使公共活动室和主排练厅也实现自然通风。公共活动室的通风策略与礼堂相似——空气由街面入口进入,通过地面栅格,再由屋顶烟囱排出。主排练厅由屋顶上的集风口来实现进气和排气。空气由临Arad街的立面上方吸入,而辐射板为房间提供热量。大堂也通过正立面上的推拉窗口实现自然通风。在这些空间里产生的热气通过一个巨大的天井排出。唯一需要机械通风的部分是地下室小酒馆。

剧场主排练厅和大堂通风策略
住宅通风
Ventilation in Your Home
老住宅通风
对于比较老旧的住宅建筑来说,安装现代机械通风系统可能会在技术和经济上有一定难度。因此,在安装机械系统时,可以首先考虑控制污染源,并且保持家中的过滤器和管道清洁。若在炎热潮湿的地区,进行局部排风(Local Exhaust)有可能会使房间内部气压减弱,从而导致外部湿润的空气进入墙体空隙,水汽冷凝。在有限的环境条件下,开窗进行自然通风也许是更好的选择。自然通风(Natural Ventilation)的基本原理是使外部新鲜空气来置换室内陈旧空气,其更多是作为一种降温策略。为了使自然通风更加有效,引入室内的气体应当尽可能地凉爽且干燥。白天可以关闭窗户限制房间吸收热量,晚上打开窗户使空气流通。如果自然通风不能达到理想的效果,那么可能需要在房间里加入机械通风系统。
新住宅通风
相比较老住宅,新建筑在技术上的限制要少些。机械通风在新住宅中一般通过三种方式实现,即仅进气(Supply-Only)、仅排气(Exhaust-Only)和进出平衡(Balanced)。仅进气通风系统吸入外部新鲜空气,在室内形成高气压,从而将陈旧的空气从室内“挤”出,在这一过程中也可以防止外部污染物进入室内。Arup设计的伦敦眼就应用了这一技术。在仅排气系统中,室内空气被吸出,从而使得室外气压高于室内,形成气流,例如厨房的排气扇。进出平衡系统是仅进气和仅排气系统的结合,也是目前大部分家庭所应用的通风方式。
被动式房屋Passivhaus
能将自然通风技术运用到极致的,当属被动式房屋了,例如由结构工程师Barry Honeysett设计建造的德文郡山谷房(Devon Valley House)。住宅建筑位于艾克塞河(River Exe)的山坡上,房屋稍向下倾斜,使得一部分被隐藏在景观之中。住宅依照被动式节能房的原则建造,具有极佳的隔热性能。采暖策略是在阳光充足的情况下在屋顶上使用太阳能集热器提供热水,并在较冷的月份使用燃木锅炉来加热水。空间取暖所需的热量很少,这是由较低楼层的地板采暖提供的。带有热回收系统(MVHR)的机械通风装置全年提供新鲜空气,并确保几乎没有热量散失。

德文郡山谷房实体模型
房屋远离主路,是典型的现代农业建筑。墙面大面积留白,加上两个相当于一扇谷仓门的大小的开口,使得建筑语言简洁明了。浅波纹金属屋顶从建筑的北端伸出,形成了一个有遮盖的缓冲空间,延长了户外进餐和娱乐的时节。

德文郡山谷房内部(在建)
工业设计中的通风系统
Air Filtration in Industrial Design
在人员密集,空气流动性差的飞机上,如何把感染的风险降到最低,民航局也给出了一个解释,这与工业设计中的通风系统设计密不可分。
1.0飞机的通风系统
与其他交通工具较为不同的是,飞机上采用的通风系统设计为“垂直通风系统”,简而言之,空气会从你的座位上方和机舱两侧的新风口处吹出,最终经过你的脚侧靠近地板的格栅被抽回。除此之外,在风口的空气过滤上, “高效微粒过滤”系统(HEPA)可以去除空气中99.97%以上的直径为0.003微米的微粒。

飞机通风系统示意图

HEPA 过滤系统示意图
研究显示,新冠肺炎病毒(2019-nCov)尺寸约为0.1微米,HEPA 系统具备拦截新冠病毒的能力。此外,HEPA 空气滤对病毒亦有抑制作用,被截留在空气滤的病毒,短时间后便会丧失活力。众多人长时间在密闭而狭小的空间,的确容易导致疾病的传播。所以飞机的设计者考虑到传染病传播扩散的问题从而设计了这个系统。
HEPA 过滤网的应用不仅仅是在飞机的通风系统中,更广泛应用于各类工业建筑的空调通风系统,以及空气净化器中。Dyson Pure Cryptomic 系列任何一款都使用与以前的 Pure 型号相同的微粒过滤器,可以过滤 99.97% 的污染物,最小可至0.3微米,可以捕获细菌,花粉和霉菌孢子之类的对呼吸道不利的因素,而经过重新设计的活性炭过滤器可吸收异味,家庭烟气和二氧化氮和苯等气体。其中 HEPA 和碳过滤器大约需要每12个月更换一次,但甲醛催化剂过滤器可以延长净化器本身的使用寿命。用户能够通过戴森应用程序跟踪过滤器的运行状况,并查看有关当前空气质量的读数;在净化器本身的正面还设有一个显示屏,以显示必要的数据。

Dyson Pure Cryptomic
2.0汽车通风系统设计
● 座椅通风
座椅通风并没有座椅加热普及,然而却是一个用户痛点,炎炎夏日,即使车内温度适宜,也难以避免背后被汗浸透。通风,顾名思义,是要让风穿过座椅,所以通风系统一般必须搭配在配置较高的真皮座椅上,并且座椅需要采用打孔工艺,才能便于风量的流通。但是座椅内部基本都是发泡的材质,通风性相对有限,所以需要在座椅的内部增加通风设备。

Audi A5 Cabriolet 座椅通风系统示意图
然而这种设计具有很严格的标准,除去对于人体工程学的考量更加复杂之外;会不会影响乘客的乘坐舒适性;在调节座位的位置时,是否会影响通风设备的正常工作;通风系统的是否耐用以及通风系统的有效程度,这些都是工程师需要考量的。而衡量通风系统的好坏,则主要取决于风扇的质量,以及产生的噪音是否对整车环境造成影响。这也是为什么座椅通风不能像座椅加热一样普及的原因。
人机交互X座椅通风
佛吉亚的智能座椅产品叫Active WellnessTM,作为第二代智能座椅,Active WellnessTM 2.0 在座椅的内部嵌入了非接触式传感器,来监测驾驶员和/或乘客的心跳和呼吸节奏,然后通过一种特殊的按摩模式及座椅通风系统提供新鲜气流,让疲倦的乘客精神焕发或帮助处于紧张状态的驾驶员放松下来。

Active WellnessTM 2.0

创新通风系统设计
Dr.Schneider 公司的 Climate+ 系列所设计的创新通风系统,诠释了未来汽车内部功能需求整体趋势:除了传统的功能,加热、制冷,更以舒适的通风系统为主要中心。展示了一个紧凑、智能和实用的汽车内部空间,除了通风和空气清洁功能,还可以通过散发香味创造舒适氛围。
触屏控制的卫星式出风口,只在使用者需要时才出现。无叶片出风口也通过传感器来控制,既可以点式,也可以宽幅式完美地融合在仪表板中。各种不同的出风模式,比如:新鲜海风模式,可以个性化地调节出风的方式。隐藏式出风口、缝隙出风口、柔性叶片、无噪音出风口、带有空气清洁功能的出风口和离子化空气芳香出风口。按照空气模式可以通过触屏、手势、摄像头或遥控对其进行控制。

隐藏式出风口

斜叶片式出风口

超薄出风口

触屏控制的卫星式出风口

家装风水
Fengshui Decor Tips
设计实验室
Design Lab
