新与旧 | New and old

新的店铺建设与一栋80年代的建筑物内,由于原建筑建造限制的问题市政不允许对该建筑的外观进行大量改造。但基于委托方项目题材的商业性的考量,我们将原建筑物窗洞以内进行改造,并将建筑‘外立面’内退。即在原建筑入口内退三米范围内进行一个跨越两层楼结构的‘峡谷’的创作。
▼街道视角,street view

▼门店外观,exterior view


▼主立面细部,facade detail



我们搜索了建造地区周围60-80年代的遗留或废弃材料,一种红色粘土砖。并将其通过一个异性峡谷的三维曲面当代化。在早晨10点与下午四点至六点间,阳光将通过原建筑的传统矩形窗洞投射进峡谷,弯曲的峡谷侧壁对光线进行微妙的贯穿,而内侧墙体的窗洞则使用更当代的分型与解构的方法进行切分,他们将引导光线进入店铺内部。
▼以红色粘土砖构建的三维曲面,形成一个峡谷般的空间, the abandoned red clay brick material was modernized by building a three-dimensional distinctive canyon



▼阳光通过原建筑的传统矩形窗洞投射进峡谷,the sunlight passing through the traditional rectangular window of the original building

▼“峡谷”角落,a corner of the canyon

继承与矛盾 | Inherit and Contradict
今天,我们的城市面临大量的旧建筑改造,它除了是一个建筑学课题之外,同样在商业上带来有趣的碰撞。我们希望这种碰撞本身产生的能量吸引消费者更理性的观察旧的与新的。并理解其中的继承与矛盾。而事实上,这里的峡谷几乎成为当地年轻人的新地标,他们非常乐于在这里通过摄影表现自己。
▼仰视“峡谷”,the gap of the canyon

▼峡谷顶上悬挂着十米高的灯具,a 10-metre-high lumination fixture hanging from the ceiling of the canyon

▼光影细节,light and shadow



时尚与废墟 | Fashion and abandoned
在峡谷内,我们创作了十米高的灯具,它吸引人们的视线向上的同时对位于二楼的商业空间进行一个提示。发光的端部强调我们对这个项目进行的一个艺术创作:废墟。我们将该店铺的部分商品进行了水泥与丙烯颜料的混合物的加工,柔软新鲜的时尚产品被斑驳感覆盖和硬化后有了另一种语境,事实上,除了‘废墟’的既视感之外,它亦指向‘时间’。这是我们在建筑与纯艺术的结合方面的一次成功的商业尝试。
▼交通空间,circulation area

▼二层商业空间,the second floor

▼柜台区域,counter area

▼主展示空间,main exhibition area



▼主楼梯,main stair



▼从楼梯上俯视主厅,the exhibition area seen from the stair

▼室内细部,interior detailed view



▼红砖与金属材料和玻璃的碰撞,a contrast among the red brick, metal and glass



▼首层平面图,ground floor plan

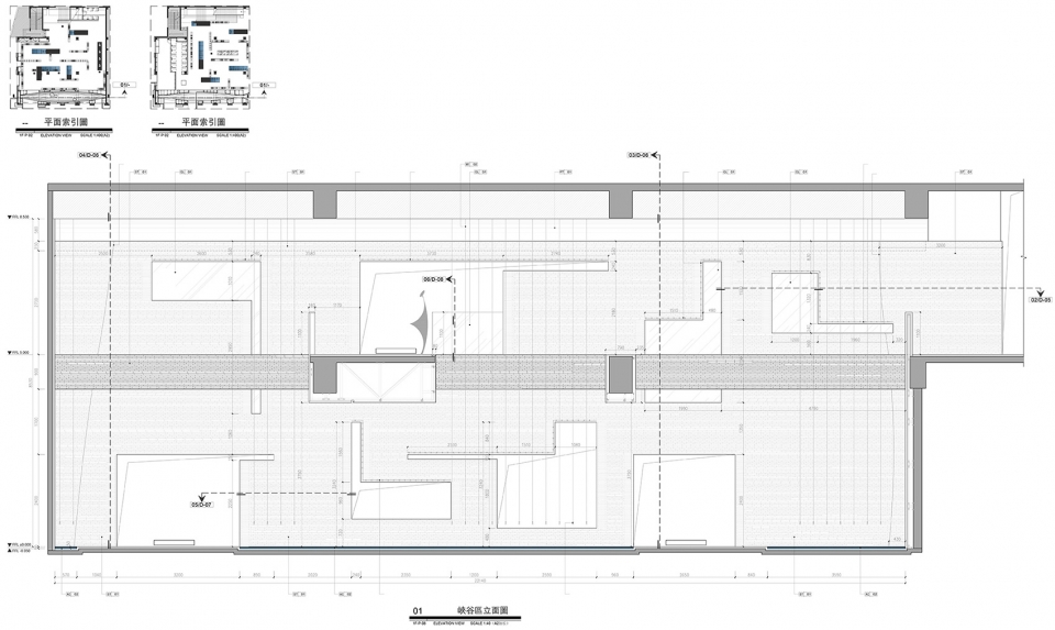
▼峡谷区立面图,elevation of the canyon area

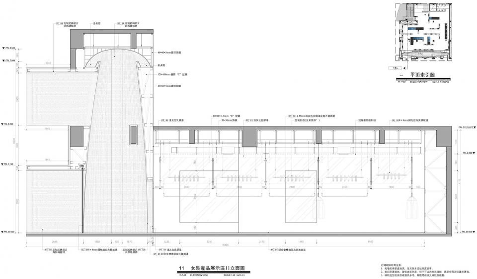
▼展示区立面图,elevation of the exhibition area

Name | 项目名称
URBAN REVIVO Canyon | UR华师旗舰店 – 峡谷
Area | 项目面积
1500㎡
Location | 项目地点
Shanghai , China |中国上海
Client | 项目业主
URBAN REVIVO | UR
Architectural Design | 建筑设计
Ann Yu 余霖 | DOMANI 东仓建设
Interior Design | 室内设计
Ann Yu 余霖 | DOMANI 东仓建设
Installation & Exhibition | 装置与陈列
Ann Yu 余霖 | Ann & Vincent 桉和韦森
Construction Side | 施工单位
上海焕佳装饰工程有限公司