四川南充杜家欧式别墅

建设地点:四川南充;图纸编号:917;尺寸:面宽 10.0米 进深 9.5米;建筑面积167.0㎡

△总平面示意图

△一层平面图

△二层平面图

△东立面图

△西立面图

△南立面图

△北立面图
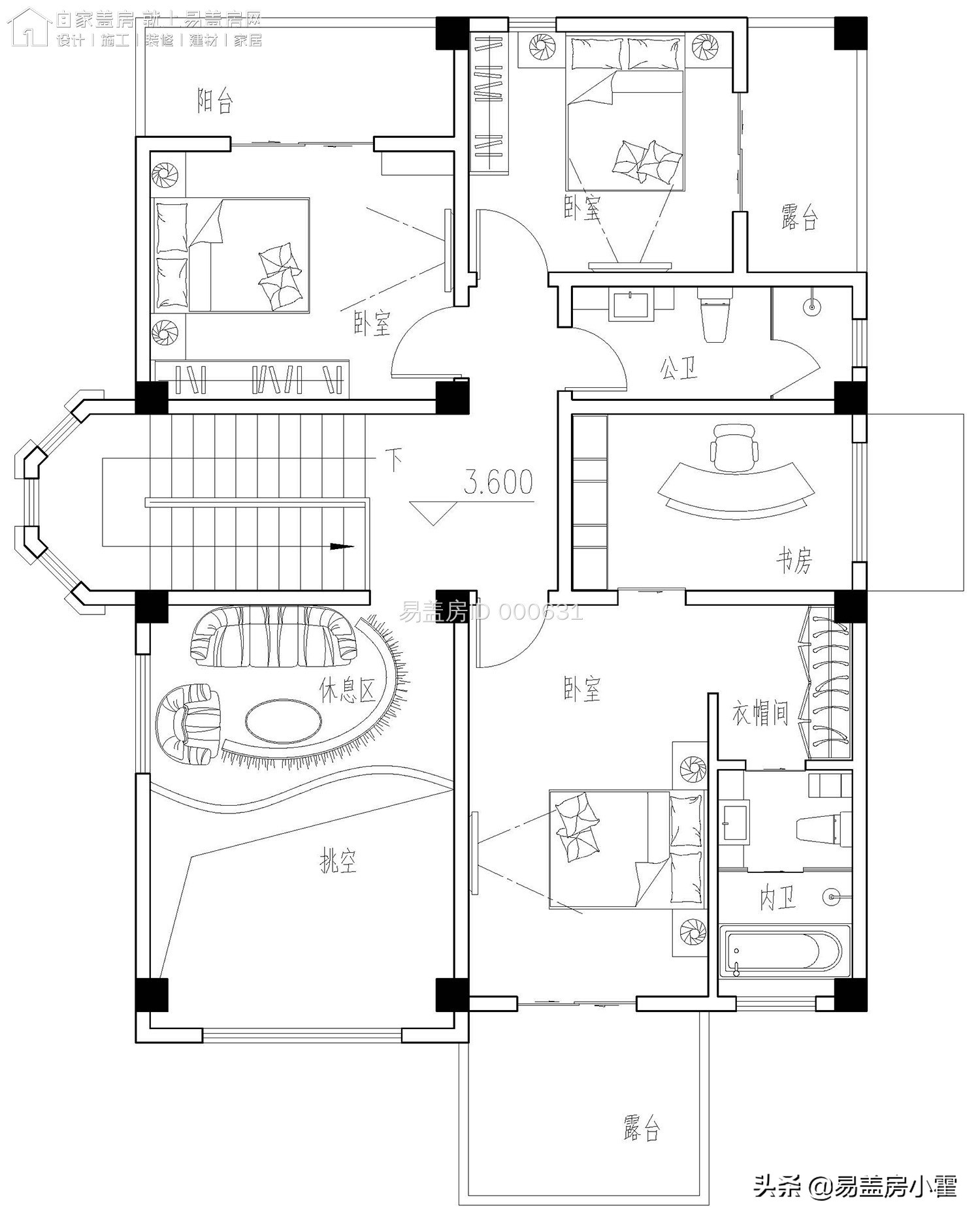
江西上饶陈家欧式别墅

建设地点:江西上饶;图纸编号631;尺寸:面宽 9.0米 进深 12.7米;建筑面积:234.0㎡

△总平面示意图

△地下一层平面图

△一层平面图

△二层平面图

△东立面图

△西立面图

△南立面图

△北立面图
四川南充刘家欧式别墅

建设地点:四川南充;图纸编号:1434;尺寸:面宽 10.7米 进深 11.0米;建筑面积:223.0㎡

△总平面示意图(左上角为北)

△一层平面图(左上角为北)

△二层平面图(左上角为北)

△东南立面图

△西北立面图

△西南立面图

△东北立面图
安徽安庆聂家欧式别墅

建设地点:安徽安庆;图纸编号:1307;尺寸:面宽 11.0米 进深 12.6米;建筑面积:266.0㎡

△总平面示意图

△一层平面图

△二层平面图

△东立面图

△西立面图

△南立面图

△北立面图
陕西渭南龙家欧式别墅

建设地点:陕西渭南;图纸编号:1349;尺寸:面宽 11.0米 进深 14.0米;建筑面积:341.0㎡

△总平面示意图

△一层平面图

△二层平面图

△东立面图

△西立面图

△南立面图

△北立面图
北京顺义龙湾屯李家欧式别墅

建设地点:北京顺义;图纸编号:464;尺寸:面宽 11.0米 进深 10.0米;建筑面积:192.0㎡

△总平面示意图

△一层平面图

△二层平面图

△东立面图

△西立面图

△南立面图

△北立面图
广西贵港黄家欧式别墅

建设地点:广西贵港;图纸编号:1692;尺寸:面宽 10.0米 进深 14.2米;建筑面积:240.0㎡

△总平面示意图(左侧为北)

△一层平面图(左侧为北)

△二层平面图(左侧为北)

△东立面图

△西立面图

△南立面图

△北立面图
湖南衡阳文家欧式别墅

建设地点:湖南衡阳;图纸编号:590;尺寸:面宽 10.0米 进深 10.1米;建筑面积:186.0㎡

△总平面示意图

△一层平面图

△二层平面图

△东立面图

△西立面图

△南立面图

△北立面图
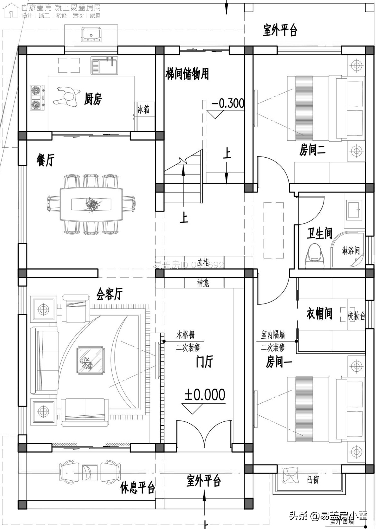
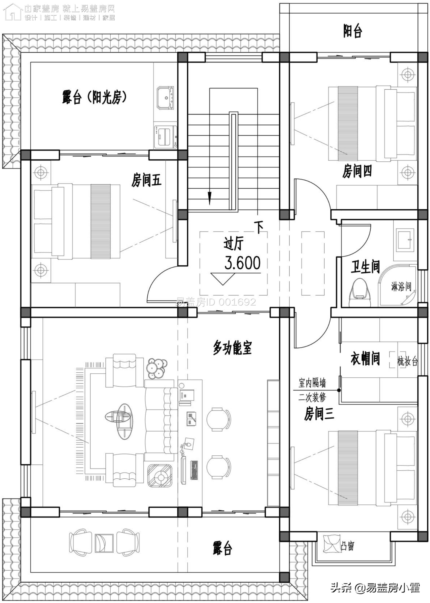
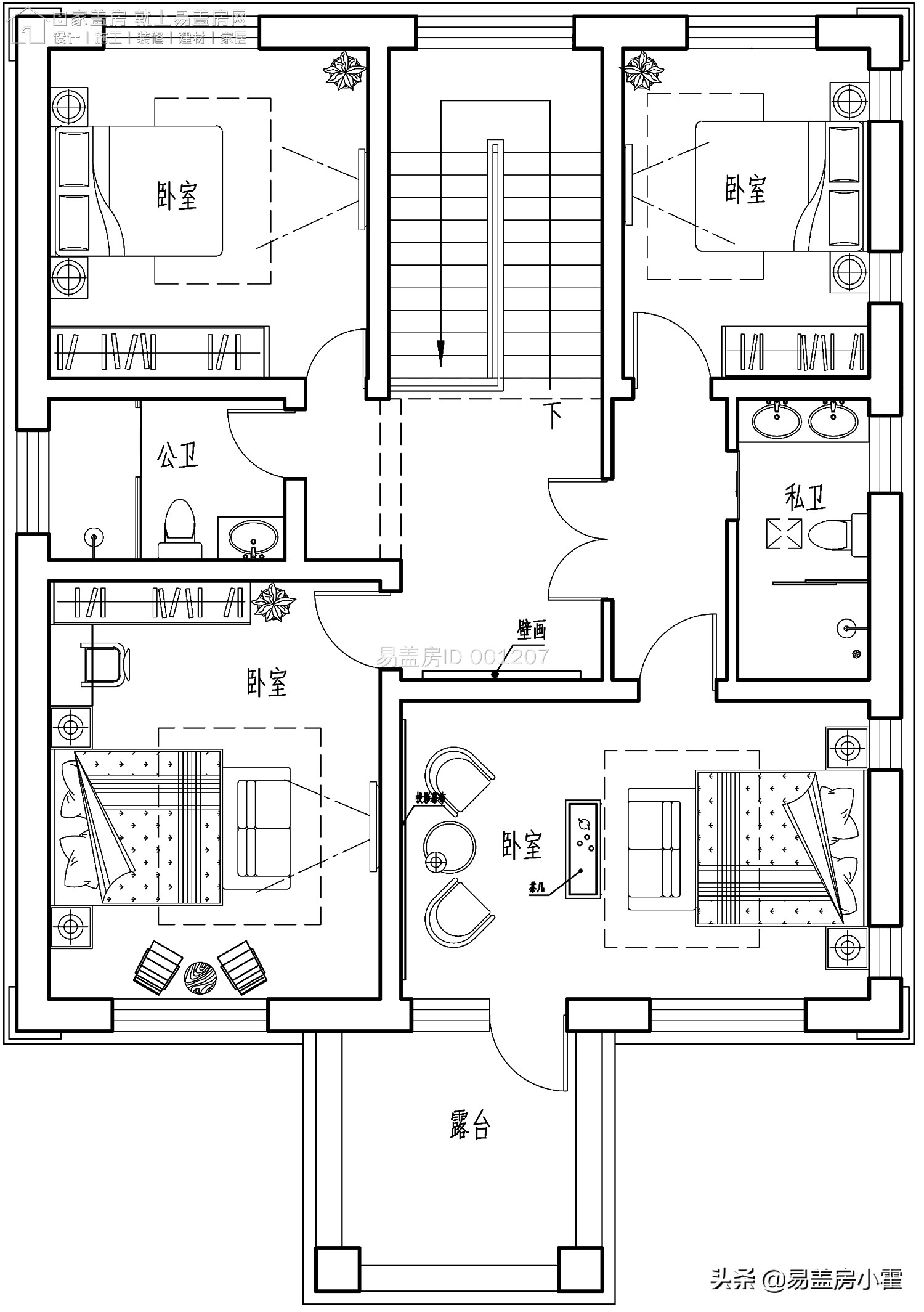
北京密云钱家欧式别墅

建设地点:北京密云;图纸编号:1207;尺寸:面宽 10.2米 进深 13.4米;建筑面积:257.0㎡

△总平面示意图

△一层平面图

△二层平面图

△东立面图

△西立面图

△南立面图

△北立面图
安徽宿州许家欧式别墅

建设地点:安徽宿州;图纸编号:1072;尺寸:面宽 9.5米 进深 12.8米;建筑面积:197.0㎡

△总平面示意图(右方为北)

△一层平面图

△二层平面图

△东立面图

△西立面图

△南立面图

△北立面图
北京延庆黄家欧式宅院

建设地点:北京延庆;图纸编号:1110;尺寸:面宽 10.1米 进深 14.0米;建筑面积:301.0㎡

△总平面示意图

△一层平面图

△二层平面图

△东立面图

△西立面图

△南立面图

△北立面图