年底终于收楼了,仿佛看到新家在招手。不忍心告诉你接下来装修还有九九八十一难!这第一难就是两个字“图纸”。当设计师拿着一叠纸来找我,仿佛看到了数学的最后一道大题。今天搭窝君就和大家说说装修图纸怎么看,这篇《图纸小白教程》请拿好!

图纸与装修,就好像是一场战争的战略纲要。它的每一个细节都关系到后期家的质量和白花花的银子,而且图纸也最能反映设计师的专业程度。虽然上面密密麻麻的数字和符号确实让人头痛,但我们能看懂图纸就相当于半个设计师。后期装修,我们就有底气和装修队和设计师沟通,提出自己的建议,而不是一味被牵着走。
在看图之前,我们先来了解一下,装修图纸到底有哪些?最基本的也最关键的图纸有:原始建筑测量图、装饰设计平面图、天花吊顶布置图、地面材质图、配电图、给水走向图。
虽然图纸很多,但是知道我们明确“看什么”“怎么看”,掌握原则,图纸也不是非常困难。
下面我们先来看看:
总体的四个基本原则,再分图了解。

1、看清比例和尺寸
很多情况下,效果图和现场之所以会变成买家秀与卖家秀,是因为设计师没有按照实际户型尺寸来做效果图,所以大家要首先检查施工图与效果图的空间比例是否一致。
2、看材料选择是否清晰
其实不仅报价单,施工图图最好也能标注主要材料名称,这样有利今后施工。
3、看制作工艺是否标注 这点和材料类似,也是为了便于施工,同时还能约束施工人员在施工过程中偷工减料的行为。
4、看是否符合人体工学
这点在平面布置中非常重要,吊顶和地面的高度、家具摆放的位置等等都会影响到生活的舒适程度。
下面我们先来看看:
这6个图各自的重点都是什么。
1、原始建筑测量图,一切装修的基础
原始建筑测量图,和名字一样反映的是房子最原始的状态。
原始建筑测量图是一切设计图纸的基础,一般由设计师带队去现场测量。如果测量图纸出现偏差,此后的设计图纸和施工都会因此出现误差,因此要重视原始建筑测量图的制作。

原始建筑测量图包括:
①房间的具体尺寸、墙体厚度、层高;
②房间梁柱位置尺寸、门窗洞口的尺寸位置;
③各项管井(上下水、煤气管道、空调暖管、进户电源)的位置、功能、尺寸等项目。
我们在看原始建筑图时,主要注意下面的部分:
①承重墙(图中深色部分),这个后期如果有拆墙需求,一定不能动!
②强弱电箱等各种设备的原始位置,主要用于后期和装修公司确实是否有移位(移位一般会多收钱)

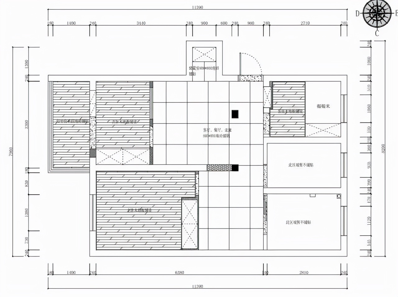
2、 平面布置图,是设计的重中之重
平面布置图一般就比较好懂,我们和设计师沟通的各种需求都应该体现在这张图上。如果平面布置图做得好,我们后期生活会非常舒服。

平面布置图包括:
①墙体定位尺寸,在结构柱、门窗处应注明宽度尺寸;
②房间名称要注全称,如客厅、餐厅、主卧等;
③室内、外地面标高、墙体厚度应注明;
④如有楼梯,标明平面位置的安排、上下方向示意及梯级计算;
⑤门的开启方向;活动家具布置及盆景、雕塑、工艺品等的配置。
我们在看原始建筑图时,主要注意关注我们和设计师沟通的需求是否被满足:比如卫生间干湿分离、收纳空间是否充足、儿童成长因素是否考虑等等。

类似的楼梯收纳需要提前规划
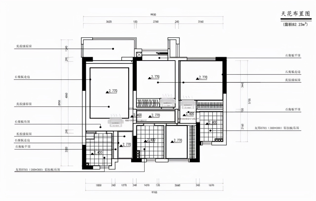
3、 天花吊顶布置图是最重要的图
天花吊顶可以说是最重要的一张图了,这和家里的窗帘、灯、空调等众多关键息息相关。

合格的天花吊顶布置图应该具备:
①天花造型的尺寸定位、灯具位置及详图索引。
②标注天花底面相对于本层地面建筑面层的高度,同时还要注意使用材质。
为什么说这张图重要,是因为它会影响灯、空调等的位置和尺寸。如果你准备安装中央空调,那么一定要提前确定尺寸,否则后期可能空调内机根本放不进去。
4、 地面材质图,地板就靠它了
关于天花板的一切看上面的图,关于地板的一切就要看地面材质图了。地面材质图还可以结合预算清单来核对工程量,看装修公司收费是否合理。

它要求标明:
①需要铺设的地面材料种类;
②地面拼花、材料尺寸及不同材料分界线。
③标注地面高低差,一般阳台、厨卫都需要落差1-2公分防止水外流。比如上面的图就没有说明卫生间到底如何铺贴,结合我们的看图原则,这里最好说明铺贴材质、品牌和工艺哦。
5、 强弱电布置图,诶,请问插座够吗
强弱电布置图是设计图纸中十分重要的一部分,包括了居室内部所有强电和弱电的布置。

平面布置图包括:
①强弱电的分布结构;
②所有开关的位置以及相对应的电器和灯源。 对于强弱电分布图,我们主要检查插座的位置和数量:
①数量要足(可别后期要无数个拖家带口的插线板加持);
②布局要高效,物尽其用;
③具体点位要合理,可别被大型家具不偏不倚正好挡住。如果不提前确定好,就会出现下面这个人间惨剧...

6、 给水走向图,简单却有用
给水走向图就比较简单了,主要是关于厨房、卫生间给排水的布置图。

给水走向图包括:
①给排水线路;
②给水管道的管径尺寸;
③管线排布;
④取水位置和高度。
在水走向图,我们主要关注是否是按照左热右冷来布置,否则后期使用真的反人类。
另外,如果水管经过客厅,需要看看水管是否在吊顶内,除非家里是工业风,不然真的非常丑。

结语: 图纸,是用另一种语言表述空间的方式。今天内容就分享到这里,欢迎各位业主朋友在下方留言互动。