01
# 捷克Větrník幼儿园 #


△ 建筑室内外实景 ©Filip Šlapal
项目所在的捷克日恰尼市需要建设一所新的幼儿园,该幼儿园需要将运动作为重点并容纳一座体育馆,其将是Říčany-Větrník地区新开发规划的一部分。在这个项目中,我们设计了幼儿园、体育馆、花园,并将这三者连接到一起。幼儿园和花园现已落成,而体育馆还有待建设。


△ 建筑远景 ©Filip Šlapal
首先,我们以儿童作为对象进行了深入探究:
什么构成了童年?童年经历不仅来源于在家庭中与家人的相处、操场上与伙伴的嬉戏,还源自孩子们所遇见的物件,以及将他们纳入社会系统的教育机构。
孩子们有什么样的身体能力?随着他们逐渐长大,身体将失去哪些特质?我们从世界各地的非传统托儿所中找了许多参考案例。一般而言,社会体系旨在将其中的孩子规训成“得体的、没有问题的”成员,而现在我们能注意到,替代性教育(alternative education,或称理念教育)正在蓬勃发展。教育这件事,除了是国家的重要议题,对于个人而言也代表一个重要的阶段。在我们的“文明世界”中,我们时时讨论经济增长情况,但对教育的细节、对童年的神秘作用却谈及得不够。

△ 建筑鸟瞰 ©Filip Šlapal



△ 建筑外观 ©Filip Šlapal
与之形成对比的是,日恰尼镇当局从项目一开始就表现出了胆略和胸怀。在方案定形之前,我们与教师、体育俱乐部和日恰尼镇政府管理层进行了多次会谈,在其中我们感受到了大家的热情。
与孩子们本身相关的方面,是项目至关重要的聚焦点——他们的游戏、行动、视野和尺度,常常具有自发、无序、不可预测的特点,体现出他们的单纯、好奇、乐天和未经苦难的无忧无虑。


△ 室内 ©Filip Šlapal
我们将整个建筑体量划分为多个部分,其中的一个立方体容纳了设施、办公室、入口等等一切跟幼儿园实际运转相关的部分,接着将各教室单体与立方体相连。这些教室不再是矩形而是充满乐趣的不规则形式,与花园相联系,孩子们于其中自在玩耍。


△ 室内 ©Filip Šlapal
数个“宝塔”于外构成了房子的轮廓,于内塑造了空间。宝塔内部是藏身的秘密之地,如印第安帐篷。在这里,光线从三角窗中落入,显眼的木支撑结构像树枝一般。入口中庭处有一个“蛛网”,这是一个室内的绳编中心区,该游乐区可以从任何教室抵达。



△ 室内中庭 ©Filip Šlapal
我们期待孩子们使用这个“蛛网”,在上面摇摆、腾空。这些网由空间中受人瞩目的树干承载着。中庭也是一个社群共享空间,人们可以在此歌唱、表演、欣赏展览和戏剧。


△ 中庭的网为空间增添了趣味 ©Filip Šlapal
幼儿园具有不同的两面:面对街道一侧,它的形象方正规整;而在花园一侧,建筑形体和颜色变化丰富、充满趣味。它不像传统的房屋一样布置功能,而是像被摇晃过一样,各种功能的边界被打破,空间被打开,使阳光穿透进来。
主入口设在沿街一侧,地面层有两个教室,楼上也有两个。幼儿园街道立面的一部分被设计成垂直绿化,我们希望这些植物能够蔓延、堆叠起来,将整个立面淹没。在设计入口时,我们将其假想为一座神秘寺庙或一艘宇宙飞船的入口。对于技术设备的安排布置,我们将其做成了部分可视的,这样能方便孩子们感知到水流、电力和空气的流动运送方向。建筑内外的色彩欢快活泼,点亮周围的环境。

△ 建筑入口立面 ©Filip Šlapal

△ 建筑入口 ©Filip Šlapal
房子后面有一个操场,不过它目前还没有完工,为部分完成状态。在这里,我们同样希望创造一个童书中描述的绿色幻想世界。
由于建设过程经历了一定的财政压力,我们无法自由地按照自己的想法实现所有的设计,但最终的成果也是我们所坚持的工作标准之体现。
我们想为儿童建造一个非机构属性导向的、富有趣味的、促进创造力以及其他所有可贵特性发展的场所,一个潜移默化地影响儿童、让他们成年后回想到的时候还能获得启发的地方。

△ 建筑外观与户外空间 ©Filip Šlapal


△ 建筑夜景 ©Filip Šlapal

△ 建筑及周边环境鸟瞰 ©Filip Šlapal
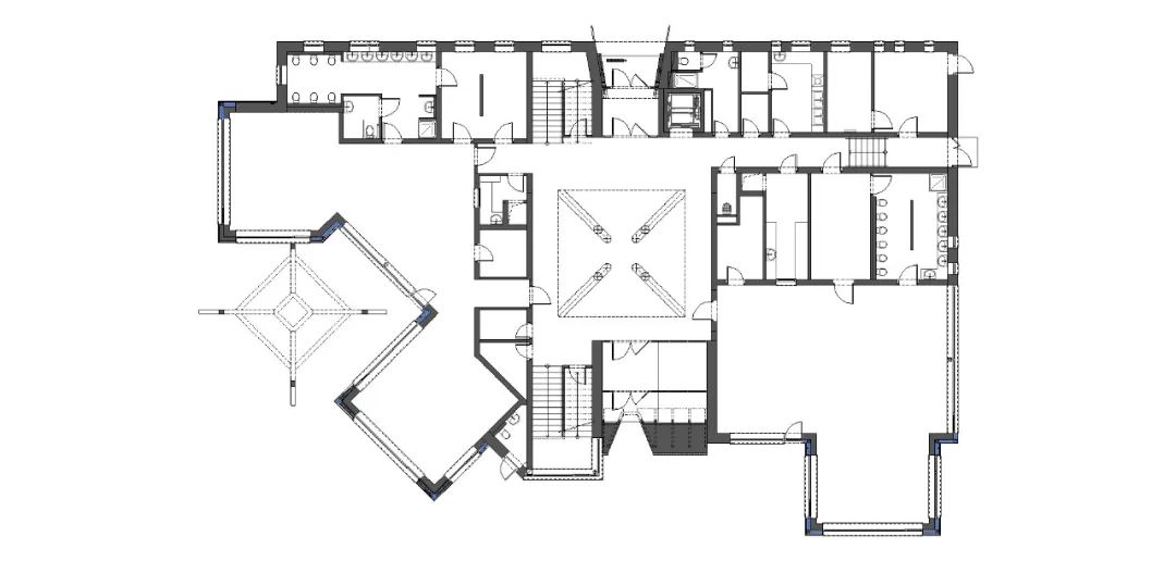
设计图纸 ▽

△ 地面层平面图 ©Architektura

△ 一层平面图 ©Architektura

△ 西立面图 ©Architektura

△ 南立面图 ©Architektura

△ 东立面图 ©Architektura

△ 北立面图 ©Architektura

△ 剖面图 ©Architektura

△ 剖面图 ©Architektura
02
# 日本RJ 幼儿园造 #

这是一座基于“培养想象力和乡情”的理念、为 135 个孩子新建的幼儿园。在过去,委托人的寺庙与当地人很亲密,孩子也更受他们照顾。寺庙不仅可以祈祷,还可以用于逛街、散步、观赏帐篷下的表演,成为邻里之间聚会和享受美好时光的地方。孩子们也在那里玩耍,与当地人进行良好的交流,培养他们对家乡的热爱。但时过境迁,这种良好的关系逐渐淡化。






正如英语中“Manabu”一词的意思是“学习”,而“Maneru”的意思是“模仿”,儿童通过模仿成年人在日常生活中的行为来学习和成长。见到长辈,学习如何玩耍和控制自己的身体;见到父母,学习礼仪;见到当地人,学习文化。 这就是儿童发展其社交技能的方式。




这个项目中,操场沿着寺庙入口前方规划,这样孩子们可以有更多的交流以培养他们的沟通能力。面向寺庙的房间设有大型窗户,孩子们可以通过看到当地人如何做礼拜和迎接游客。

此外,二楼的幼儿房与三楼的婴儿室通过攀爬网连接,增加了不同年龄段之间的交流。晚辈在仰慕长辈的过程中成长,同时长辈通过照顾晚辈而意识自己是大人。

铜粉被用作装饰材料和标志,展示了日本传统风格和寺庙的精髓。这种随时间老化的材料能让孩子们感到好奇并激发他们的好奇心。此外,大型百叶窗可让孩子们有机会感受自然界的变化,如雨、阳光、阴影和风,从而培养他们丰富的思维方式。通过这些方式,这个幼儿园是他们在享受季节和时间变化的同时培养丰富思维方式的学习场所。

03
# 圣乌昂迪蒂勒幼儿园 #

新学校位于圣乌昂迪蒂勒的市中心,毗邻市政厅和多功能厅。设备设置占据了整个地块的宽度,与“Rue de l'Eglise”街道平行。这种布局使儿童的生活空间不受外部视线的影响,同时向操场和种植区开放,为用户提供与自然有关的生活和教学场所。


双坡屋顶与周围的郊区房屋相似。该项目兼具了舒适性和建筑实用性,用集成木制家具和轻型交叉走廊。除了生物气候反射外,“冬季花园”庭院还为项目的中心带来了光照和活力。另一方面,我们可以看到,本着对生态负责的理念使用天然材料(木框架、木丝绝缘材料、fermacell 天然石灰灰泥、云杉木板的内部涂料等)。


位于建筑中心的树脂庭院是一个生活和聚会场所,为幼儿提供了许多不同的用途。它还具有生物气候作用,利用冬季的温室效应,学校被动供暖,夏季保障自然通风。


学校提供一个照明主走廊。除了交叉灯,室内露台还为建筑带来了更多的光线和自然景观。


合适的木制家具除了具有真正的功能用途(座椅、钉子、储物……)外,还为孩子们创造了一个安静温暖的学习场所。

