1、标准模数齿条加工
材质:A3冷拉型材
数量:1000条
不用热处理,但外观做喷砂处理(去毛油污和毛刺)
地址:成都市

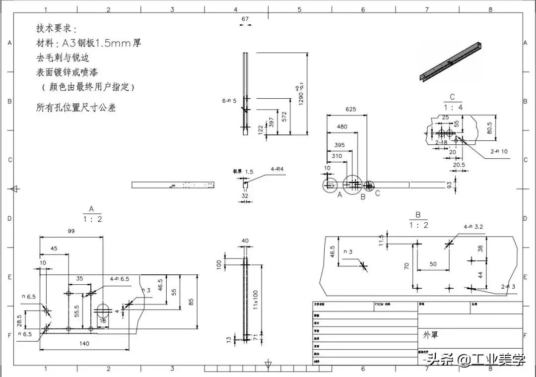
2、钣金加工零部件
钣金折弯件
产品数量:100件
地址:武汉市

3、不锈钢管或着碳钢管零件加工
有3种不锈钢管零件或者碳钢管零件,不锈钢是304的,碳钢Q195B的,焊管就可以
产品数量:9000件
地址:上海市

4、车加工支撑方块
产品数量:10000件
地址:浙江台州市

5、机加工
产品数量:50万PCS
地址:宁波市

如有条件协助加工的朋友,请私信小编,发送“外协”获取联系相应客户的方式。
本期外协加工信息由OK智能制造整理,小编Vx:MachineNKI