
5月25日早上9点,“筑梦池州 辉煌盛启”中梁控股集团安徽区域池州中梁·印江南项目城市展厅开放活动拉开了大幕。城市展厅位于原池州中梁壹号院营销中心,集团领导、新闻媒体、业主代表,以及众多池州市民,共同见证了这场池州人居盛典。

万众期待 领热池州

早上8点,距离活动正式开始还有一个半小时,城市展厅已经是人山人海,场面异常火爆。人群中有不少中梁壹号院的老业主,看的出来他们对展厅开放期待已久,毕竟作为老业主,他们对中梁怀有更多的信任和期待。随着活动时间的临近,人气越来越高涨,气氛越来越热烈。
9:28,一场激动人心的鼓舞表演,拉开了活动的序幕,随后,主持人登场,宣布活动正式开始。现场的来宾都怀着对中梁的期待,这次的城市展厅开放让人盼望已久,也让中梁真切的感受到了客户的这份热情。

庄重宣告 舞狮揭匾
随后,中梁控股集团安徽区域公司江南事业部总经理黄总登场,为城市展厅开放致欢迎辞,黄总对所有光临展厅开放活动现场的来宾表示感谢,同时也介绍了中梁的品牌发展历程,和中梁·印江南的项目信息和愿景,让所有来宾对中梁·印江南有了更深的理解和更多的期待。

两只骄傲的雄狮,是揭开城市展厅牌匾的大使,中梁控股集团安徽区域公司市场营销部总经理李总和中梁控股集团安徽区域公司江南事业部总经理黄总为雄狮提笔点睛,随后,它们为现场的所有人献上了精彩的舞狮表演,狮呈吉祥,舞耀盛事!长杆之上,登顶采青。只见雄狮分列牌匾,共同武威的揭开大幕,中梁·印江南几个大字,瞬间展现在观众的眼前,城市展厅的大门缓缓打开,来宾们迫不及待的涌入展厅,开始参观。


匠心呈现 盛境首开
迈入城市展厅,一阵古典与现代交融的气息扑面而来。首先映入眼帘的,是一座巨大的项目鸟瞰图,把印江南未来的形象展现在众人的眼前,改造一新的景观墙、巨型落地灯箱,让来宾们看的心潮澎湃。除了布置一新的现场,更有三轮抽奖活动助阵,华为P30手机、小米58寸电视、ipadmini等幸运大奖被抽出,还有百份专门定制的高端笔墨礼盒,近千张电影票,都在这一天,被倾情赠送给了现场来宾。


四座小沙盘,展示了四种优质户型。颇具江南风韵的景观墙、门前耀眼的亮化树,今天印江南城市展厅展现出的一切,让来宾们看的心潮澎湃,纷纷询问起项目何时将会开盘,甚至聊到了拿房之后的装修,对未来的期盼之情溢于言表。

主城之上 政务核芯
中梁·印江南项目是中梁控股集团以中梁·壹号院首入池州,开启池州品质豪宅篇章之后,于主城政务芯上倾力打造的全新迭代升级产品。将以焕新池州主城区人居品质为目标,打造一流的高端豪宅。选址于主城区政务核芯地块,北至沿江路、与秋浦河相邻;东至九华山大道,西临城四路,南临石台路。

居于城市发展主脉,菁英人物往来荟萃。精英圈层呼之欲出。主城区为数不多的稀缺领土,期待城市菁英的到来。
项目周边配套资源丰富,拥有商之都,永辉超市,人民医院等生活、娱乐、健康配套。学府汇聚,自建幼儿园、贵池区城关小学秋浦分校、池州市第十中学等池州优质学府环伺。 自然环境优美,紧邻在建中滨江公园,平天湖国家湿地公园,鲜氧生活轻松拥有。
总占地面积近10万平米,规划总建筑面积近19万平米,拥有容积率低至1.6的别墅级低密度,高达38%的绿地率和精心打造的社区园林景观,未来将给业主带来公园式的居住体验。户型三、四开间朝南,让阳光成为家中的常客。约1.8米进深,7米宽南向阔景大阳台,尽揽人生风景。打造出动静分区,南北通透,全龄乐享的舒惬空间。
中梁控股集团旗下
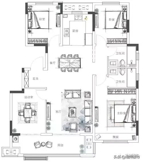
优质户型鉴赏
1·建筑面积约99㎡,三室两厅一厨一卫

三开间朝南,客厅、卧室连南向大阳台
采光优渥
主卧与儿童房分而不离,便捷照顾孩子生活
主卧配带衣帽间,自带飘窗,采光性强
客厅超大背景墙,舒适居家视觉
2·建筑面积约109㎡,三室两厅一厨两卫

动静分区,尽享安逸生活
双开间超宽阳台,揽风景入目、拥阳光入怀
南北通透,空间利用率高,拒绝浪费面积
U型厨房,与餐厅相连,料理美味便利自如
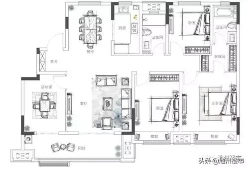
3·建筑面积约126㎡,四室两厅一厨两卫

三开间朝南,约7.3米观景大阳台
尽纳阳光入室
户型方正,无浪费空间,得房率高
U型厨房,餐厨一体,便捷享受饕餮美食
动静分离,厨房、洗手间均配置明窗
光线充足
4·建筑面积约118㎡户型,三室两厅一厨两卫

动静分明空间,舒适格局,各自安好
主、次卧、客厅三开间朝南
采光观景浪漫盈然
南北通透,约7米阔景阳台
把阳光和风引入居室
主卧带衣帽间,方便收纳,保证私密
5·建筑面积约138㎡户型,四室两厅一厨两卫

四开间朝南,南北通透,全明极致四房
约7.5米双景观阳台
迎清风入室,拥阳光满屋
朝南主次卧配观景大飘窗
套房式主卧私密尽享
厨房餐厅紧密相连,远离卧室
交通动线分布合理
城市展厅已盛大开放,恭迎品鉴

展厅地址:原中梁·壹号院营销中心(三台山公园对面)
项目电话:0566-8911111
本户型图仅作为室内家居效果示意图;相同户型单位因楼栋、楼层、单元等差别,局部结构、面积等可能不同,以上告仅为要约邀请,图片及文字等仅供参考,所有细节最终以政府批文为准。买卖双方的权利义务以最终签署的《商品房买卖合同》为准!