近日,苏州嘉盛&高铁新城国资(苏地2022-WG-70号)项目规划方案批前公示。
该地块是在2022年12月5日苏州市区第五批次土拍竞得,总价11.59亿元,楼面价14897元/m²,溢价率0,地块性质为城镇住宅用地、零售商业用地、餐饮用地、旅馆用地。

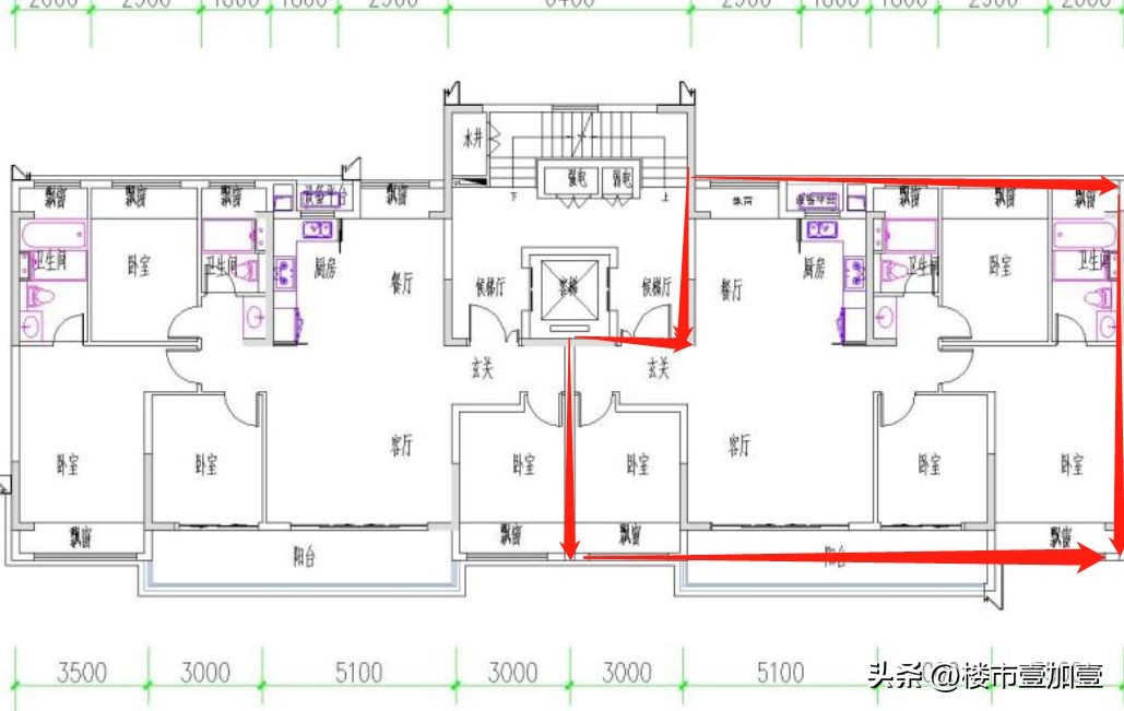
据规划公示可知,该项目由洋房+高层组合,规划11栋住宅,其中打造8幢10F洋房、1幢24F和2幢26F高层,东南角配建商业。

小区主出入口设置在南侧马泾路上,东侧五村里路设置配套次出入口。

从公示图可看出,主力4种户型,分别为建面约103m²的3房2厅2卫、118m²的3房2厅2卫、143m²的4房2厅2卫、168m²的4房2厅3卫的产品。
下面来看一下每一种户型的房间布局:
103m²的3房2厅2卫
该户型主要分布在3栋高层,2梯4户布局,103m²为中间户型,北侧由连廊相连接,产品为三开间朝南,双阳台设计,基本可以满足刚改的需求。

118m²的3房2厅2卫
该户型主要分布在3栋高层,2梯4户布局,118m²为东西边户户型,整体通透性要比中间户的103m²要好。同样该户型也是打造三开间朝南,双阳台设计,对于刚改要求高一些的,可选择此户型。

143m²的4房2厅2卫
该户型主要分布在洋房,1梯2户布局,四开间朝南,双阳台设计,南北通透。对于改善可做首选。

168m²的4房2厅3卫
该户型主要分布在洋房,1梯2户布局,四开间朝南,双阳台设计,并且做到3卫的格局,5.5米的大宽厅。对于生活有要求的改善客群可做首选。

据小道信息称,本次70号高铁新城地块由象屿负责操盘。象屿目前苏州市区在操的项目就是位于园区斜塘的天悦东方,整体去化还可以。至于该宗地块,是否由象屿操盘,以及价格如何,装标如何,还是比较期待的。