对于面临装修的人来说,如果对房子的布局不是很满意,那装修的第一步就会涉及到敲墙、砌墙以及隔断等步骤。毕竟,网上有那么多“敲墙后空间通透,房子大了N倍”的成功案例~

但敲墙虽好,却不是所有墙都能敲的!尤其有些墙是承重墙,千万不能乱敲,敲了很容易出问题,到时追悔莫及……


建筑中的承重墙分有很多种。广义上来讲,所有受力的墙都叫做承重墙。如果要细分,承重墙又可以按受力方向分为承重墙、剪力墙和配重墙3种。它们分别承受纵向力、水平力以及侧面力!
上述这些墙,还有屋子里的梁在装修过程中都是不允许拆改的!如果装修遇到的话,只能绕道而行……那么,该如何分辨家中的承重墙呢?

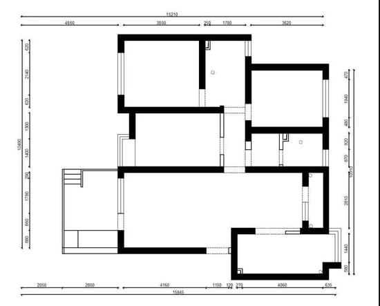
其实很简单,最快的方法就是看户型图。
房屋户型图中,标注为黑色的墙体都是承重墙,标注为白色部分的墙体为非承重墙,非承重墙可以改造拆除,对房屋建筑基本不会有影响。

楼房竣工,原设计单位会给物业留份图纸。
图纸上对承重墙、非承重墙等各种墙体的厚度和材质等都会标明清楚,具体信息可以咨询房屋设计单位或物业。

硬隔断
说完了敲墙问题,我们再回归隔断。提起隔断,大部分人的第一反应就是在砌墙。实际上,隔断又分为软隔断和硬隔断两种,下面我们先来讲讲硬隔断:

硬隔断,说白了就是一堵不会动的墙。
硬隔断可以完全分隔空间,既能在一定程度上优化空间布局,又能在一定程度上起到隔音、遮挡视线的作用。室内隔墙常见的材质有轻质砖墙和轻钢龙骨石膏板两种:

轻薄之选:石膏隔墙
石膏板主要是以建筑石膏为原料制作而成的一种材料。它的优点是很轻薄,比普通砖墙节省空间,且价格便宜,工程时间也短。
缺点也明显,就是隔音较差,不宜挂重物。

石膏板隔墙是用轻钢龙骨打基架。
一般石膏板的厚度在9.5-15mm之间,但每平方米自重只有6-12Kg。用两张纸面石膏板覆在轻钢龙骨上能就形成隔墙!

隔音之选:砌砖墙
砌砖墙最常见的材料是轻质砖。轻质砖也叫发泡转,正常室内的隔墙都是用这种砖。它不会增加楼面负重,而隔音效果又不错,实为红砖和石膏板的替代之选。

不过,既然是一堵不会动的墙,那么,灵活性自然就会差一些。一旦确定好了,就很难再更改!所以,在设计时请务必先想好,你想要隔哪儿以及怎么隔??
软隔断
随着房价上升,小户型变得愈发紧俏起来。然而,小户型本就空间有限,如果非要用墙做硬隔断,房子会显得更加狭窄……这时候,软隔断也就应运而生啦!

所谓软隔断,就是能起到隔而不断的效果。它能在不破坏空间延续性的前提下,起到分割空间的作用~我们平日里常见的软隔断有:窗帘、玻璃、屏风、植物、地毯、柜子、书架和开放式厨房等:

储物之选:各种柜子、其他家具
小户型储物空间不足?隔断的时候做个柜子,在分割空间的同时,还能轻松储物!这个方法在玄关、客厅和餐厅的运用较为广泛。对于一眼望穿的户型来说,绝对是储物、隐私、美观3方面兼顾的好办法:

因为家具更加灵活而且方便移动,所以在核心区域,时常充当隔断。自带功能的同时既打破固有格局,又能使环境变化,实现空间交流。

空间之选:窗帘、屏风、玻璃
对于想要节省空间的童鞋来说,软隔断有两个方向可选。一是采用轻薄材质比如:纱帘、屏风等物来做隔断;二是采用透明玻璃来扩大空间通透感;

毫无疑问,轻材质隔断是最省钱的办法,除了省空间,在装饰性上也极具优势。纱帘、屏风、百叶窗、挂帘,合理预算之内,任你选!


再来说说玻璃隔断:玻璃隔断,能分分钟拯救室内采光~它能让室内空间从视觉上宽敞起来,许多人甚至为了它舍弃卧室门!
近两年来,黑框玻璃和自带雾面的长虹玻璃都很受追捧,有隔断需要的小伙伴可以考虑:

左:黑框玻璃 右:长虹玻璃
开放之选:条形栅栏、谷仓门
除了以上两种隔断,你也可以选条形栅栏。
用黄铜、实木、或玻璃制作而成的栅栏,隔而不断,若隐若现。不仅有着艺术感十足的光影效果,还能起到很好的局部空间隔断效果~

下图是一户利用木质栅栏做成可移动门的室内设计案例。
推拉式、折叠式、直滑式隔断等,能让屋内空间分割整齐,实用性满分!

当然,ins上非常流行的谷仓门也是自带“软隔断效果”,黑白对比,清爽大气!

便捷之选:地毯、绿植
除了各式各样的大件隔断,你还可以用小件家居做隔断~
我们平时在家里最常用到的就有地毯和绿植。不同质感不同花色的地毯,用来划分区间,简直不要太合适!

成片的绿植也是一道天然的隔断。
如果家里太小,你可以考虑种几盆手工编织吊兰,把垂下来的绿植作为区域隔断,比挂画别致还省钱好看~清新空气的同时,轻松打造出属于自己的独立空间!

每个角落都有适合摆放的植物,根据光照、耐水度等挑选即可。再提前选好自己喜欢的花架,家里连角落都能美上几分!

看了这么多的隔断案例,想必你对隔断有基本了解了吧。其实要做隔断并没有想象中那么难,只要你灵活运用空间,因地制宜即可!