现代|三居室|133.7㎡|中正亲贤们
案例详情
设计师以清爽的北欧混搭,打造轻盈舒适的家,入户高级灰的墙面,装胡桃木色衣帽挂钩,金属质感凸显细节品质

- 客厅地面通铺木质地板,留白的背景墙用简框画装饰,简约的吊顶用点光源作主要照明,落地玻璃窗搭配灰色窗帘,与整体用色协调统一

- 一张花灰色的布艺沙发,搭配一把单椅与茶几,实木结合布艺的家具,体感与设计细节俱佳

- 主卧墙面采用灰绿色乳胶漆,黄灰色拼接窗帘提亮空间,粉色布艺大床搭配简洁的床品,整体营造静谧的就寝环境

- 一套实木餐桌椅质地细腻,墙面设计出木饰包边的壁龛,作餐边置物,也丰富了墙面

- 书房地面通铺木色地板,书桌背景铺贴清新壁纸,将自然元素带入室内,两组储藏柜增加了室内收纳空间,榻榻米的设计可以将书房作临时客房使用

- 厨房,地面通铺黑白色瓷砖,与餐厅地面在材质上作分割,柜体式中岛吧台作矮隔断,宽大的承重柱铺贴灰色系瓷砖作背景,木色橱柜与餐厅家具颜色呼应,协调搭配

- 餐厅墙面延续着木色地板,餐边柜,增添实用功能,白色墙面结合灰色瓷砖,让空间赋有层次

- 顶天立地的设计整墙储物柜,让卧室拥有足够多的储物空间

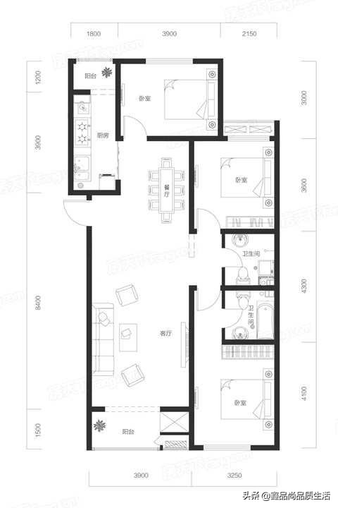
- 本户型是从西向东进入,户型朝东。通透,室内通风理想。整体平面比较规整,有利于内部分割,面积利用率高。买到这么好的户型,你不是土豪就是上辈子救了国打败了95%人的户型。