设计得到(百万设计师的职业提升平台)

dop设计(ID:dopdesign)原创
作者丨江亦杰
编辑丨江亦杰
和很多设计师小伙伴交流时,我们总是听到:
“哎,好不容易画好的图纸,审完图又是一大堆要改”
“为什么我画图总是有那么多的问题?”
“审完图也能理解到问题,但怎么就是在画图过程中发现不了呢?”
……
这些想法你是不是也曾有过或经历过呢?
今天这篇文章,我们就一起来探讨【施工图】中常见的那些事。解决以下问题:
1、审图常见图纸里的“骨头”有哪些?
2、如何减少这些常见的图纸错误问题?
1、审图常见图纸里的“骨头”有哪些?
1、制图不规范
a、图纸构成不严谨


比如我们的图纸编号和目录对不上,图框信息不完整,会导致后期识图困难,甚至出现找不到施工图纸的问题。缺材料表,设计说明等问题,导致图纸内容表述缺失。
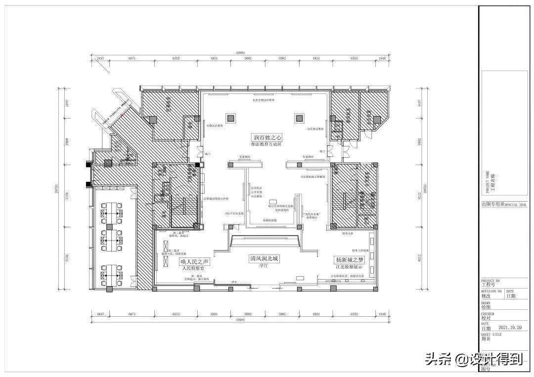
b、图纸内容表述不具体

从上图我们可以看出,缺失基本的图名,非设计区域的阴影线没有单独说明,致使可设计区域表示不明确。

对于天花图纸一些细小的造型和一些填充,以及一些灯具缺乏具体的图例说明,让人无法分清每个区域具体的造型是什么材质,用的灯具是什么选型。
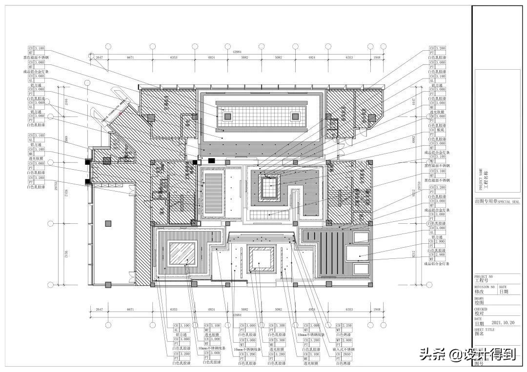
综合天花图正常需要肉眼可见的天花所有造型及相关设备,改图纸中没有具体体现,空调、新风、喷淋、烟感、排烟、喇叭等设备,给后期现场不同专业的协调带来较多不确定因素,后期甚至有可能会改天花的造型。
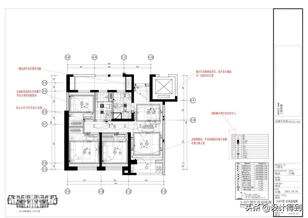
2、图纸内容不正确
这个相对而言会比较繁琐,所以下面我们挑出一些问题来讲一讲。

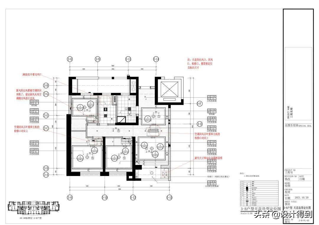
本图中指出问题 ,卫生间的门套和瓷砖的收口关系不对,从瓦工阶段先贴瓷砖,后期油工结束安装门这样的工序来讲,以及现场施工的容错率的美观度来看,正常都是门套卡在瓷砖上面。
这是因为缺乏对基本专业知识的学习,因为对有些东西不懂、不理解,所以在图纸中很难正确表达出来。


上图的天花造型定位图,从图纸的制图目的出发,是为了解决肉眼可见的天花造型的尺寸定位问题,所以空调的风口,检修口都需要标出尺寸和精准的定位。
这是因为设计师对本张图的制图目的不清晰,致使图纸内容表达不完整,不精准。

2、如何减少这些常见的图纸错误问题?
1、掌握一套标准的制图规范

掌握一套标准的制图规范,可以减少一些简单、琐碎的错误,提升图面的专业表达,同时有助于个人及团队内部的高效协作。
2、学会图纸制作前的分析工作

为了有针对性的高效表达图纸的表达内容及深度,这就需要根据一些项目的定位、甲方的诉求、成本、周期、图纸的作用等角度考虑。
3、从主观出发去高品质的完成施工图纸

施工图制图是一个内容繁琐注重时间把控的工作,需要注意力的高度集中,才能深入严谨高效的画出有品质的施工图纸,同时好的制图习惯,和一些较高的自我要求,可以直接减少初版图纸的错误率,减少反复改图的工作量。
4、积极做好专业知识储备

设计是一件复杂的事,而高品质的落地,就需要设计师具有各个专业的基础知识储备,在图纸阶段能够提前规避一些不可控的风险,所以在审图阶段一定会严格把控各个细节问题。
5、对接协调好每一项工作,保证施工图纸的精准度

与方案做好对接调,避免施工图纸内容和方案原则的背离,和第三方暖通、消防等做好对接协调,有助于设计不打折扣的落地等等。只有做好对接协调,把相应的东西在图纸中体现清楚,才能以一套施工图纸作为依据统筹整个后期项目的高品质落地。
小结

要让审图在图纸里挑不出“骨头”,对于施工图较差或 有错误认知的同学而言,就需要重新架构施工图绘制思维。
经历专业系统化的制图规范学习与训练,了解图纸绘制的底层逻辑,养成细心严谨的制图习惯,逐步夯实自己的专业能力。

设计得到更多干货知识,微信公众号搜索:dop设计。