
屋内的千山丘壑仿若自山水画墨而生,以刚劲的笔墨糅入虎头山阔景,连绵层叠若隐若现于室,远水孤云亦逐一绘成诗词,古云山水空间艺术制作 将远眺山脉的意象,在形断意连之间一引入宅,丘壑转瞬化为笔下草书,行笔墨韵间展现出明晦,犹如山稜在连峰千仞,伏藏著幽隐山径,也有与天接连的彼端。
The thousands of hills and gully in the house seem to be born out of landscape painting and ink, with vigorous pen and ink blending into the expansive landscape of Hutou Mountain, cascading layers and looming in the room, and lone clouds in the distant water are also drawn into poems. The image of the mountain range is introduced into the house between form and meaning, and the hills and gully are transformed into cursive script in a short time. The rhyme of the brush and the ink shows the bright and obscure, as if the mountain ridge is in the mountains, and the hidden mountain trail is hidden. The other side of the sky.

本案名为“芜昧丘壑”,在于“存芜”而非众人所思的“存菁”,一如夜裡的星空,有了黑暗才看得见光亮,有了沧桑才得见岁月风华,主理人 游云旨拿起“古云山水”的名片,细细讲究那不著笔锋而是笔侧乾笔的行书,状似枯墨皴擦,笔触张狂强韧,却纤柔有致,就像是透过刚柔并济之手笔,得以在一吐一纳间,望穿丘壑不可名状的稳定样态。
The name of this case is "Wu Muqiu Gully", which lies in "saving Wu" instead of "saving the green" as everyone thinks. Just like the starry sky at night, only the darkness can see the light, and the vicissitudes of life can only see the glory of the years. The principal, You Yunzhi, picked up the business card of "Guyunshanshui" and carefully paid attention to the running script that does not have the sharp edge but the dry pen on the side of the pen. It is through the combination of strength and softness that one can see through the indescribable and stable state of the hills and gully.

Q:从理工建筑科到建筑艺术研究所,思路的转变为何?
由于受到室内装修的家学背景影响,深受耳濡目染而习读建筑系,在理科建构的逻辑之下,打下由小见大的扎实功底,进入建筑艺术研究所而微型宇宙观大开,艺术启迪往“内求”思考,同时师承王为河副教授其“熬清守淡”的艺术境界,亦受到北宋山水画的启蒙,原来画作立面可为动态表现,一如千山丘壑、山林海潮置入本案的意象,形似静亦为动。
Q: What is the change of thinking from the science and engineering department to the architectural art research institute?
Affected by the family background of interior decoration, I was deeply influenced by the architecture and studied the Department of Architecture. Under the logic of science construction, I have laid a solid foundation from the small to the big, entered the Institute of Architecture and Art, and the miniature universe has opened up. Art enlightenment. "Inner seeking" thinking, and at the same time undertaking the artistic realm of "being clean and keeping the light" from Associate Professor Wang Weihe, and was also enlightened by the Northern Song Dynasty landscape paintings. The image is like static but also moving.

形而上的哲思尤是,让设计重返空间的本质,更摒除风格式的桎梏框架、于芜中求真,在真切中展现拙趣,“求真不求对”是作为设计工作的初衷与坚持。
Q:本案有许多山林海潮意象,阐述何种精髓?
宅邸面临层叠山峦,企望在人与自然之间取得平衡之质,便一揽鬱鬱葱葱之景入屋,山嶂的稳定带来了山涯水涧之流动,有如地貌、潮间景观的自然脉动,时而涨潮、时而落潮的大地能量中,提炼出生命力的本质,便是山林海潮成为设计底蕴的真谛。
Metaphysical philosophical thinking is, in particular, to let design return to the essence of space, and to eliminate stylistic shackles, seek truth in Wu Wu, and show clumsy interest in truth. "Seeking truth but not right" is the original intention of design work. insist.
Q: There are many images of mountains, forests and ocean tides in this case. What kind of essence is explained?
Facing the cascading mountains, the mansion hopes to strike a balance between man and nature, so it enters the house with a lush landscape. The stability of the mountain ridge brings the flow of the mountains and rivers, just like the natural pulsation of landforms and intertidal landscapes. The essence of vitality is extracted from the energy of the earth at times of rising tide and sometimes falling tide, which is the essence of the mountain, forest and ocean tide becoming the essence of the design.

Q:以自然景致为本,同时是亲子友善空间,如何展现互动性?
打造能随处席地而坐而卧的自在环境,如同人类与大自然相处之道,在进入自然奥义时,人就像个童心未泯的孩子,因此,在家屋之中,童趣俯拾皆是,探索山坡滑梯以及海潮侵蚀的太湖石,亲子的日常情感便交织在此。
Q: Based on natural scenery, it is also a friendly space for parents and children. How to show interactivity?
Create a comfortable environment where you can sit and lie on the ground, just like the way humans get along with nature. When entering the profound meaning of nature, people are like children with a childlike heart. Therefore, in the house, there is a lot of childishness and exploration. The daily emotions of parents and children are intertwined with the slides on the hillside and the rocks of Taihu Lake eroded by the tide.

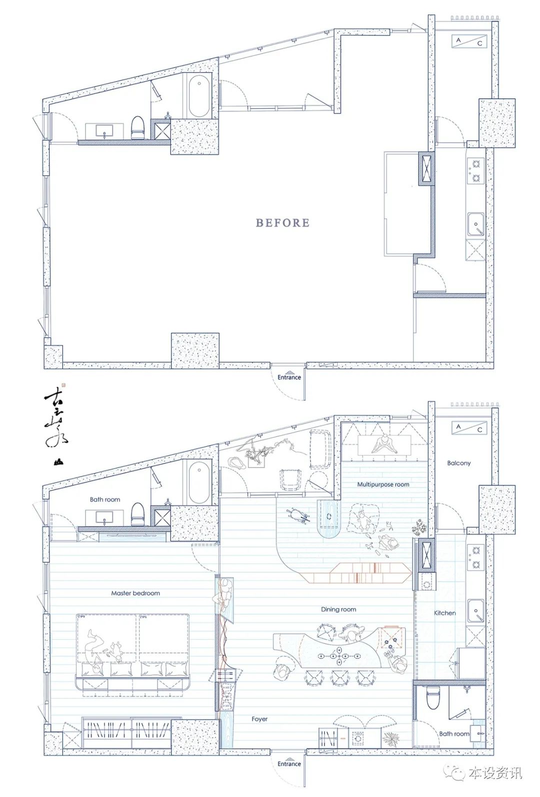
个案基本资料
桃园市 / 新成屋 / 电梯大楼 / 室内坪数 34.8 坪 / 格局 3 房 2 厅 2 卫 / 居住人数 2 大 2 小
Basic case information
Taoyuan City / New Housing / Elevator Building / Indoor Pings 34.8 Pings / layout 3 bedrooms 2 living rooms 2 bathrooms / number of occupants 2 large 2 small

< 屋主需求 >
• 长辈看顾孩童的开放式环境
• 餐厨规划一处与孩子玩烘焙区域,并置入大型烤箱
• 主卧採用合併大床
< 各别空间 >
1. 玄关设计:
一入门,远方即是虎头山峦,面以乐土镘刀细磨的质地,构为一面山体在浮光瞬变间的样态。
<Homeowner needs>
• An open environment for elders to take care of children
• The chef plans a baking area with children and puts it in a large oven
• The master bedroom adopts a combined big bed
<Individual space>
1. Entrance design:
As soon as you start, you will see the Tiger Head Mountain in the distance. The surface is finely polished with a paradise trowel, forming a mountain in the transient state of floating light.

左侧换鞋座位延伸至丘壑窗洞坐榻,划以水平线一气呵成为地景,乐土为立面、桃花心木为水平面,透过手工丸凿出自然肌理,使一介丘壑的涟漪,与实木皆裸现出自然之璞。
The left side of the shoe changing seat extends to the hillside window seat. The horizontal line is drawn to form the landscape at one go. The paradise is the facade and the mahogany wood is the horizontal plane. The natural texture is cut out by hand-made pellets, making the ripples of the hills and solid wood. All reveal the essence of nature.

玄关右侧则为多功收纳柜,蕴藏著家屋精神的实木柱,隐身于柜体中坚,选以原木剩料打造,意味著木料不尽完美,却有其适用之归所,上头由设计师手工镌刻两字“家族”草书字体,象徵家族每一个人都安其自所。
On the right side of the porch is the multi-purpose storage cabinet. The solid wood pillars that contain the spirit of the house are hidden in the backbone of the cabinet. The choice is made of leftover logs, which means that the wood is not perfect, but there is a suitable home. The designer is on top The hand-engraved two-character "family" cursive font symbolizes that everyone in the family is in their own right.


2. 餐厅设计:
海潮彷彿在此掀起阵阵波澜,矗立于此的是海潮侵蚀的太湖石,捨去制式的量体,而以天然荒石的线条构筑中岛桌檯,无论从任何角度凝视,其乐土的凹凸曲线、刻蚀痕迹,皆有如动态般,无声呈现生命之力。
2. Restaurant design:
The tide seems to set off waves here. Standing here is the Taihu rock eroded by the tide. The standard volume is discarded, and the Nakajima table is constructed with the lines of natural waste stone. No matter when you look at it from any angle, the uneven curve of its paradise. , Etched traces are all dynamic, silently presenting the power of life.

为契合屋主所望,此处作为亲子烘焙的场域,并在中岛下方置入一大型烤箱,形赋其机能性而兴,更成为如沐亲情之所在。
In order to meet the expectations of the homeowner, this place is used as a baking field for parents and children, and a large oven is placed under the middle island, which is shaped to be functional and thriving, and it becomes a place of family love.


3. 多功能室设计:
餐厅中岛与多功能室之间,形塑山脉连峰的装置于此,其意象不仅对应窗外虎头山的连云叠嶂,亦受曾习古典主义的巴哈平均律之启发,山脉之律动如赋格音律,时而併进、时而分离,同时成为孩童玩耍的山坡滑梯。
3. Multifunctional room design:
Between the island in the restaurant and the multi-functional room, the installation that shapes the mountain peaks is here. The image not only corresponds to the overlapping clouds of Hutou Mountain outside the window, but is also inspired by the classical Baha's equal temperament and the rhythm of the mountain. Such as fugue rhythms, which sometimes go hand in hand and sometimes separate, and at the same time become a hillside slide for children to play.


特意架高卧榻,形似贵妃椅,选了一幅蓝染画作与窗外虎头山相互呼应,由于蓝染工法繁複,需往返 20-30 次的浸染才得以成所望色泽,象徵著家屋的每一隅都有时间的涵养。
The high-rise couch is specially designed to look like a chaise longue. An indigo dyed painting is chosen to echo the Hutou Mountain outside the window. Due to the complicated blue dyeing method, it takes 20-30 times of dip dyeing to achieve the desired color, which symbolizes every corner of the house. There is time to conserve.

另一侧则立磁性黑板涂鸦牆,成为孩子尽情挥洒创作之地,从地面、牆面、天花覆以清香扑鼻的日本香杉,即便拣选同一实木质材,会依据不同用途,切分出适切的软硬度,实木带入空间之中,也仿若引入生命之轮。
On the other side is a magnetic blackboard graffiti wall, which has become a place for children to freely create. The ground, wall, and ceiling are covered with Japanese cedar, even if the same solid wood is selected, it will be divided into different uses according to different purposes. The softness and hardness of the cut, the solid wood is brought into the space, and it is like introducing the wheel of life.


4. 主卧房设计:
乍看有两道门,实则为一窗景一门廊,为了保留视野的通透,便于时时看顾小孩,开凿一处丘壑窗洞,与山稜坡道对视,那关爱的眼神是浓情挚爱。
4. Master bedroom design:
At first glance, there are two doors, but they are actually a window and a porch. In order to preserve the transparency of the field of vision, it is convenient to take care of the children from time to time, and a hilly window hole is excavated to look at each other with the hillside slope. The caring eyes are full of affection and love.



走入沿袭牆外的流动律感,主卧房以素淨之域为主轴,为了便与孩子共眠,立起一面大卧床,并设置床头抽屉背柜与储藏衣柜,完整了机能的同时,亦方面有致。
Stepping into the sense of flow that follows the wall, the master bedroom takes the pure and pure domain as the main axis. In order to sleep with the child, a large bed is set up, and a bedside drawer back cabinet and a storage closet are set up. At the same time, the function is completed. There are also reasons.


5. 卫浴设计:
铅灰调性延续自公领域的乐土质地,而盥洗区的立面瓷砖交互延伸至客厅;此处以一道实木作为水平轴,多增设储物之用,备有完善的乾溼分离功能。
5. Bathroom design:
The lead gray tone continues from the paradise texture of the public domain, and the façade tiles in the wash area alternately extend to the living room; here, a solid wood is used as a horizontal axis, and more storage is provided, and it is equipped with a perfect dry and wet separation function.


< 总体规划 >
6. 灯光设计:
涂覆乐土于牆,其状似墨痕之迹,光线在自然光之援引之下,或情境式嵌灯、间皆灯之投射,都能适切展其返璞澄澈之面貌,一如潮间带的岩块,其天然凿刻的纹理在昼夜光影的辉映之下,皆有其独特样态。
<Master Plan>
6. Lighting design:
Coating the happy earth on the wall, it looks like a trace of ink marks, the light is invoked by natural light, or the projection of situational recessed lights or intermittent lights, can show its natural and clear appearance, just like the tide. The rock blocks in the belt have their natural chiseled textures under the radiance of day and night light and shadow, and they all have their own unique appearance.

7. 建材挑选:
岩灰绷板、乐土、日本桧木、非洲柚木、磁性黑板、长虹玻璃、引首章、烤漆铁件、日本香杉、桃花心木、超耐磨地板、实木黑百叶、岩纹长条砖
7. Selection of building materials:
Rock gray stretch board, paradise, Japanese cypress, African teak, magnetic blackboard, Changhong glass, introductory chapter, painted iron, Japanese cedar, mahogany, super wear-resistant floor, solid black louver, rock pattern strip brick

8. 色彩计画:
由于无风格定义上的窠臼,色彩便随材质而生成,除了乐土的複写灰阶手感,成为主景之外,原生于自然界的实木则为次,共同提升场域的质朴感受。不同区域的实木遴选尤为色彩的灵魂所在,无论是偏红的桃花心木、非洲柚木,甚至点缀于天花的玄天色彩的引首章皆是大地质朴而具生命力的描绘。
8. Color plan:
Because there is no stereotype in the definition of style, the color is generated according to the material. In addition to the gray-scale feel of the paradise, which becomes the main scene, the solid wood native to nature is the secondary, which together enhance the rustic feeling of the field. The selection of solid wood in different regions is particularly the soul of color. Whether it is reddish mahogany, African teak, or even the introductory chapter of the mysterious color dotted on the ceiling, it is a simple and vital depiction of the large geology.
