大家好,我是本设家居,为大家带来不同风格的家居方案,分享装修的各种经验和知识。关注我,或许可以在家居装修这件事上,提供一些建议和参考。
对于小户型的房子来说,要保持家居的环境整洁,除了足够的收纳空间和日常保洁外,那就是断舍离和极简主义。本期案例一对中年夫妇不爱凑热闹,喜欢安静地宅在74㎡小宅里,闲暇时,男主人邀请好友欢聚,女主人插花习艺,结合温和的色调,充满格调。坚持断舍离6年,生活非常简单,不被物质所累,不管在什么情况下,都能保持家中干净清爽,太治愈了,越过越幸福。
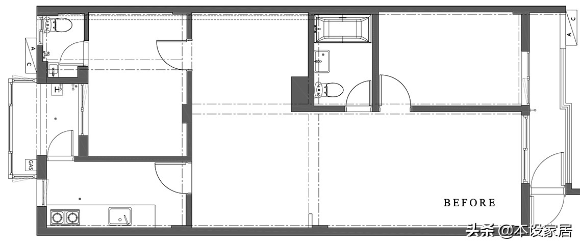
原始结构图

这套小户型房子呈长方形,两面采光,是三室两厅两卫一厨的格局。缺点是中间部位采光不足,次卫是暗空间。
平面布置图

根据屋主的生活习惯和需求,基本保留原有的功能布局,客厅、餐厅和厨房一字排列。增加主卧面积,另一部分做储物间使用。主卧和储物间采用隐形门,让墙面看起来更加完整。
客厅



客厅拥有落地玻璃门,最大限度引进自然光线,摒弃多余的造型和饰品,在角落布置一组到顶的灰色鞋柜、以及棕色皮革沙发和岩板台面的圆茶几,减少了非必要物品,回归本质生活,空间看起来显大。当阳光穿过白色纱帘,洒向温润的实木地板、浅灰色的墙面和白色的天花,呈现出一种文雅的气质。置身其中,心随境转,时间都变得缓慢,让人怡然自得。




线条简约的蓝灰色铁件和玻璃组成的电视机背景墙,也是与多功能房的隔墙,让光线互相穿透,视野也更加通透。
餐厅



餐厅布置在客厅和厨房之间,墙面采用不同的材质,暖灰色大理石纹理薄板砖美观、易清洁,而实木餐桌椅沉稳醇厚,用手抚摸便能感受到大自然材质赋予的温度感。利用天花梁结构转折到砖墙面,嵌入L型的条灯,弱化了横梁的视觉效果,划分了客餐厅的区域,也给聚餐增添了一份仪式感。


在餐桌的另一面墙上,安装深色金属板,放置展示用品,不同的造型演绎出韵律感。
卧室



借用部分空间后,卧室更加宽敞,有独立的化妆台,还定制了一组到顶的原木色衣橱,大大增加收纳需求。为了减少因作息不同,产生的睡眠打扰,特意布置两张可移动的床。床头背景墙采用浅灰色乳胶漆,以及定制了12公分厚,可兼当床头柜的木背板,搭配可调角度的床头灯,明暗区域明显,颇具视觉趣味,营造出轻松宁静的休息空间。
多功能房



作为娱乐室、书房和临时客房的多功能房,是屋主最爱呆的地方,布置比较简单,只定制一组沙发凳和储物柜,留出中间的位置练瑜伽,在空闲之余约三五好友,摆上桌子,打麻将或打牌皆可。


在照明设计上,天花均匀分布射灯,只打开圆球落地灯时,格调十足。
卫生间

为了给卫生间补光,采用磨砂玻璃门,带来一种朦胧的美感。地面铺贴暖灰色六角形大理石纹理防滑地砖,搭配同色系墙面砖,营造出沉稳大气的氛围。定制30公分宽的洗手台,上方的镜面柜和下部木质层板,放置洗浴用品,与马桶之间增设淋浴,应有尽有。
看完全文,你喜欢这样布置的家居吗?请在评论区留下你独特的见解,谢谢!如果文章对你有所帮助,请关注我,关注本设计,后续将有更多的精彩内容为你呈现!