对于新房装修的施工工艺到底是否合乎标准,我想这些都是好多装修业主比较的关心的事情,因为装修的施工工艺直接关系到自己家的房子装修的质量。装修师傅有没有偷工减料等等,知道这些装修工艺也能够很好的避免装修工程中一些豆腐渣工程的形成,今天小编就给大家来一份详细的装修施工流程工艺标准,装修界大佬都要拍手称绝!
一、地面施工工艺

地面施工详细顺序参考:
基层清理→弹线→贴灰饼→刷素水泥浆→水泥砂浆找平→养护

地面石材工艺施工

地面石材工艺的施工标准:
地面清理→试拼→水泥浆结合层→铺贴石材 →养护→晶面处理



釉面瓷砖的铺贴工艺:

釉面砖施工的详细顺序:
地面清理→瓷砖浸水湿润→水泥砂浆结合层→安装标准块→铺贴地面砖→勾缝→清洁→养护

抛光砖施工工艺

抛光砖施工工艺顺序
处理基层→弹线→预排→摊铺水泥砂浆→安装标准块→铺贴地面砖→勾缝→清洁→养护
施工步骤:

二、卫生间地漏的施工工艺
地漏的施工顺序:定位→排水管道安装→预埋
施工图片

三、淋浴房施工工艺

淋浴房施工工序
地面清理→水泥浆结合层→铺贴石材 →养护→晶面处理
淋浴房施工图片

四、厨房、卫生间门槛石的施工工艺

门槛石的施工工艺
地面清理→水泥湿浆结合层→铺贴门槛石→养护→晶面处理
门槛石施工图片

五、墙面施工工艺图片
轻钢龙骨石膏板隔墙施工工艺

施工工艺
隔墙放线定位→安装天地龙骨→安装竖向龙骨→安装横向龙骨→龙骨内敷设隐藏管线→门洞口、窗台口加固→封一面石膏板→填充隔音棉→进行隐蔽验收→再封加一面石膏板
施工步骤



六、卫生间镀锌方通隔墙施工工艺

卫生间施工工艺
隔墙放线定位→焊接钢架→焊口防锈处理→捣制混凝土地梁→封硅酸钙板→挂网→水泥砂浆批荡→涂刷防水涂料→铺贴石材
(此处已添加小程序,请到*今条头日**客户端查看)
施工步骤详细图片



七、石材浇筑施工工艺

施工工艺
石材排板放线→预排石材→板材固定→灌桨→嵌缝
详细施工图片

八、墙面石材干挂施工工艺

施工工艺
石材排板放线→安装钢骨架→石材安装→打胶收口
施工图片

九、顶面石材干挂施工工艺

施工工艺
石材排板放线→安装钢骨架→石材安装→打胶收口
施工图片


十、吊顶玻璃/镜子安装施工工艺

施工工艺
基层制作→放线→玻璃/镜子加工→安装玻璃/镜子→打胶收边→清理
施工详细图片


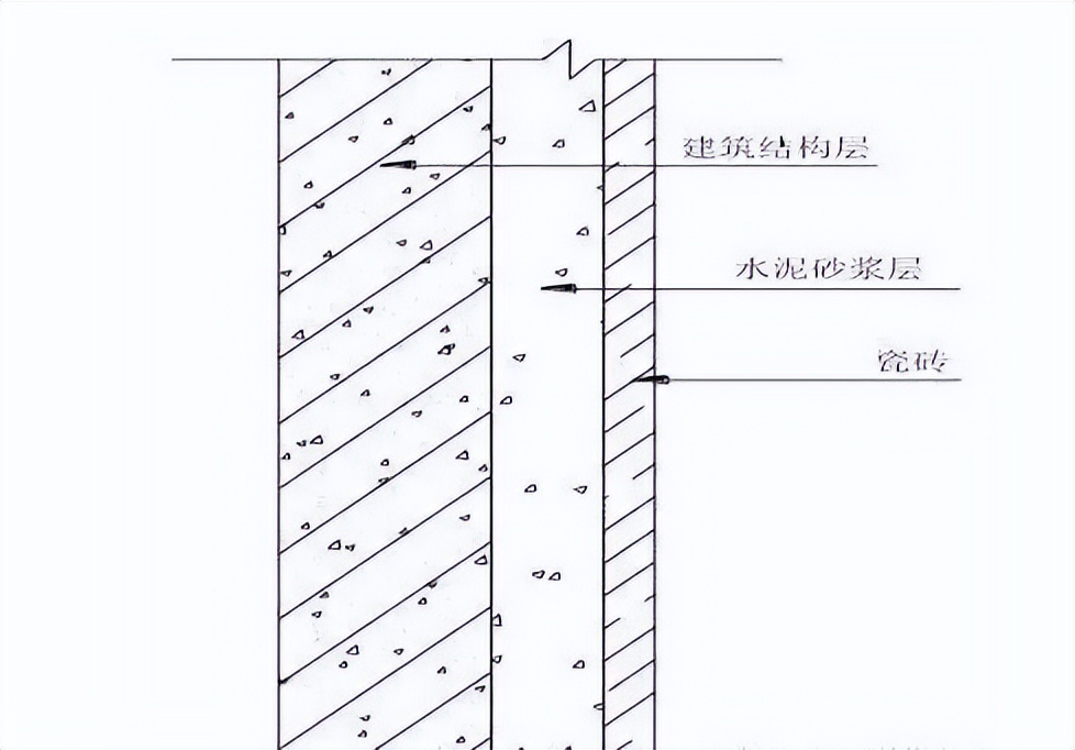
十一、墙面贴砖施工工艺

墙面施工工序
处理基层→弹线→瓷砖浸水湿润→摊铺水泥砂浆→安装标准块→铺贴地面砖→勾缝→清洁→养护
施工图篇

十二、吊顶施工

吊顶施工详细步骤
弹出天花完成面线→吊杆安装→安装主龙骨→安装沿边龙骨→安装次龙骨→龙骨调平→进行隐蔽验收→安装石膏板


十三、金属板吊顶施工工艺

施工工序
弹线→安装沿边龙骨→安装吊挂杆件→安装次龙骨→安装罩面板→安装压条

十四、阳角槽施工工艺


十五、中央空调出风口设计施工图

