九龙仓苏州国际金融中心,360°湖景视野,俯瞰城市风华。 实力硬核

“最”深的大型基坑
你是否没看够,请翻到最后......底蕴深厚!

地处苏州,采用苏州人最熟悉的 “水元素”, 以 “鲤鱼跳龙门” 作为象征主题,寓意繁荣昌盛。卓尔不群的高度如鱼尾一般曼妙的曲线, 屹立苏州,傲视全城。
这个真正属于苏州工业园区人的传世之作,他来了!!
“江苏第一高”“全球十大可售超高层地标住宅”,世界上唯一可售超 高层;
L97-L100 云端摩天大宅,70年产权,垂直高度327米起

2020年,由华建集团华东建筑设计研究总院参与设计的九龙仓苏州国金中心项目完成联合验收,正式竣工,为姑苏城呈现了一座瞩目新地标。建成后的苏州国金中心,代表了 中国超高层建筑的世界级水准 ,象征了苏州的新形象、新高度,将以多元化的业态为城市和区域发展注入新活力,创造新契机。

项目概况
苏州CBD商圈核心区的“新地标”
项目位于苏州工业园区金鸡湖东CBD商圈核心区,北侧毗邻新鸿基苏州环贸广场,南侧与久光百货隔中央河相望,西临圆融时代广场,东侧为思安街。项目包含三幢塔楼,总建筑面积约38万㎡。T1主塔楼是集办公、公寓、酒店为一体、高450m高的超高层综合体;T2塔楼位于T1塔楼西侧并与之相连,高80m的板式建筑,主要功能为SOHO办公;T3塔楼位于T1塔楼南侧,高74.5m,主要功能为办公。

设计理念
比肩时代高度的“龙门之鲤”
水是苏州历史和城市印象的重要元素,整个苏州城水渠环绕,水道纵横,素有“东方威尼斯”之称。苏州国金中心挖掘苏州“水”元素,迎水展开。 项目设计理念扎根于当地的本土文脉,取“鲤鱼跳龙门”的意向,鲤鱼飞跃之势,寓意繁荣昌盛。 整幢塔楼西南面向金鸡湖,从湖面和周边的建筑中拾级而上,T2塔楼似鱼尾,划过一道曼妙的弧线,衔接至T1主塔楼,沿着主塔楼脊背层叠升起,顺应并刻画塔冠弧形造型。T2屋顶与主塔楼西立面及塔冠形成一道上下贯通的内嵌造型,似一道玉带朝向金鸡湖,玉带顶端酒店大堂,如一座空中园林,在此可俯瞰苏州城。所设计出的这一气呵成的建筑型体,将使其打造为城市天际线上一道独特的风景。
总体布局
尊重环境 功能分区科学合理
项目总体布局充分体现出对周边环境的友好和尊重。基地北侧沿苏州大道结合三个地铁出入口,尽可能地退让出城市空间,塑造宜人的环境以供市民活动。车行主要出入口结合内部市政道路,集中在基地东西两侧,车库出入口相对集中布置在T3塔楼周围,减少了对主要城市面的影响。

消防登高场地位于T1塔楼东侧及南侧、T2塔楼南侧及T3塔楼北侧。消防车道利用基地内车行道路,沿各幢塔楼分别环通。消防车道流线清晰,为本项目的消防安全提供有力保障。项目于L83增设避难层, L84-L90人员可从疏散楼梯到达L83避难层,利用10m/s高速穿梭电梯将人员疏散到首层仅需48秒。如突发火灾顶部酒店人员可通过穿梭电梯安全疏散。T1主塔楼 5~47层设为可租售办公,平面上户型分隔灵活,高度上按不同楼层分为四个区段,各区在首层有独立电梯厅,可高效使用。

主塔楼48~82层为70年产权的可售公寓,户型多样,装修奢华。在首层和二层设置了双大堂门厅,分别对应公寓的高区和低区,流线清晰使用便捷。

塔楼顶部84~90层为九龙仓旗下顶级品牌NICCOLO酒店,设有220多间客房, 今年即将开业。酒店可通过首层独立过厅的4台穿梭梯到达90层拥有绝佳视野的挑空大堂,酒店在4层、91层设置了配套的公共设施,包含2座无边泳池、一座婚礼礼堂及多个餐厅,给住客带来丰富的空中体验。

T2塔楼主要功能为SOHO办公,标准层划分为22间独立的办公单元。
T3塔楼首层为商业,标准层为办公功能。
项目的玻璃幕墙设计精巧而高效,10多种类型幕墙均采用1:1精细化建模和热力学模拟,以达到定位精确、安全节能的各项标准。
塔冠的斜面造型为进阶曲线,造型复杂。
两个幕墙系统有3200mm的高度差,之间为铝板幕墙,三者之间的匹配,是形成流畅的“鱼跃龙门”形态的难点。
设计过程中采用电脑模型放样结合现场全站仪复核的方式,攻克难题,从而实现完美的建筑效果。由于塔冠的特殊造型,为防止冬天积雪问题,屋顶采用电热丝加热融雪,防止高空积雪坠落。
在幕墙设计中,将擦窗机的防风插销基座整合在铝型材装饰条上,简化系统部件,提升安全与美观度,属世界首创。

技术剖析
创新高效 兼具安全性和舒适度
项目主体结构采用“巨型框架+核心筒+伸臂桁架+环带桁架”的结构体系。混凝土核芯筒平面基本呈六边形,由下至上合理收分。
采用四道伸臂桁架,每道桁架高度约2m,沿塔楼高度结合避难层均匀分布,并在核芯筒的墙体内贯通设置钢框架,形成整体传力体系,优化结构效能。
将93层590t的消防水箱设计为调谐水箱阻尼器,属国内首创,节省建筑空间与建造成本,高度整合大楼的结构体系与机电体系。
此外,达到有效降低风致加速度,通过对塔楼在风和地震下的响应进行详细性能分析,可将加速度降低30%,大大提高建筑舒适度。

项目办公和酒店部分采用市政集中热源,T1和T2公寓采用水冷VRF技术,为每户配置独立的空调冷热源,有利于提高空调系统能效。
防排烟方面,通过配合设备避难层设置机械加压系统和楼层排烟及补风系统,并将各区段的排烟系统布置在服务区段上方的设备避难层,加压和补风系统布置于下方的设备避难层,以充分保障项目的消防安全性。
同时项目消防加压系统考虑超高层塔楼局部火灾时全楼疏散的需求,除了开启火灾层的排烟系统和对应补风系统外,将会自动开启整栋塔楼全部的楼梯加压、前室加压系统以及避难区机械加压系统以确保全体人员的安全疏散。

日前,苏州国金中心项目荣获2020年度CTBUH全球高层建筑卓越奖(400米及以上),这一跃然金鸡湖畔的"龙门之鲤",是华东总院在超高层领域的又一佳作。
华东总院自2009年参与设计至今,历时11年,为项目配备了完善的建筑、结构、机电等专业人才和资源,与各方设计顾问精诚协作。
从建筑独特而优雅的设计,到结构的TSD创新研究及其全过程配合工作,总院设计团队以专业敬业素养精心雕琢、倾力打造,为苏州这座温婉的历史之城树立一座比肩时代高度的建筑精品。
项目实景图由苏州高龙房产发展有限公司提供。
项目档案 苏州国金中心
建设地点: 苏州工业园区
建设单位: 苏州高龙房产发展有限公司
用地面积: 20280.89㎡
总建筑面积: 382980.20㎡
建筑高度: 450m
建筑层数: 地下4层,地上92层
设计单位方案设计: KPF建筑设计事务所
项目建筑师: 王董国际有限公司
建筑设计: 华建集团华东建筑设计研究总院
结构设计: 华建集团华东建筑设计研究总院
机电设计: 华建集团华东建筑设计研究总院
机电顾问: 柏诚工程技术(北京)有限公司上海分公司
室内方案设计: KPF建筑设计事务所Wilson&Asscciates,LLCHBA/Hirsch Bedner Associates
室内设计: 上海现代建筑装饰环境设计研究院有限公司
景观设计: WAA
项目团队项目负责人: 陈雷、曹丹青
建筑: 翁皓、陈雷、曹丹青、安仲宇、王永佳、龚佳烨、刘琦、陆娴颖、张洪源、邵骥骋、李洁、郝敬之、杨涵宇、王怡斐、谢一轩、胡建文、姜宇、高俊宁、张薇、孔晓璐、马瑞琳、黑砚
结构: 汪大绥、周建龙、姜文伟、张聿、黄永强、李瑞、李广伟、瞿璐、王华、崔凯、徐小华、施维
暖动: 马伟骏、万嘉凤、任怡旻、盛安风、庄燕、毛雅芳
给排水: 徐扬、王华星、唐国丞、赵强强、王珏
强弱电: 钱观荣、方飞翔、王宇佳、高峰、郑君浩、赵丽花
室内设计: 柯旸、陈杰、叶伴军、朱莉蓉、陈晨双
公众号:华建集团华东建筑设计研究总院江苏第一高楼——450m“苏州国金中心”跃出全新天际线
号外号外
国金中心由中建三局三公司承建,450 米高、建筑面积 38 万平方米。
历时 9年建设的“苏州第一高楼”!
主楼比 46 座埃菲尔铁塔(约10000吨)还重,若加上商业裙房等附属建筑,则重达 66 万吨。
苏州第一“深坑”,基坑最深 27.85米
工程主楼区域基坑最深 27.85米,是苏州第一深基坑,共415根桩。
每根桩深入地下 92 米,直径1米,可承重1200 吨。
主楼土方开挖需穿越7道土层,其中粉砂层厚4米,含水量大,施工难度极高,而正在运行的苏州地铁一号线从基坑北侧沿线穿过,穿过距离长达 168 米,基坑与地铁隧道最近仅9米。
项目团队通过技术攻关,采用“切片、切层”施工,在临近地铁侧进行桩基加固,并切大坑为小坑,用地下连续墙临时将基坑分为3个片区、南北两段,分6层开挖,在过程中进行淤泥固化处理,最大限度控制各层、各段施工期间的相互影响。
该工程利用“时空效应”,根据基坑变形量与无支撑暴露时长呈正相关性原则,尽可能缩短无支撑暴露时间,辅以先进的检测仪全天候监控,确保基坑固若金汤。
经第三方机构实测,基坑变形量最大 3 厘米、地铁位移量仅3.2毫米,远小于地铁设计单位变形量 3.4 厘米和位移量 7.5 毫米的要求,让检测人员感叹“施工如内科手术般精准!”
自带“定海神针”,面对 12 级台风都能岿然不动
面对台风、地震,摩天大楼稳如泰山,上海中心大厦、台北101大楼等著名摩天大楼,拥有一种名叫“阻尼器”的神奇装置,利用阻尼特性来减缓机械振动及消耗动能,是防风防震神器。
建设者为国金中心安装了阻尼器的升级版——新型调谐液态阻尼器(英文简称“TSD”),在国内尚属首例。
“TSD”是一种被动式吸能减振装置,通过内部液体振动来消除建筑物在承受风荷载及遇到地震时的振动,从而改善超高层建筑风振舒适度,延长建筑使用寿命。
大楼里还设置 9 个浆柱,作用就是通过对水粘滞,让其与风向进行反作用,通过这种反作用力抵消因风力造成的大楼晃动,达到防晃、减震的目的。
拥有“TSD”这个“定海神针”的国金中心,面对 12 级台风都能岿然不动。2020年 8 月 10 日,10-11级超强台风“利奇马”来袭,国金中心依旧“风雨不动安如山”。
项目概括



































项目信息
产品类型:超高层住宅
开发商:九龙仓
物业公司:九龙仓(中国)
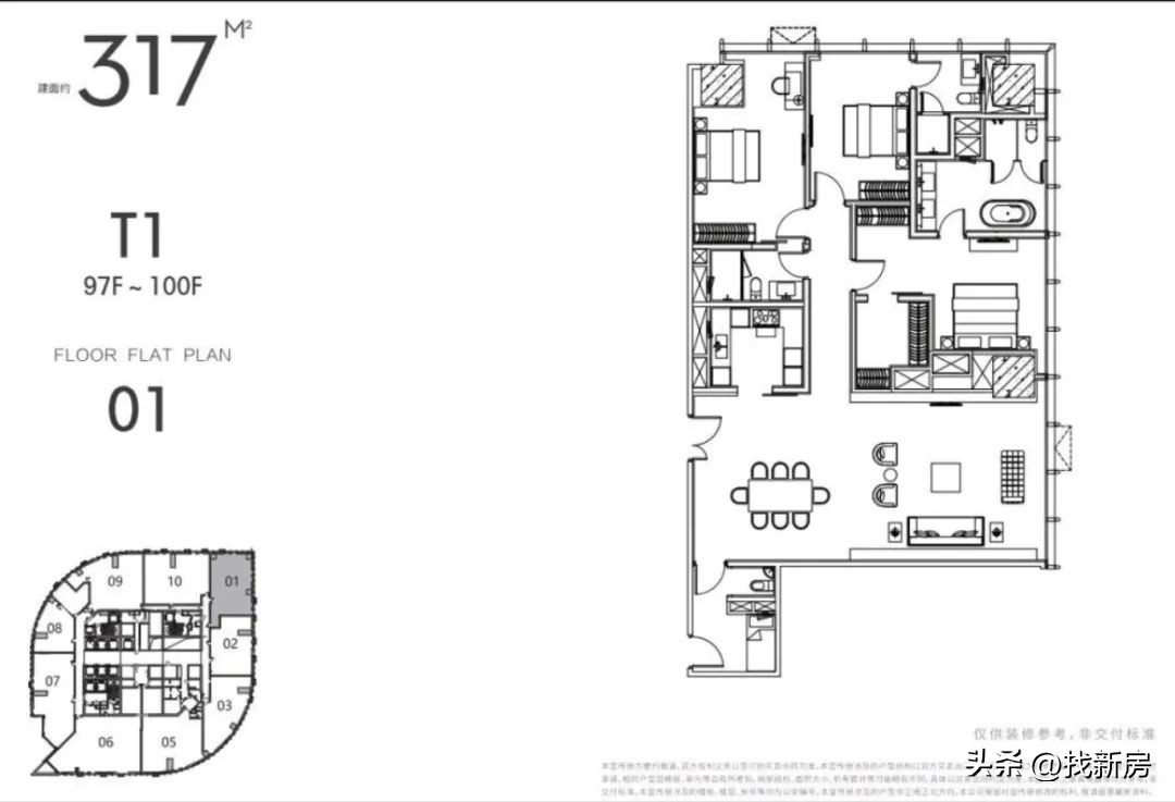
在售楼层:T1高区(97-100F)所有可售房源
在售面积:01户317㎡、02户276㎡、03户312㎡
05户560㎡、06户580㎡、07户399㎡
08户309㎡、09户372㎡、10户373㎡
装修均价:23650元/㎡
产权:70年
得房率:61%
交付标准:精装交付
物业费:15元/平(含公共能耗费)
交房时间:2024.3.30-2024.9.30
层高:3米(毛高4.35m)
学区:九年一贯制公立景城中小学
交通规划
世界级交通枢,紧邻上海,快速通达世界
地铁1号线横贯苏州东西,10分钟园区高铁,45分钟虹桥机场。
环线:东方大道,星湖街,现代大道
商业配套
苏州经济中心,国家级别顶级配套
苏州中心,星悦荟,时代广场,诚品书店,新光天地,久光百货,科文中心,苏州商业金融聚集地
酒店配套
天际奢华酒店,NICCOLO,提供顶级服务,苏州最高的奢华精品酒店,无边泳池
产品优势
✅层高:主入户大堂9米挑空,以石材和金属搭配,彰显Grade A Office商务气质
✅空调:舒适感好,送风量大,送风温差小,房间温度均匀
✅新风:通过防PM2.5等技术,达到深度空气净化作用
✅电梯数量速度:IFS共设置65部电梯,六部进口日立电梯服务,最快速度达10米/秒
✅严格门禁系统:严格访客登记系统,通过授权方可进入,彰显私密和尊贵
✅噪音源细节处理:设备层放置减震台和橡胶垫,到达空间声量处于最佳值。
✅人文关怀:独立后勤服务,为残障人士设置专门电梯,彰显人文关怀 ✚独立后勤服务:实现电梯分流,缩短候梯时间,提升搭乘体验
✅9米挑高大堂:主入户大堂9米挑空,以石材和金属搭配,彰显Grade A Office商务气质;
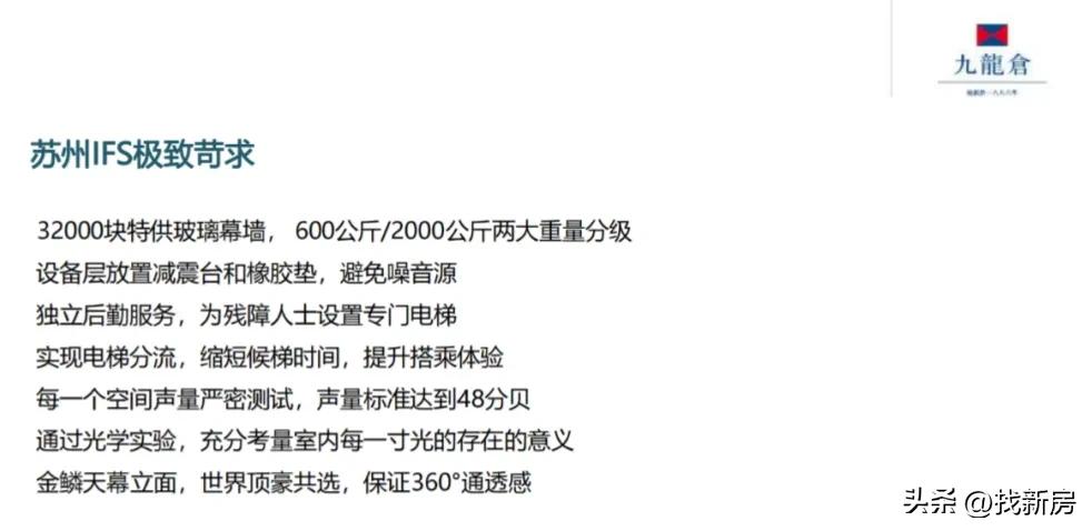
✅3公分匠心石材:公共区域均采用厚度为3公分的全干挂石材设计,且每一块石材皆为特供
✅Leed金奖认证:荣获全球权威的绿色建筑体系leed金奖,绿色办公,与苹果新总部同获殊荣。
✅太空舱电梯技术:部分采用日立电梯独有技术,自动调节梯内气压,大幅提升舒适度,缩短侯梯时间。
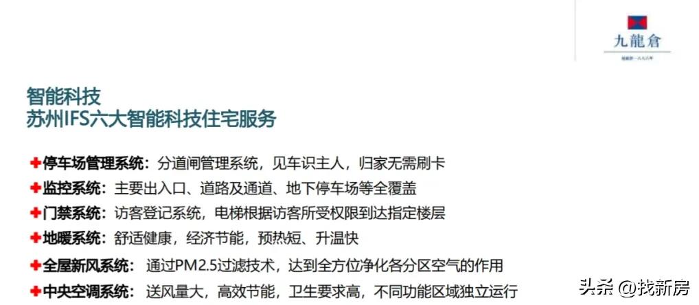
智能科技 苏州IFS六大智能科技住宅服务
停车场管理系统:分道闸管理系统,见车识主人,归家无需刷卡
监控系统:主要出入口、道路及通道、地下停车场等全覆盖
门禁系统:访客登记系统,电梯根据访客所受权限到达指定楼层
地暖系统:舒适健康,经济节能,预热短、升温快
全屋新风系统:通过PM2.5过滤技术,达到全方位净化各分区空气的作用
中央空调系统:送风量大,高效节能,卫生要求高,不同功能区域独立运行
在售面积户型图


01:户317平3室2厅3卫

02:户276平3室2厅3卫

03:户312平3室2厅3卫

05:户560平3室2厅4卫

07:户399平3室2厅3卫

08:户309平3室2厅3卫

09:户372平3室2厅3卫

10:户373平3室2厅3卫

97F06:户580平4室2厅4卫

98F06:户580平3室2厅3卫

99F06:户580平3室2厅3卫

100F06:户580平3室2厅3卫

国金中心310㎡的平层户型堪称苏州第一大平层!以下是310㎡样板间照片
主卧:

卫生间:

厨房:
以下是160平样板间照片



外景图




香港九龙仓集团建设的苏州九龙仓国际金融中心以世界级建筑的水准,刷新苏州城市高度,成为金鸡湖畔独一无二的“超级地标”。
而香港新鸿基地产打造的苏州环贸广场ICC是苏州工业园区第二高楼,也是其在苏州打造的首座城市综合体。


不仅在城市发展上交相辉映,作为国际国内双循环的独特交汇点、众多双向合作项目的策源地,香港与苏州工业园区在产业、科技、人才、贸易、投资等多领域来往密切。

2022年,香港至园区投资项目1055个,实际利用外资超90亿美元,园区赴香港投资项目181个,境外协议投资额约14亿美元,两地在双向投资、科技创新等领域拥有广阔的合作空间。 手机横过来看效果更佳哦

高耸入云的九龙仓和恍如时空之门的苏州中心遥隔着秀美的金鸡湖威武对望,一串串数字亦见证了金鸡湖与香江的波澜与共。