

钢筋工要完成钢筋加工和安装任务,必须学会看懂图纸。这是首要的任务。
土建工程施工图,一般可分为建筑施工图和结构施工图两大类。结构施工图包括结构平面图和构件详图两部分。其中钢筋混凝土结构施工图部分对钢筋工来说,是必须学会看懂的,否则就无法进行钢筋加工和安装。

一、看图步骤和方法
一个单位工程的施工图纸,少至几张几十张,多则上百张。这么多的图纸要有步骤地看,有重点地看,相互联系起来看,才能把它看懂,才能在施工中不出差错。

在一套图纸中,一般在首页有总说明,每张图纸中一般又有附注或局部说明。在总说明中一般包括:设计依据、设计原则、技术经济指标,结构特征、构件选型、采用材料施工要求、注意事项等内容。图中附注是对图中某些表达不清楚的地方或特定部位的要求加以补充和说明,它是图纸中不可缺少的部分。

在看图前,首先应看首页总说明。看了总说明,就会对整个工程有一个初步的较为完整的概念。在看图过程中,应注意每张图中的附注。这对看懂施工图是会有好处的。

施工图反映了建筑物的外貌和内部结构型式、具体做法。它是施工的依据。在看图时,不能把建筑施工图和结构施工图割裂开,要联系起来看,参照着看。也就是说,在看建筑施工图时,要联想到结构型式;在看结构施工图时,要知道构件布置在建筑图中什么位置。同时看图要有侧重,对钢筋工来说,就必须把结构平面布置图和构件详图看懂,才能正确地进行钢筋加工和安装。
二、怎样看结构平面图
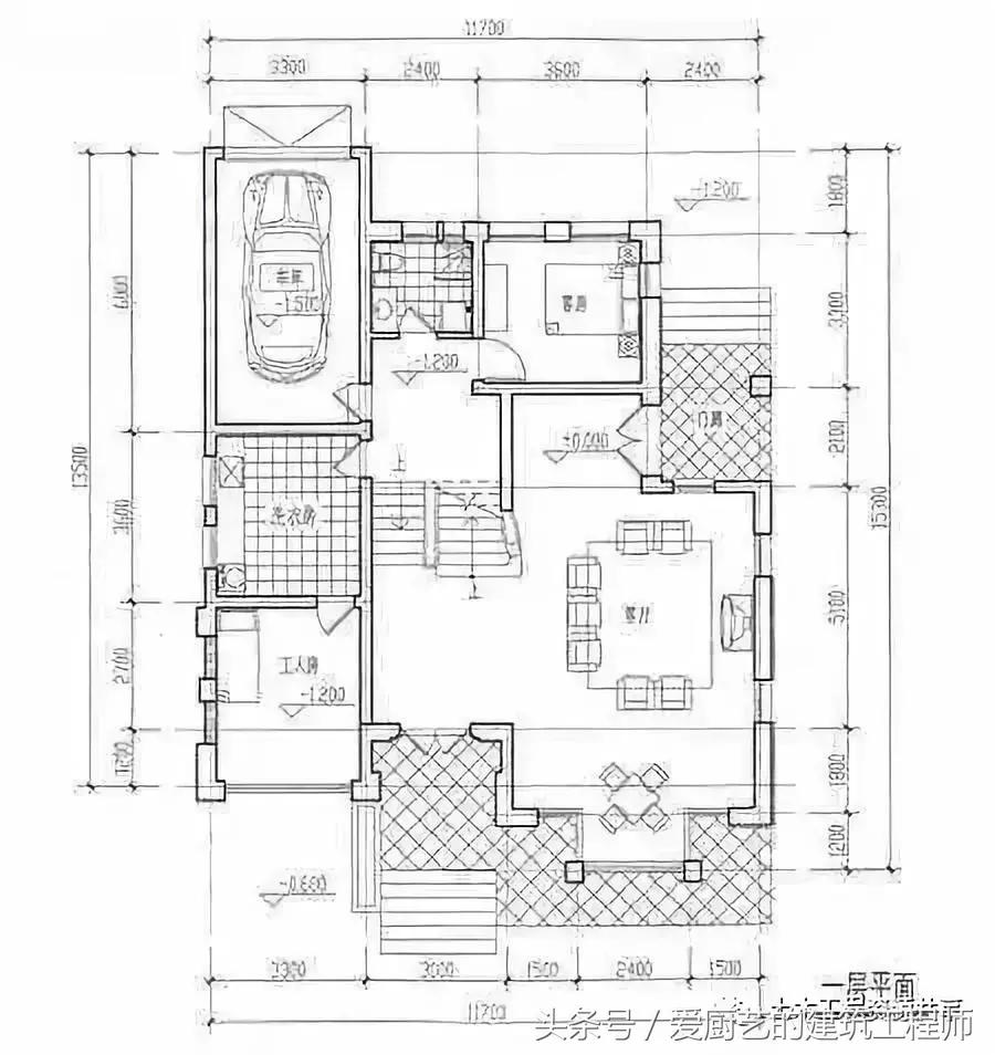
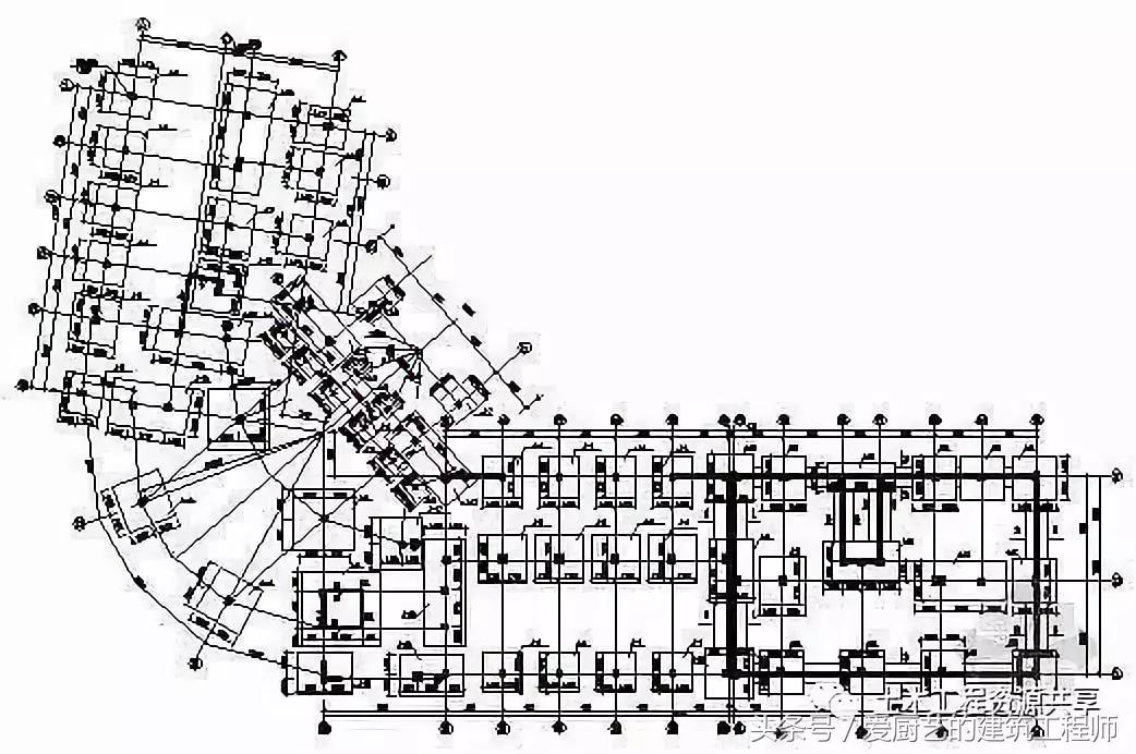
结构平面布置图主要是表示建筑物结构的平面布置情况。一般民用建筑的结构平面图包括基础图、楼层和屋面结构布置图等。基础平面图中反映了基础的放线宽度、墙柱轴线位置、地梁和上下水留洞位置。考虑图面的布置,也可以将基础详图画在一张图纸上。楼层及屋面结构平面图主要表示梁、板、过梁、圈梁、楼梯、阳台、雨篷、天沟等的编号数量、安装位置以及各种构件详图的图号或采用标准图的图集号。

识图必须具备基本的识图知识。如图幅、图标、比例、标高、轴线等是什么意思?图中各种代号表示什么?分别介绍如下:
1.图幅
就是图纸的大小。有A0号,A1号、A2号,A3号、A4号之分。A0号图纸尺寸为,长1189毫米,宽841毫米。A1号图纸只有A0号图纸的一半,其余类推。A0号图纸用作画总图。建筑及结构施工图以A1号、A2号图用得较多,A3号和A4号图纸很少采用。
2.图标
在图纸的右下角。图标栏内有设计单位、工程名称、图纸内容、设计人员签名,图号比例、日期等内容。

3.比例
施工图一般都是按缩小比例画的,也就是说,将建筑物按实际尺寸,短小一定的倍数画到图纸上,这缩小的倍数就叫做比例。1:100,说明图纸上的大小比建筑物的实际大小缩小了100倍。建筑图中的平、立,剖面图一般用1:100的比例,大样图(详图)一般用1:20或1:30的比例。尽管图是按比例画的,但不要在图上用比例尺直接量尺寸,应以图上标注的尺寸为准,以免发生误差。

4.轴线
建筑物墙体、柱子的平面定位线。一般用点画线表示,在其一端用一个圆圈内加一个数或一个大写拼音字母代表。从左至右用阿拉伯数字依次注写,表示开间、柱距。从下至上用大写拼音字母注写,表示建筑物的进深和跨度。构件中心线一般用点划粗实线表示,基本上与轴线重合,但轴线也不一定是构件的中心线。看图时,要仔细看清构件的位置,不要与轴线混为一谈,以免在钢筋配料和安装时发生错误。

5.标高
表示建筑物各部位在垂直方向的相对位置。一般以底层室内地面为零点标高,叫做正负零,符号为±0.000。高于正负零为“+”。低于正负零为“-”。标高符号三角形的尖端所指的就是标高的位置。标高的单位为米,一般在数字后面不写。

6.节点大样索引标志。
通常用一圆圈表示,圆内画一条水平直径线,圆圈内横线上的数字表示节点大样的编号,下面的数字表示节点大样所在图纸号或图集中页码。如在本张图上,则用一横线表示,如采用标准图集,则在圆圈外引出线上面标注图集编号。
7.构件代号

三、怎样看构件详图
钢筋混凝土构件详图是钢筋配料加工的依据。现浇结构详图就画在结构施工图上,预制构件一般都有标准图集,可以根据结构平面图中标注的编号和图集号采用。
1.钢筋符号
在钢筋混凝土构件中,往往配有不同的钢号,不同的钢号用不同的符号代表。

2.模板图。
这是为钢筋混凝土构件配制模板用的。模板图和配筋图一般画在一张图上。在看图时,应把两种图对照看。在模板图上,主要表示有构件的几何尺寸和预埋件、锚固钢筋的数量、位置等。预制装配式结构,由于预埋件较多,一般都画有模板图。而一般民用建筑结构大样却很少画模板图,即使有少量的预埋件,只要在配筋图上加上标注,或在附注中加以说明就行了。

3.配筋图
为了将构件中的钢筋分布情况表示清楚,需要画构件的纵横剖面图。凡配筋有变化的地方就要画一个横剖面图。构件轮廓线用细实线,钢筋用粗实线表示,以便突出钢筋。为了避免构件内的钢筋发生混淆,将不同规格(长度、形状、直径、钢号等)的钢筋编上号码,并注明钢筋直径数,这种图叫做构件的配筋图。钢筋工就是按这种图配料加工钢筋的。


文章转微信公众号土木工程资源共享,我尊重原创,转载出于更好的学习和分享,局部有所改动,能找到作者与出处我均有标明;如因版权等原因,请与我联系删除。文章来源于网络,如有侵权,联系删除。