

今天,本总就给你讲解讲解,为什么要先画气泡图!

文末附气泡图生成神器
POINT 1
气泡图到底是什么,它能表达啥?
很多人听说过气泡图,那它到底是什么呢?相信你有可能不知道。气泡图是通过它的形状和摆布方向展示出建筑布局的思路。

也就是说,你可以通过泡泡的大小反应空间的规模大小,可以通过线性要素的加入来反映场地的流线组织;还可以通过进一步的泡泡细化来展示具体的设计意图。

气泡图是方案的抽象,除了可以助你理清思路、控制大局还可以助你快速修改啊,改个功能不需要把内容画出来。
POINT 2
凭什么设计师一开始要画气泡图
其实很多时候,新手设计师一上来就容易落入细节而失去了大局观。

年轻人提笔上来就画的很细,但是始终无法画出完整方案。

泡泡图不是单纯表达功能,还能表达各个功能空间的大小、功能之间的相互关系(动静分区、特殊功能分区)更重要的是要反映功能之间如何互动、如何串接,真正的泡泡图不是只画几个泡泡就完事的!

这几个泡泡反映出的背后思考,是大有内涵的!这也需要对各类空间的尺度、常规位置有一定的认识。

POINT 3
气泡图的六大阶段
泡泡的第一阶段:功能布局
泡泡的第二阶段:流线组织
泡泡的第三阶段:空间意图
泡泡的第四阶段:形式确定
泡泡的化茧成蝶:方案生成



© SWA方案演变过程

POINT 4
从气泡图到完整方案,仅需5步!
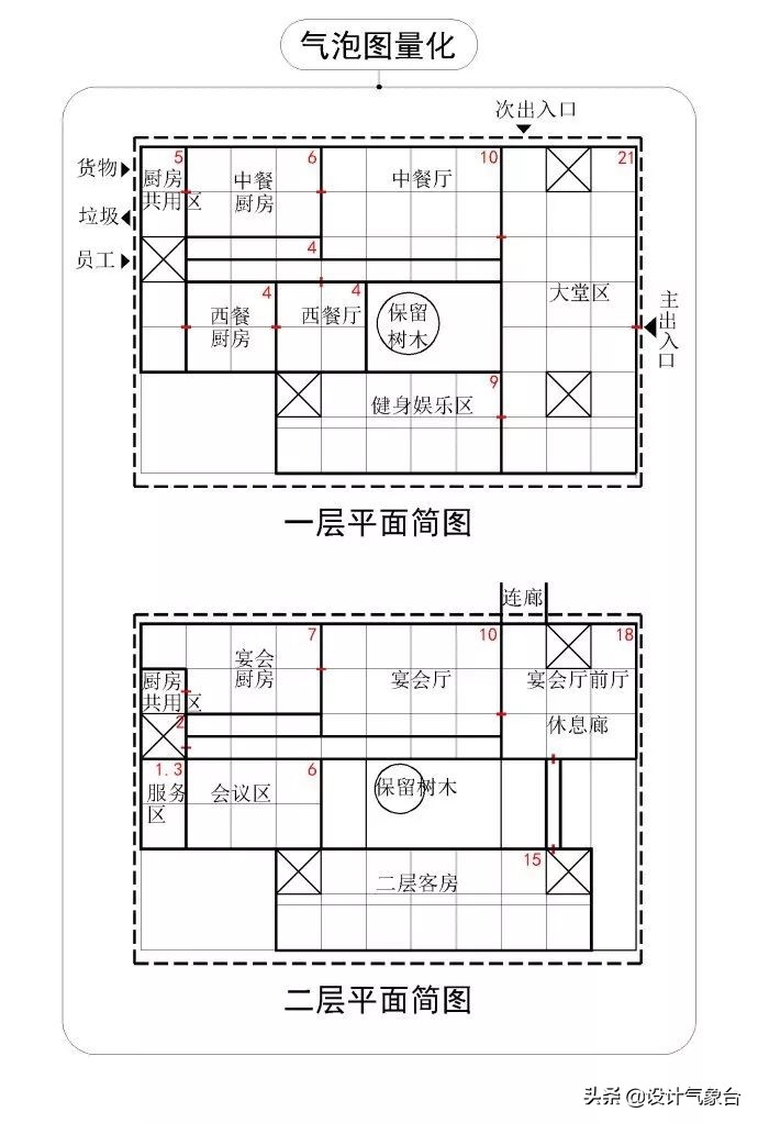
第一阶段为从气泡图到平面简图,这一阶段包括气泡图简化、气泡图固化及气泡图量化三个步骤;



第二个阶段为从平面简图到平面图,这一阶段包括功能空间细化、交通空间细化及辅助空间细化三个步骤。


POINT 5
气泡图两种绘制神器
其实很多人都觉得,气泡图直接通过PS或AI画就可以了,可怕至极!这些工具画起图来不仅费时费力而且修改非常麻烦,其实就是因为他们并不是为绘制气泡图专门开发的。
今天,老王就给你推荐两款气泡图专属工具,让你秒出气泡图!
01
气泡图助手V1.0
这是一个CAD插件,由【建筑软件炼金坊】为你专门开发,现官方授权设计气象台发布。
- 功能 1 -
定义了气泡和连线两种元素,其中连线的条数表示关联等级。

- 功能 2 -
你可以修改气泡的大小、文字内容、文字大小、连线等级等元素形态,还可以通过“设置”命令,来设置各部分的颜色、连线等级之间的间距。

- 功能 3 -
当显示错误时,你也可以通过“刷新”按钮来刷新整个图纸,还可以使用炸开命令将图形转换为CAD原生图形。

- 如何安装 -
首先,这个插件仅可用于AutoCAD2014(64位)。
接着,
在CAD中,输入AppLoad命令,打开对话框:


注:如果要卸载,还是用AppLoad命令打开对话框,在“已加载的应用程序”中选中你要卸载的,点击右边的“卸载”按钮即可。

02
Edraw Max 气泡图助手
它有直观、智能的交互功能,可以即时地给建筑师反馈,而不仅仅是一个制图过程。

软件界面是下面这样的,操作类似PPT,可以调整文字属性、线框、颜色等,非常容易上手。

最后,本总带你们看一看那些好看的气泡图。





知识点参考来源:
· 《景观设计画泡泡图,究竟是在画什么?》——知乎@吕胜东
· 《气泡图到方案图:六步搞定方案作图》
· 《如何绘制功能气泡图》——天明Future
领取方式
1: 点赞+评论
2: 关注并私信回复关键字: XQ01
(一定要私信哦~点击我的头像,进入主页面,点击右上角私信按钮)即可免费领取~



有仓设计(http://yooooc.com/shop.html),广受90后设计师喜爱的设计资源平台,设计气象台唯一官方指定网站。内容涵盖建筑/规划/景观/室内四大板块,你可以快速找到方案文本/作品集/竞赛图纸/施工图/SU模型/3DMAX模型/Lumion模型/分析图/轴测图/教程/工装效果图/家装效果图/插件/电子书/字体/笔刷/PPT模板/平面图/立面图/剖面图/简历/软件插件/施工图/素材/ID模板/参考规范/名人资料/意向图等高端设计资源。


免责声明:
以上图片及资料内容部分来源于网络,由我方原创整理,版权归原作者所有;若此图库侵犯到您的权益,请与我们联系删除。若转载,请在公众号后台回复“转载”。
