来源:电气圈 电力四射
KYN28A-12开关柜是国内目前比较常见的一种高压开关柜, 全名称为: 户内金属铠装移开式开关设备。额定电压3.6kV~12kV,其特点是配装的真空断路器为中置式,即断路器位于开关柜前柜的中部,因此下部空间节省下来可用于其它方案的扩展或作为电缆室用。

K-代表金属铠装,Y--代表移开式,N--代表户内,28A为行业归口单位颁发的型号序列号,后面的12代表额定工作电压为12kV。国内不同技术来源的同类产品型号还有:KYN28、KYN96、KYN44等都是中置式开关柜,电气设计在线教学狄老师。那么KYN28A-12 开关柜是什么结构呢?下面就让小编带大家详细了解一下吧!希望能给大家对 KYN28A-12 开关柜的设计及技术交流带来一定帮助。
(1)KYN28A-12开关柜的基本结构
KYN28A-12开关柜由固定的柜体和可移开的真空断路器手车组成,固定的开关柜柜体分为四个小室: 母线室、断路器室、电缆室和低压室。开关柜的基本柜型为进线柜和馈线柜。
除基本柜型外,还有其它派生方案,如母线分段柜、计量柜、PT 柜、所用变柜等。此外,尚有配置固定式负荷开关、真空接触器手车、隔离手车等方案。
开关柜靠墙或面对面安装,可充分满足现场的具体要求。在母线分段系统中,必须有两台专用的开关柜,即带有断路器手车的母线联接柜和隔离柜(也可是 PT 柜或计量柜)。

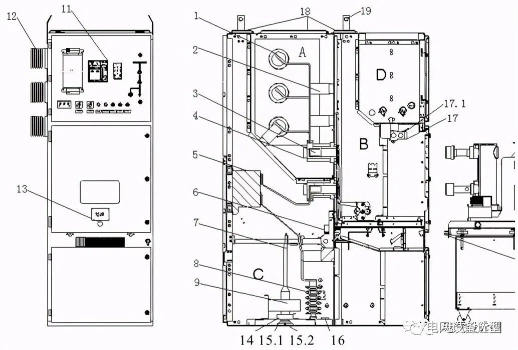
KYN28-12 进/出线柜基本结构剖面图
隔室: A 母线室、B 断路器室 C、电缆室 D、低压室。
主要零部件: 1 母线、2 绝缘子、3 静触头、4 触头盒、5 电流互感器、6 接地开关、7 电缆终端、8 避雷器、9 零序电流互感器、10 断路器手车、10.1 滑动把手、10.2 锁键(联到滑动把手)、11 控制和保护单元、12 穿墙套管。
主要附件: 13 丝杠机构操作孔、14 电缆夹、15.1 电缆密封圈、15.2 连接板、16 接地排、17 二次插头、17.1 联锁杆、18 压力释放板、19 起吊吊环、20 运输小车、20.1 锁杆、20.2 调节轮、20.3 导向杆。
柜体外形尺寸: ( 标准架空进出线方案; 电缆进出线方案)
①电缆进出线及联络柜标准方案: 宽800(1000)×深1500×高2300
②架空进出线标准方案: 宽800(1000)×深1660×高2300
(2)KYN28A-12开关柜的外壳和隔板
开关柜的外壳和隔板由优质钢板(包括 2mm 厚的敷铝锌板和 2mm 厚的镀锌板,门板选用 2mm 厚的冷轧钢板表面喷漆)制成,具有很强的抗氧化、耐腐蚀功能,且刚度和机械强度比普通低碳钢板高。其坚固的结构和足够的强度能承受柜内元器件的重量、由操作引起的震动等。外壳为敷铝锌钢板,不必涂漆便具有很强的抗腐蚀与抗氧化能力,永不生锈。
三个高压室(母线室、断路器室和电缆室)的顶部都装有压力释放板,该压力释放装置由电流大小决定的,其中主母线电流 1000A 及以下的母线室泄压板选用平实板,主母线电流 1000A-2500A 母线室泄压板选用平网板,主母线 3150A 及以上的选用 M 形的网板,断路器室泄压板 1000A 及以下选用平实板,1000A-1250A 选用平网板,1600A 及以上(包括所用变柜和 PT 柜)选用 M 形网板,电缆室泄压板断路器手车 1000A 及以下选用平实板,1000A-2500A 包括所用变选用平网板,3150A 及以上选用 M 形网板。
压力释放板一端通过钢螺丝固定,另一端用塑料螺丝固定。当开关柜出现内部故障(产生电弧)时,高压隔室内气压升高,由于柜门紧闭并可靠密封,高压气体将冲开压力释放板释放出来。电缆室门和断路器室门是分开的,各自带有防爆玻璃制成的观察窗。相邻的开关柜由各自的隔板隔开,拼柜后仍有空气缓冲层,可以防止开关柜被故障电弧贯穿熔化。
低压室 D 装配成独立隔室,与高压区域分隔开。隔板将断路器室 B 和电缆室 C 隔开,即使断路器手车移开(此时活门会自动关闭),也能防止操作者触及母线室 A 和电缆室 C 内的带电部分。卸下紧固螺栓就可移开水平隔板,便于电缆密封终端的安装。
母线室后封板、大弯板带活门的插头板形成了开关柜内部隔离,甚至当母线发生故障燃弧时,开关柜内部隔板也能保证接近断器室和电缆室内人员的安全。低压室(仪表室)通过仪表室隔板,与高压部分分隔开。且在端柜发生内部故障电弧时,对电弧具有机械和热防护能力。
低压室(继电器室)通过仪表室隔板,与高压部分分隔开。在一个开关柜排列的两端,终端盖板(端封板)不仅能保证开关设备表面的美观,而且在端柜发生内部故障电弧时,对电弧具有机械和热防护能力。
(3)KYN28A-12开关柜的小室

断路器室外形示意
断路器室: 断路器手车装在有导轨的断路器室 B 内,断路器可在运行、试验/隔离两个不同位置之间移动。当断路器手车从试验位置向工作位置移动时,通过断路器两侧装的活门导轨与固定柜体内装的活门装配中的上下滚轮联锁,使其上、下活门打开,当手车从运行位置向试验/隔离位置移动时,活门会复位自动盖住静触头。
手车能在开关柜门关闭的情况下操作,通过门上的观察窗可以看到手车的位置,手车上的 ON(断路器合闸)/OFF(断路器分闸)按钮、分合闸状态指示器和储能/释放状况指示器。根据用户需求可在手车室门加紧急解锁装置,在紧急情况下通手动使断路器分闸。
断路器手车包括 VD4 或 VG1 断路器手车(或外形相同的手车),手车底盘车可实现断路器和柜体之间的机械连接,手车底盘被锁定在开关柜上,手车可通过丝杠采用手动进行移动。断路器框架由合金钢板拼装而成,上面装断路器和其他设备。具有弹簧触头系统的触臂装在断路器的极柱上,当手车插入到运行位置时起电气联接作用。
手车与开关柜之间的信号、保护和控制线,用一个控制线插头联接。手车刚插入开关柜就固定在试验/隔离位置,同时也可靠地联接到开关柜的接地系统。手车的所在位置,能通过观察窗或装在低压室面板上的手车电气位置指示器看到。
除真空断路器外,还有配真空接触器的 F-C 手车、隔离手车、接地手车、计量手车、带熔断器的电压互感器手车、带熔断器的隔离手车等。相同类型的手车可以互换。

断路器手车与活门联锁示意
母线室: KYN28-12 开关柜母线室主要由左右后侧板、母线室下隔板、母线室后封板、穿墙套管安装板、母线室前隔板及带活门的插头板形成的开关柜内部隔离,其中母线室高 1088mm,前后深 632mm。当母线发生故障燃弧时,开关柜内部隔板也能保证接近断器室和电缆室内人员的安全。

KYN28 母线室示意
所有主母排和分支母线均用套管覆盖,母线连接处均装有绝缘性能好的绝缘罩。主母线从一个开关柜引至相邻的另一个开关柜,通过分支母线和套管固定。根据电流大小还需在母线室内加绝缘子支撑主母排:当一个系统内最大电流为 2000A 时,大电流进线柜或母联柜需在母线室加绝缘子支撑主母线,当电流在 2500A~3150A 时,该排列的所有开关柜主母线均需加绝缘子支撑。
矩形的分支母线直接用螺栓联接到主母线上,不需任何联接夹。考虑消除闭合磁回路产生的涡流的影响,采用将穿墙套管和触头盒安装板的三相开孔连通,并加装铝合金板或不锈钢板作为衬板,阻断其磁回路,达到消除涡流的目的。套管安装板和套管铝板将柜与柜之间的母线隔离起来,并有支撑作用。
电缆室: 电缆室高 1106mm,前后深 814mm(从开关柜底板到母线室下隔板底部),根据运行要求可安装电流互感器、快速接地开关、电压互感器、避雷器、零序电流互感器等元器件,当电缆室门打开后,有足够的空间供施工人员进入柜内安装电缆(最多可并接 6 根单芯电缆)。
盖在电缆入口处的电缆孔底板可选用非导磁的不锈钢板或铝板(三芯电缆也可选用镀锌板或敷铝锌板),是开缝的,可拆卸的,便于现场施工。底板中穿越一、二次电缆的变径密封圈开孔应与所装电缆相适应,以防小动物进入。对于湿度较大的电缆沟,建议用防火泥、环氧树脂将开关柜进行密封。

KYN28 电缆室示意
低压室(继电器室): KYN28-12 开关柜的低压室高 620mm、深 458mm,内装有传统或新型的综合控制和保护装置、二次元器件等二次设备,即可安装在仪表室门上,也安装在低压室内继电器板上,其继电器板可灵活地翻转,方便二次元件的安装及接线,在低压室下部,固定三排端子排的安装支件可向上旋转,便于安装和布线。
开关柜内部的二次线敷设在右侧线槽内,控制电缆敷设在左侧的线槽内,线槽 内空间宽裕,并有盖板,左侧线槽用来引入和引出柜间连线,右侧线槽用来敷设开关柜内部连线。低压室侧板上有控制线穿越孔,以便控制电源的联接。

低压室外视图

低压室内视图
(4)开关柜的五防联锁功能
为了防止现场操作人员无意识地实施错误的操作,从而导致事故(保证设备的可靠运行和操作者的安全),除了加强对操作人员的培训以及实施工作票制度,开关柜在设计中加入强制联锁装置或采取提示性措施。对于开关柜而言,需提供五种防止误操作的功能(简称“五防”)。

五防联锁具体含义:
1. 防止误分误合断路器、负荷开关、接触器(允许提示性的);
2. 防止带负荷分合上下隔离开关或带负荷推入拉出断路器手车;
3. 防止带电操合接地开关或挂接临时接地线;
4. 防止带有临时接地线或接地开关闭合时送电;
5. 防止人误入带电间隔。
五防联锁的实现:
1. 当手车在柜体的工作位置合闸后,在底盘车内部的闭锁电磁铁被锁定在丝杠上,而不会被拉动.以防止带负荷误拉断路器手车。

电磁锁外形示意
2. 当接地开关处在合闸位置时, 接地开关主轴联锁机构中的推杆被推入柜中的手车导轨上,于是所配断路器手车不能被推进柜内。
3. 断路器手车在工作位置合闸后,出线侧带电,此时接地开关不能合闸. 接地开关主轴联锁机构中的推杆被阻止,其操作手柄无法操作接地开关主轴。
4. 对于电缆进线柜;母线分段柜和所用变方案,由于进线电缆侧带电,下门上装电磁锁,来确保在电缆侧带电时不能进入电缆室。
5. 对于有人值守的变电站,通过安装在面板上的防误型转换开关(带红绿牌),可以防止误分误合断路器;对于无人值守的变电站,由于断路器的分合均从远方操作,无法应用红绿翻牌方法,只能加入电气联锁。高压开关柜仪表室门上一般装有分合闸转换开关,其仪表室内装有程序锁,当开关柜正常运行时,取下程序锁钥匙,关上仪表室门,防止误分误合断路器,但现在一般在仪表门上装带钥匙的转换开关,当开关柜正常运行时,取下钥匙,防止误分误合断路器